- New Brunswick
- Moncton
100 Rachel
CAD$594,900
CAD$594,900 要价
100 RachelMoncton, New Brunswick, E1G6H9
退市 · 退市 ·
33| 1614 sqft
Listing information last updated on Fri Feb 09 2024 21:50:30 GMT-0500 (Eastern Standard Time)

Open Map
Log in to view more information
Go To LoginSummary
IDM155251
Status退市
产权Freehold
Brokered ByExit Realty Associates
TypeResidential House
AgeConstructed Date: 2023
Land Size671 sqft|under 1/2 acre
Square Footage1614 sqft
RoomsBed:3,Bath:3
Detail
公寓楼
浴室数量3
卧室数量3
设施Street Lighting
建筑日期2023
壁炉False
地基Concrete
洗手间1
供暖方式Electric
供暖类型Baseboard heaters,Heat Pump
使用面积1614 sqft
楼层2
装修面积1868 sqft
类型House
供水Municipal water
土地
总面积671 sqft|under 1/2 acre
面积671 sqft|under 1/2 acre
交通Year-round access
面积false
设施Church,Public Transit,Shopping
下水Municipal sewage system
Size Irregular671
水电气
有线Available
周边
设施Church,Public Transit,Shopping
Location DescriptionFrom Maplehust after Teaberry,make your way to Rachel
Other
特点Central island
FireplaceFalse
HeatingBaseboard heaters,Heat Pump
Remarks
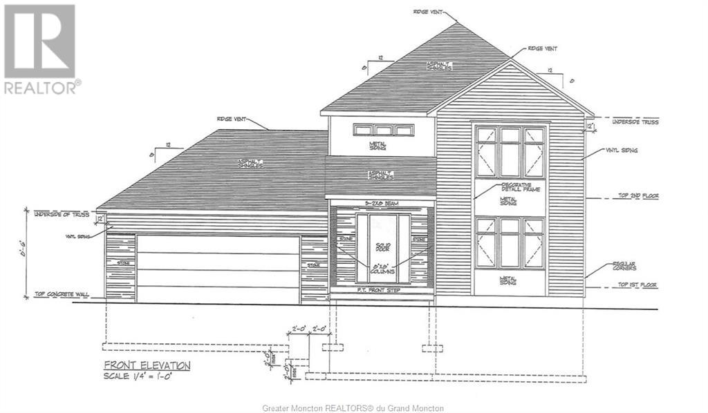
***NEW CONSTRUCTION*** Welcome to 100 Rachel. This remarkable modern home is nestled in the sought-after Moncton North community. Designed for a luxurious and contemporary lifestyle, this property seamlessly blends sleek finishes with functionality. Located within a stone's throw of esteemed schools, the new YMCA, and an array of amenities, convenience is just outside your door. Aesthetically designed, this home boasts a contemporary architectural style that exudes sophistication. From the countertops to modern fixtures, the interior features stylish finishes that elevate the overall ambiance. As you step into this stylish abode, you're greeted by a spacious living room, with a sleek electric fireplace, that sets the tone for the home's inviting atmosphere. The seamless flow leads you into an open-concept kitchen, that included a pantry and dining area, creating a perfect hub for family gatherings and entertaining. This area also has an entrance to garage. Making your way upstairs, you'll discover a private oasis on the second level, offering three well-appointed bedrooms and two bathrooms, ensuring a comfortable and convenient living space for your family. A generously sized primary bedroom awaits, featuring an ensuite bathroom adorned with sleek tiled luxurious shower, and a convenient walk-in closet.To be completed late in 2023. It includes a LUX New Home Warranty. HST rebate to be assigned to seller. Vendor is a licensed REALTOR® (id:22211)
The listing data above is provided under copyright by the Canada Real Estate Association.
The listing data is deemed reliable but is not guaranteed accurate by Canada Real Estate Association nor RealMaster.
MLS®, REALTOR® & associated logos are trademarks of The Canadian Real Estate Association.
Location
Province:
New Brunswick
City:
Moncton
Room
Room
Level
Length
Width
Area
3pc Ensuite bath
Second
NaN
Measurements not available
卧室
Second
10.01
10.70
107.03
10x10.7
卧室
Second
10.99
10.89
119.72
11x10.9
卧室
Second
12.99
12.99
168.80
13x13
4pc Bathroom
Second
NaN
Measurements not available
洗衣房
地下室
NaN
Measurements not available
家庭
地下室
12.01
16.99
204.07
12x17
Mud
主
NaN
Measurements not available
厨房
主
NaN
Measurements not available
餐厅
主
NaN
Measurements not available
客厅
主
12.99
12.99
168.80
13x13
2pc Bathroom
主
NaN
Measurements not available

















