- British Columbia
- West Vancouver
1451 Chartwell Dr
CAD$4,780,000
CAD$4,780,000 要价
1451 Chartwell DriveWest Vancouver, British Columbia, V7S2R9
退市 · 终止 ·
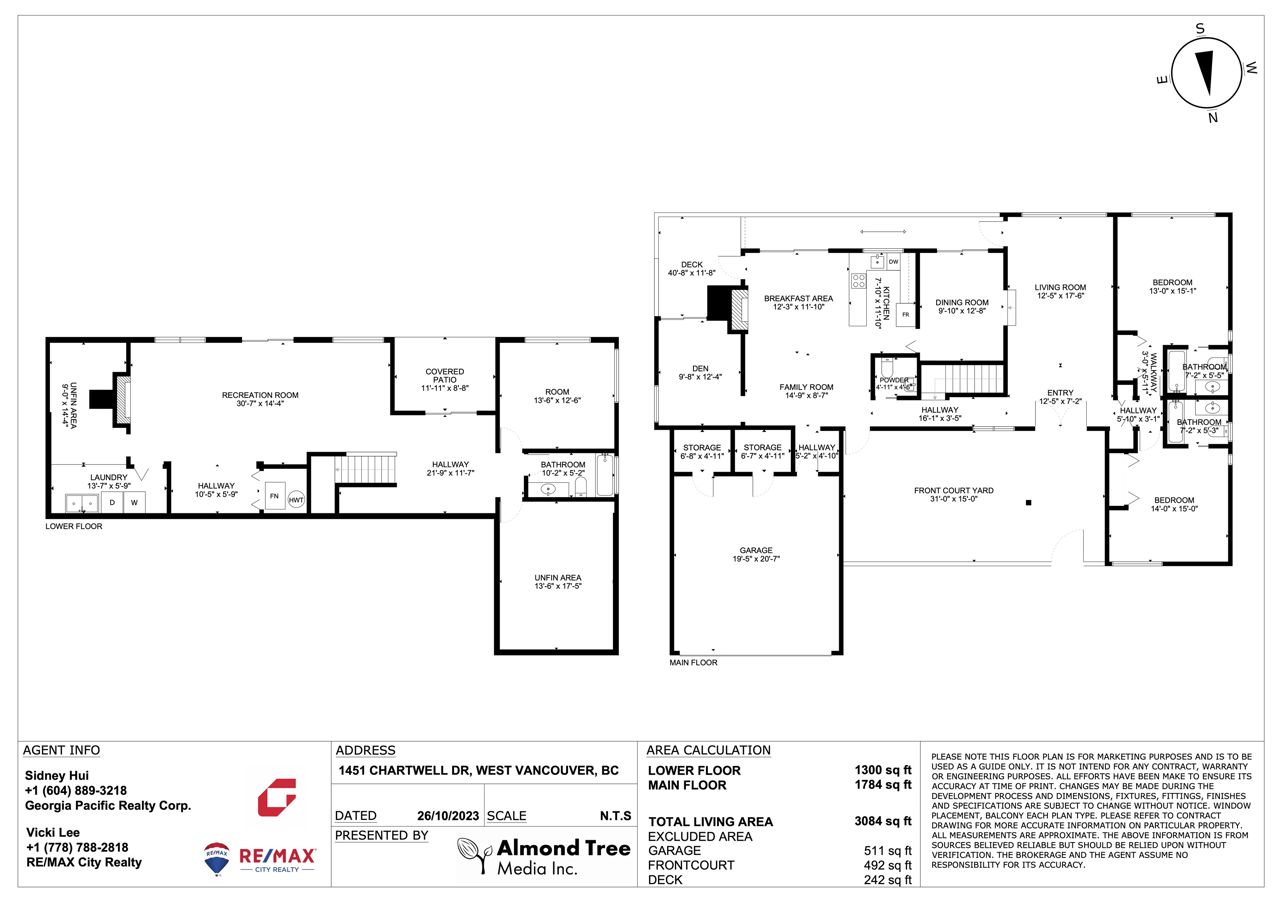
345(2)| 3084 sqft
Listing information last updated on Tue May 28 2024 12:25:20 GMT-0400 (Eastern Daylight Time)

Open Map
Log in to view more information
Go To LoginSummary
IDR2829362
Status终止
产权Freehold NonStrata
Brokered ByGeorgia Pacific Realty Corp.
TypeResidential House,Detached,Residential Detached
AgeConstructed Date: 1976
Lot Size90 * undefined Feet
Land Size16552.8 ft²
Square Footage3084 sqft
RoomsBed:3,Kitchen:1,Bath:4
Parking2 (5)
Virtual Tour
Detail
公寓楼
浴室数量4
卧室数量3
家用电器All
Architectural Style2 Level
地下室装修Partially finished
地下室特点Unknown
地下室类型Unknown (Partially finished)
建筑日期1976
风格Detached
壁炉True
壁炉数量1
固定装置Drapes/Window coverings
供暖方式Natural gas
供暖类型Hot Water
使用面积3470 sqft
类型House
Outdoor AreaBalcony(s),Fenced Yard,Patio(s) & Deck(s)
Floor Area Finished Main Floor1784
Floor Area Finished Total3084
Floor Area Unfinished386
Floor Area Finished Blw Main1300
Legal DescriptionLOT 3, BLOCK 54, PLAN VAP13758, DISTRICT LOT CE #15, GROUP 1, NEW WESTMINSTER LAND DISTRICT
Driveway FinishConcrete
Fireplaces1
Bath Ensuite Of Pieces12
Lot Size Square Ft16447
类型House/Single Family
FoundationConcrete Perimeter
Titleto LandFreehold NonStrata
Fireplace FueledbyWood
No Floor Levels2
Floor FinishTile,Carpet
RoofAsphalt
开始施工Frame - Wood
外墙Stucco
FlooringTile,Carpet
Fireplaces Total1
Exterior FeaturesBalcony,Private Yard
Above Grade Finished Area1784
家用电器Washer/Dryer,Dishwasher,Refrigerator,Cooktop
Rooms Total11
Building Area Total3470
车库Yes
Main Level Bathrooms3
Patio And Porch FeaturesPatio,Deck
Fireplace FeaturesWood Burning
Window FeaturesWindow Coverings
Lot FeaturesPrivate,Wooded
地下室
Basement AreaPartly Finished
土地
总面积16447 sqft
面积16447 sqft
面积false
Size Irregular16447
Lot Size Square Meters1527.98
Lot Size Hectares0.15
Lot Size Acres0.38
Directional Exp Rear YardNorth
车位
车位Garage,Visitor Parking
Parking AccessFront
Parking TypeGarage; Double,Visitor Parking
Parking FeaturesGarage Double,Guest,Front Access,Concrete
水电气
Tax Utilities IncludedNo
供水City/Municipal
Features IncludedClthWsh/Dryr/Frdg/Stve/DW,Drapes/Window Coverings
Fuel HeatingHot Water,Natural Gas
周边
Exterior FeaturesBalcony,Private Yard
Road Surface TypePaved
风景View
Other
特点Private setting,Treed
Internet Entire Listing DisplayYes
Road Surface TypePaved
下水Public Sewer,Sanitary Sewer,Storm Sewer
Pid008-505-187
Sewer TypeCity/Municipal
Cancel Effective Date2024-05-27
Site InfluencesPaved Road,Private Setting,Private Yard,Treed
Property DisclosureYes
Services ConnectedElectricity,Natural Gas,Sanitary Sewer,Storm Sewer,Water
View Specifywater
Broker ReciprocityYes
Fixtures Rented LeasedNo
BasementPartially Finished
HeatingHot Water,Natural Gas
Level2
ExposureN
Remarks
A through lot of 16,447 sq. ft. on the upper section of Chartwell Drive with the water view of Burrard Inlet. A fantastic opportunity for building a luxury residence or treating as revenue property now and re-developing later. The house itself has a remarkable Spanish-style design with front verandah, wrought iron gate entrance & enclosed courtyard. 2 bedrooms, a den and 2-1/2 bathrooms on the Main Floor. 1 bedroom, a large recreation room, plus a walk-out verandah in the Basement. It is currently rented to a family on a month-to-month basis and needs some TLC. Chartwell Elementary and Sentinel Secondary School Catchment as well as Collingwood School in the District. Floor plan and measurements based on original building plans, buyers to verify if important.
This representation is based in whole or in part on data generated by the Chilliwack District Real Estate Board, Fraser Valley Real Estate Board or Greater Vancouver REALTORS®, which assumes no responsibility for its accuracy.
Location
Province:
British Columbia
City:
West Vancouver
Community:
Chartwell
Room
Room
Level
Length
Width
Area
Living Room
主
12.40
17.49
216.86
Dining Room
主
9.84
12.66
124.65
厨房
主
7.84
11.84
92.87
Nook
主
11.84
12.24
144.94
家庭厅
主
8.60
14.76
126.91
小厅
主
9.68
12.34
119.39
门廊
主
7.15
12.40
88.70
主卧
主
13.25
15.09
200.04
卧室
主
14.01
14.99
210.05
卧室
Below
12.50
13.48
168.55
Recreation Room
Below
14.34
30.58
438.40
School Info
Private SchoolsK-7 Grades Only
Chartwell Elementary
1300 Chartwell Dr, 西温哥华0.654 km
ElementaryMiddleEnglish
8-12 Grades Only
Sentinel Secondary
1250 Chartwell Dr, 西温哥华0.74 km
SecondaryEnglish
Book Viewing
Your feedback has been submitted.
Submission Failed! Please check your input and try again or contact us














