- Ontario
- Waterloo
527 Walking Fern Crt
CAD$1,790,000
CAD$1,790,000 要价
527 WALKING FERN CourtWaterloo, Ontario, N2V0B8
退市
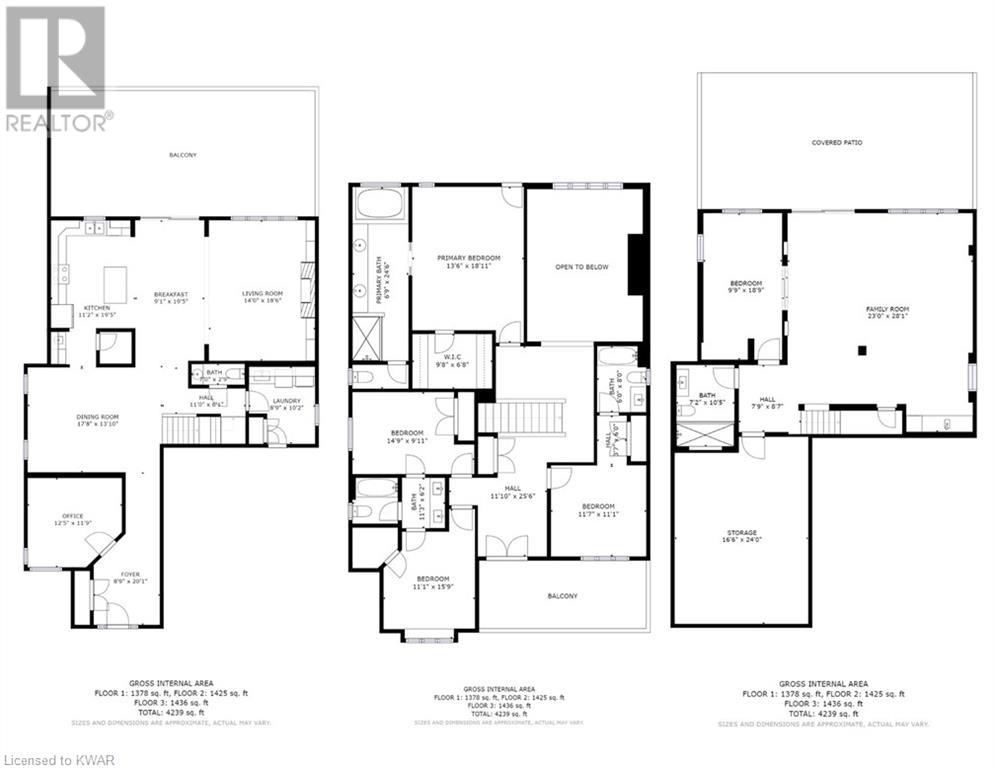
4+154| 3350 sqft
Listing information last updated on Wed Sep 15 2021 06:32:17 GMT-0400 (Eastern Daylight Time)

Open Map
Log in to view more information
Go To LoginSummary
ID40163847
Status退市
产权Freehold
Brokered ByRE/MAX TWIN CITY REALTY INC.
TypeResidential House,Detached
AgeConstructed Date: 2016
Lot Size37 ft * 171 ft undefined
Land Sizeunder 1/2 acre
Square Footage3350 sqft
RoomsBed:4+1,Bath:5
Virtual Tour
Detail
公寓楼
浴室数量5
卧室数量5
地上卧室数量4
地下卧室数量1
家用电器Dishwasher,Dryer,Refrigerator,Stove,Water softener,Washer
Architectural Style2 Level
地下室装修Finished
地下室类型Full (Finished)
建筑日期2016
风格Detached
空调Central air conditioning
外墙Brick,Stone,Stucco
壁炉燃料Electric
壁炉True
壁炉数量2
壁炉类型Other - See remarks
地基Poured Concrete
洗手间1
供暖类型Forced air
使用面积3350.0000
楼层2
类型House
供水Municipal water
土地
面积under 1/2 acre
沿街宽度37 ft
面积false
设施Schools,Shopping
下水Municipal sewage system
Size Depth171 ft
周边
设施Schools,Shopping
Location DescriptionColumbia to Sundew to Walking Fern.
Zoning DescriptionR6
Other
特点Cul-de-sac,Conservation/green belt
Basement已装修
FireplaceTrue
HeatingForced air
Remarks
Spectacular! Located on the edge of Waterloo West & Wilmot township, Vista Hills is a neighborhood surrounded by abundant greenspace, 40 km of walking trails, & is less than a 10 minute drive to the University of Waterloo Campus & multiple amenities. The home was designed to incorporate the outdoors & spectacular view with its front facing covered balcony, rear oversized deck & pergola & ground level patio, incorporating indoor and outdoor speakers. The dramatic two storey great room is the focal point of the home and it features 9 ceilings on all three levels. A gas fireplace w/stone veneer are the accents of the feature wall w/large windows also taking advantage of the outdoor views. A dinette separates the great room from the gourmet kitchen which offers style and capacity; featuring 4 kitchen appliances & butler pantry. The colors have a calm theme and are beautifully coordinated with granite countertops and soft close kitchen mechanisms. A large formal dining room offers capacity and is next to the private living room that can also be used as an office. Enjoy an organized setting of the mud room/laundry w/built in cabinets . The second floor offers 4 good sized bedrooms,3 bathrooms, & a study/den. 5 piece jack & jill bathroom separates two rooms, with the third bedroom having its own private 4 piece bathroom. The master suite has a classic wainscoting feature wall and a double door entry to the elegant 5 piece ensuite. Located along the back of the home, it too takes advantage of the elevated greenspace view. The large foot print generously fits a bedroom, 3 piece bathroom, and oversized recreation room with projection system and wet bar. You will be impressed with the beautiful design and attention to finishing details of the tray ceillings, led lighting, and general fixturing. With the new Vista Hill Public School, Costco, and other amenities nearby, this neighborhood is becoming one of Waterloos most sought after, dont miss your opportunity to part of it! (id:22211)
The listing data above is provided under copyright by the Canada Real Estate Association.
The listing data is deemed reliable but is not guaranteed accurate by Canada Real Estate Association nor RealMaster.
MLS®, REALTOR® & associated logos are trademarks of The Canadian Real Estate Association.
Location
Province:
Ontario
City:
Waterloo
Community:
Columbia Forest/Clair Hills
Room
Room
Level
Length
Width
Area
小厅
Second
8.42
9.50
79.96
8'5'' x 9'6''
Full bathroom
Second
8.08
6.00
48.50
8'1'' x 6'0''
卧室
Second
11.50
11.00
126.50
11'6'' x 11'0''
卧室
Second
9.92
14.75
146.27
9'11'' x 14'9''
5pc Bathroom
Second
11.25
6.08
68.44
11'3'' x 6'1''
卧室
Second
11.08
14.50
160.71
11'1'' x 14'6''
Full bathroom
Second
24.50
6.83
167.42
24'6'' x 6'10''
主卧
Second
19.00
13.50
256.50
19'0'' x 13'6''
娱乐
地下室
28.08
23.00
645.92
28'1'' x 23'0''
卧室
地下室
9.75
18.92
184.44
9'9'' x 18'11''
3pc Bathroom
地下室
10.92
7.17
78.24
10'11'' x 7'2''
洗衣房
主
8.67
10.17
88.11
8'8'' x 10'2''
2pc Bathroom
主
2.83
7.00
19.83
2'10'' x 7'0''
家庭
主
13.92
18.50
257.46
13'11'' x 18'6''
Dinette
主
9.08
13.58
123.38
9'1'' x 13'7''
厨房
主
11.75
19.08
224.23
11'9'' x 19'1''
餐厅
主
13.75
13.83
190.21
13'9'' x 13'10''
客厅
主
12.42
11.75
145.90
12'5'' x 11'9''
家庭
主
8.67
9.83
85.22
8'8'' x 9'10''
Book Viewing
Your feedback has been submitted.
Submission Failed! Please check your input and try again or contact us

















































