- British Columbia
- Vancouver
438 W King Edward Ave
CAD$2,690,000
CAD$2,690,000 要价
672 438 W KING EDWARD AVENUEVancouver, British Columbia, V5Y0M5
退市 · 退市 ·
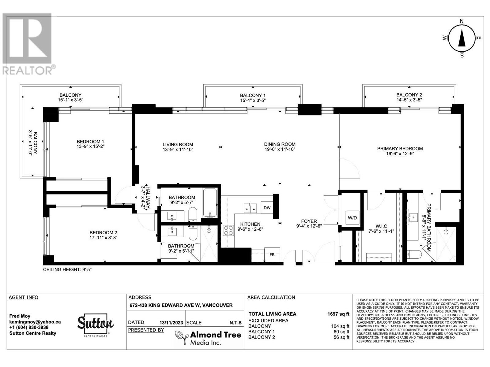
33| 1697 sqft
Listing information last updated on Tue Mar 26 2024 08:37:21 GMT-0400 (Eastern Daylight Time)

Open Map
Log in to view more information
Go To LoginSummary
IDR2833620
Status退市
产权Strata
Brokered BySutton Centre Realty
TypeResidential Apartment
AgeConstructed Date: 2019
Land Size0
Square Footage1697 sqft
RoomsBed:3,Bath:3
Maint Fee1089.41 / Monthly
Detail
公寓楼
浴室数量3
卧室数量3
设施Exercise Centre,Recreation Centre
家用电器All
建筑日期2019
空调Air Conditioned
壁炉False
供暖类型Heat Pump
使用面积1697 sqft
类型Apartment
土地
总面积0
面积0
面积false
设施Recreation,Shopping
景观Garden Area
Size Irregular0
周边
设施Recreation,Shopping
社区特点Adult Oriented,Pets Allowed With Restrictions,Rentals Allowed With Restrictions
风景View
Other
特点Central location,Elevator,Wheelchair access
FireplaceFalse
HeatingHeat Pump
Unit No.672
Remarks
"The Opal" by element - a remarkable living experience designed exclusively for the discerning 55+ community in Vancouver's West Side. This prime unit boasts 1697 sq.ft of living space, a spacious balcony, high ceilings, nice open-concept kitchen and featuring numerous custom-built items with a spacious floor plan. All rooms are in good size with 3 huge size bdrm plus 3 bathrooms. Enjoy extraordinary facilities like a rooftop garden, medical area with nurse & doctor on duty, library lounge or rejuvenate in the natural wellness spa & sauna. Good size studios for you to explore your passions in music & art. Central location. Minutes to everywhere & QE park, skytrain station & public transport. Almost one of a kind deluxe unit in Greater Vancouver. (id:22211)
The listing data above is provided under copyright by the Canada Real Estate Association.
The listing data is deemed reliable but is not guaranteed accurate by Canada Real Estate Association nor RealMaster.
MLS®, REALTOR® & associated logos are trademarks of The Canadian Real Estate Association.
Location
Province:
British Columbia
City:
Vancouver
Community:
Cambie
School Info
Private SchoolsK-7 Grades Only
Eric Hamber Secondary
5025 Willow St, 温哥华1.276 km
SecondaryEnglish
K-7 Grades Only
General Wolfe Elementary
4251 Ontario St, 温哥华0.566 km
ElementaryEnglish
Book Viewing
Your feedback has been submitted.
Submission Failed! Please check your input and try again or contact us
































