- Ontario
- Trent Lakes
93 Northern Ave
CAD$524,900
CAD$524,900 要价
93 NORTHERN AvenueTrent Lakes, Ontario, K0M1A0
退市
21| 1052 sqft
Listing information last updated on Fri Aug 18 2023 12:15:20 GMT-0400 (Eastern Daylight Time)

Open Map
Log in to view more information
Go To LoginSummary
ID40417913
Status退市
产权Freehold
Brokered ByRE/MAX ALL-STARS REALTY INC., BROKERAGE - 135
TypeResidential House,Detached,Bungalow
AgeConstructed Date: 1968
Land Size0.46 ac|under 1/2 acre
Square Footage1052 sqft
RoomsBed:2,Bath:1
Detail
公寓楼
浴室数量1
卧室数量2
地上卧室数量2
家用电器Dryer,Microwave,Refrigerator,Stove,Washer,Window Coverings
Architectural StyleBungalow
地下室装修Unfinished
地下室类型Crawl space (Unfinished)
建筑日期1968
建材Wood frame
风格Detached
空调None
外墙Vinyl siding,Wood
壁炉False
火警Smoke Detectors
供暖方式Propane
供暖类型Forced air
使用面积1052.0000
楼层1
类型House
供水Drilled Well
土地
总面积0.46 ac|under 1/2 acre
面积0.46 ac|under 1/2 acre
交通Water access,Road access,Highway access
面积false
设施Beach,Golf Nearby,Marina,Park,Place of Worship,Playground,Schools,Shopping
下水Septic System
Size Irregular0.46
Detached Garage
Visitor Parking
水电气
ElectricityAvailable
电话Available
周边
设施Beach,Golf Nearby,Marina,Park,Place of Worship,Playground,Schools,Shopping
社区特点Community Centre
Location DescriptionFollow County Rd. 36 E from Bobcaygeon & head S. (turn right) on Edwina Dr. Follow Edwina Dr. to Northern Ave & head E. (turn left) to the subject property.
Zoning DescriptionRR
Other
Communication TypeHigh Speed Internet
特点Southern exposure,Golf course/parkland,Beach,Crushed stone driveway,Country residential
Basement未装修,Crawl space (Unfinished)
FireplaceFalse
HeatingForced air
Remarks
PERFECTLY CHARMING COUNTRY HOME ON LARGE 0.46 ACRES CLOSE TO LITTLE BALD LAKE - Welcome home to this well-loved & maintained 2 bedroom, 1 bathroom home on a wonderfully landscaped 0.46 acre lot dotted with fruit trees (apple, pear, crabapple), a backyard fishpond stocked with Koi (with pump, heater & bubbler), detached 1 car garage, plus storage sheds for all the garden tools! This property feels like coming home & is warm & relaxing. At one time this was a 3 bedroom home, but the owner decided on consolidating 2 beds into 1 to create a larger primary suite with a walk-out to the back deck overlooking the fishpond & expansive back yard. The mudroom creates a practical entry & includes laundry & sink. The kitchen with newer vinyl floors is open to the living room which is spacious yet cozy. Adjacent is the sitting room at the front of the house which is south facing so it's sun-drenched & a perfect place to relax & read a book. There is also a second entrance to the home in the sitting room as another option. Bedroom 2 has newer vinyl floors & is a perfect guest room or office. The bathroom is 4pc with new tile surround & newer flooring. On the outside, soak up all the green space which has been very well cared for & enjoy your very own garden of Eden or sit around the firepit to enjoy an evening with friends. Down the street is a marina to launch your boat. It's time to love where you live. (id:22211)
The listing data above is provided under copyright by the Canada Real Estate Association.
The listing data is deemed reliable but is not guaranteed accurate by Canada Real Estate Association nor RealMaster.
MLS®, REALTOR® & associated logos are trademarks of The Canadian Real Estate Association.
Location
Province:
Ontario
City:
Trent Lakes
Community:
Galway/Cavendish Township
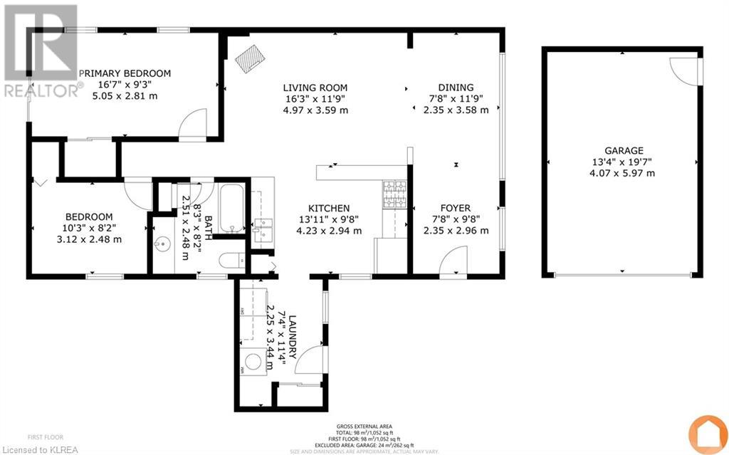
Room
Room
Level
Length
Width
Area
Mud
主
7.35
11.32
83.18
7'4'' x 11'4''
卧室
主
10.24
8.17
83.62
10'3'' x 8'2''
主卧
主
16.57
9.25
153.29
16'7'' x 9'3''
门廊
主
7.68
9.68
74.30
7'8'' x 9'8''
4pc Bathroom
主
NaN
Measurements not available
客厅
主
16.24
11.75
190.75
16'3'' x 11'9''
餐厅
主
7.68
11.75
90.17
7'8'' x 11'9''
厨房
主
13.91
9.68
134.64
13'11'' x 9'8''










































