- Ontario
- Toronto
8 Eglinton Ave E
CAD$619,000
CAD$619,000 要价
3407 8 Eglinton AvenueToronto, Ontario, M4P1A6
退市 · 过期 ·
11| 500-599 sqft
Listing information last updated on Sun May 05 2024 01:17:04 GMT-0400 (Eastern Daylight Time)

Open Map
Log in to view more information
Go To LoginSummary
IDC8046566
Status过期
产权共管产权
PossessionTBA
Brokered ByRIGHT AT HOME REALTY
Type民宅 公寓
Age
RoomsBed:1,Kitchen:1,Bath:1
Maint Fee463.78 / Monthly
Maint Fee Inclusions水,公共设施,房屋保险
Detail
公寓楼
浴室数量1
卧室数量1
地上卧室数量1
设施Storage - Locker
空调Central air conditioning
外墙Concrete
壁炉False
供暖方式Electric
供暖类型Heat Pump
使用面积
类型Apartment
Architectural StyleApartment
Rooms Above Grade2
Heat SourceElectric
Heat TypeHeat Pump
储藏室Owned
土地
面积false
车位
Parking FeaturesNone
Other
Internet Entire Listing Display是
Laundry FeaturesEnsuite
Basement无
BalconyTerrace
FireplaceN
A/CCentral Air
HeatingHeat Pump
Level34
Unit No.3407
Exposure北
Parking SpotsNone
Corp#TSCC2726
Prop MgmtFirst Service Residential
Remarks
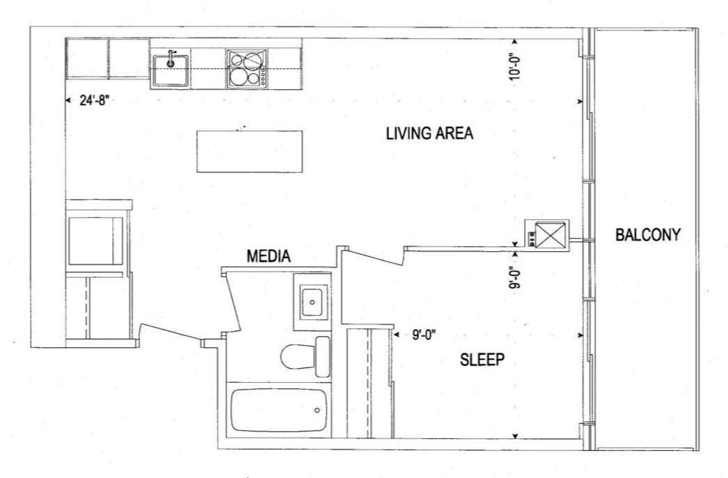
Modern Luxury Living in this Spacious 1Bed, 1Bath 'E-Condo' at the highly desirable Yonge/Eglinton location! Enjoy Direct Underground Access to Subway, close proximity to the Future LRT and public transit. Benefit from Remarkably Low Maintenance Fees. This condo boasts a 108 sqft Full-Length Balcony with access from both the Living Room and Bedroom, offering stunning views of the unobstructed North landscape. The 9ft ceiling and Floor-to-Ceiling Windows enhance the sense of space and light. Indulge in Luxurious Amenities, including an Indoor Pool with a Glass Wall, Saunas, Gym, Yoga Studio, Boxing Gallery, Tech Lounges, Party Room, and a Terrace for relaxation.The kitchen features Integrated Modern Appliances such as Washer & Dryer, Fridge, Stove, Dishwasher, Microwave, Quartz Countertop, and a Centre Island Table. One Locker is included.
The listing data is provided under copyright by the Toronto Real Estate Board.
The listing data is deemed reliable but is not guaranteed accurate by the Toronto Real Estate Board nor RealMaster.
Location
Province:
Ontario
City:
Toronto
Community:
Mount Pleasant West 01.C10.0760
Crossroad:
Yonge and Eglinton
Room
Room
Level
Length
Width
Area
Living Room
主
NaN
School Info
Private Schools6-8 Grades Only
Hodgson Middle School
529 Vaughan Rd, York3.608 km
MiddleEnglish
9-12 Grades Only
North Toronto Collegiate Institute
17 Broadway Ave, 多伦多0.183 km
SecondaryEnglish
K-8 Grades Only
St. Monica Catholic School
14 Broadway Ave, 多伦多0.275 km
ElementaryMiddleEnglish
9-12 Grades Only
Northern Secondary School
851 Mount Pleasant Rd, 多伦多0.708 km
Secondary
K-8 Grades Only
Holy Rosary Catholic School
308 Tweedsmuir Ave, 多伦多2.781 km
ElementaryMiddleFrench Immersion Program
Book Viewing
Your feedback has been submitted.
Submission Failed! Please check your input and try again or contact us














