- Ontario
- Toronto
400 Christie St
CAD$1,199,000
CAD$1,199,000 要价
400 Christie StreetToronto, Ontario, M6G3C6
退市 · 过期 ·
322(1+1)
Listing information last updated on Wed Nov 01 2023 01:19:05 GMT-0400 (Eastern Daylight Time)

Open Map
Log in to view more information
Go To LoginSummary
IDC6749052
Status过期
产权永久产权
PossessionTBD
Brokered ByRE/MAX HALLMARK REALTY LTD.
Type民宅 House,半独立
Age
Lot Size17.61 * 100.12 Feet
Land Size1763.11 ft²
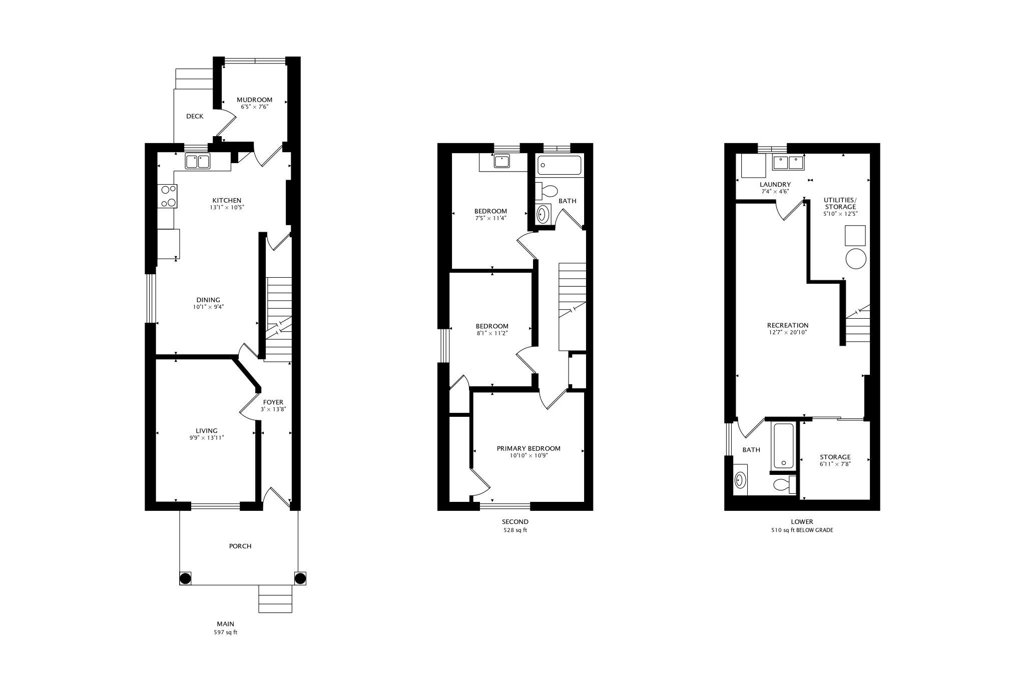
RoomsBed:3,Kitchen:1,Bath:2
Parking1 (2) 独栋车库 +1
Virtual Tour
Detail
公寓楼
浴室数量2
卧室数量3
地上卧室数量3
地下室装修Finished
地下室类型Full (Finished)
风格Semi-detached
外墙Brick
壁炉False
供暖方式Natural gas
供暖类型Radiant heat
使用面积
楼层2
类型House
Architectural Style2-Storey
Rooms Above Grade7
Heat SourceGas
Heat TypeRadiant
水Municipal
土地
面积17.61 x 100.12 FT
面积false
Size Irregular17.61 x 100.12 FT
车位
Parking FeaturesLane
Other
特点Lane
Den Familyroom是
Internet Entire Listing Display是
下水Sewer
Basement已装修,Full
PoolNone
FireplaceN
A/CNone
Heating辐射式
Furnished没有
Exposure西
Remarks
Rare semi-detached 2 stry 3+1 bdrm home on a 17.6x100 ft lot. Revered McMurrich Junior PS District.
*** LANE WAY HOUSE/COACH HOUSE permitted *** (Investor/Builders/Renovators Dream). Located In The Prestigious Wychwood/Hillcrest Area. TTC is at your doorstep. This home is ready for new owners to reimagine its space and make it their own - a rare offering not to be missed!Buyer's and BA to verify and do own due diligence; adjacent land beside the garage can be fenced in for personal use, to expand the backyard lot size (Many neighbouring lots have done so without issues). This is a hidden gem in the city!
The listing data is provided under copyright by the Toronto Real Estate Board.
The listing data is deemed reliable but is not guaranteed accurate by the Toronto Real Estate Board nor RealMaster.
Location
Province:
Ontario
City:
Toronto
Community:
Wychwood 01.C02.0850
Crossroad:
Davenport Rd & Christie St
School Info
Private SchoolsK-6 Grades Only
Mcmurrich Junior Public School
115 Winona Dr, 多伦多0.793 km
ElementaryEnglish
7-8 Grades Only
Winona Drive Senior Public School
101 Winona Dr, 多伦多0.774 km
MiddleEnglish
9-12 Grades Only
Oakwood Collegiate Institute
991 St Clair Ave W, 多伦多1.234 km
SecondaryEnglish
K-8 Grades Only
St. Bruno / St Raymond Catholic School
402 Melita Cres, 多伦多0.337 km
ElementaryMiddleEnglish
9-12 Grades Only
Western Technical-Commercial School
125 Evelyn Cres, 多伦多4.621 km
Secondary
K-6 Grades Only
St. Alphonsus Catholic School
60 Atlas Ave, York1.228 km
ElementaryFrench Immersion Program
Book Viewing
Your feedback has been submitted.
Submission Failed! Please check your input and try again or contact us






































