- Ontario
- Toronto
2000 Bloor St W
SoldCAD$xxx,xxx
CAD$389,000 要价
106 2000 Bloor StreetToronto, Ontario, M6P3L2
成交
011| 0-499 sqft
Listing information last updated on Mon Dec 23 2024 15:32:27 GMT-0500 (Eastern Standard Time)

Open Map
Log in to view more information
Go To LoginSummary
IDW10430164
Status成交
PossessionImmediate/Tba
Brokered ByROYAL LEPAGE REAL ESTATE SERVICES LTD.
Type民宅 公寓,CO-OP公寓
Age
RoomsBed:0,Kitchen:1,Bath:1
Parking1 (1) 地下车位 +1
Maint Fee415.5 /
Maint Fee Inclusions取暖,电,水,有线电视,公共设施,房屋保险,车位,Condo Taxes
Detail
公寓楼
Architectural StyleApartment
Property FeaturesFenced Yard,Library,Park,Public Transit,Rec./Commun.Centre
Rooms Above Grade2
Heat SourceGas
Heat TypeRadiant
储藏室Exclusive
Laundry LevelLower Level
车位
Parking FeaturesUnderground
水电气
电梯是
Other
Interior FeaturesOther
Internet Entire Listing Display是
Laundry FeaturesNone
Basement无
BalconyNone
FireplaceN
A/COther
Heating辐射式
TV有
Shares1.0514
Level1
Unit No.106
Exposure北
Parking SpotsExclusive#T
Corp#N/A
Prop MgmtGrenville Manor 416-763-5432
Remarks
If you are dreaming of having your own place in the High Park neighbourhood, this is your chance. You can live directly across from the famous High Park, seconds from the Subway Station, surrounded by a great variety of shops, cafes & restaurants in Bloor West Village & The Junction. This rarely available studio unit, one of only four in the building, is located in a low rise, quiet & very well-maintained co-operative. There are new windows throughout the building, and the roof was recently re-done. What makes this apartment really comfortable & special is a very functional layout with lots of possibilities, a full length mirror wall, a full bathroom, smooth ceilings throughout, 2 closets, a separate kitchen with a small window & another large window overlooking the greenery in the courtyard. The main floor location enables quick & easy access with no need for an elevator. Comes with a large locker & a rare parking spot to boot. Amazing deal in an amazing location!Low all inclusive monthly fees cover all utilities plus Xfinity TV and High Speed Internet provided by Rogers and Property Taxes! Must be owner occupied. No dogs allowed. Financing available through Credit Unions.
The listing data is provided under copyright by the Toronto Real Estate Board.
The listing data is deemed reliable but is not guaranteed accurate by the Toronto Real Estate Board nor RealMaster.
Location
Province:
Ontario
City:
Toronto
Community:
High Park North 01.W02.0440
Crossroad:
Bloor & High Park
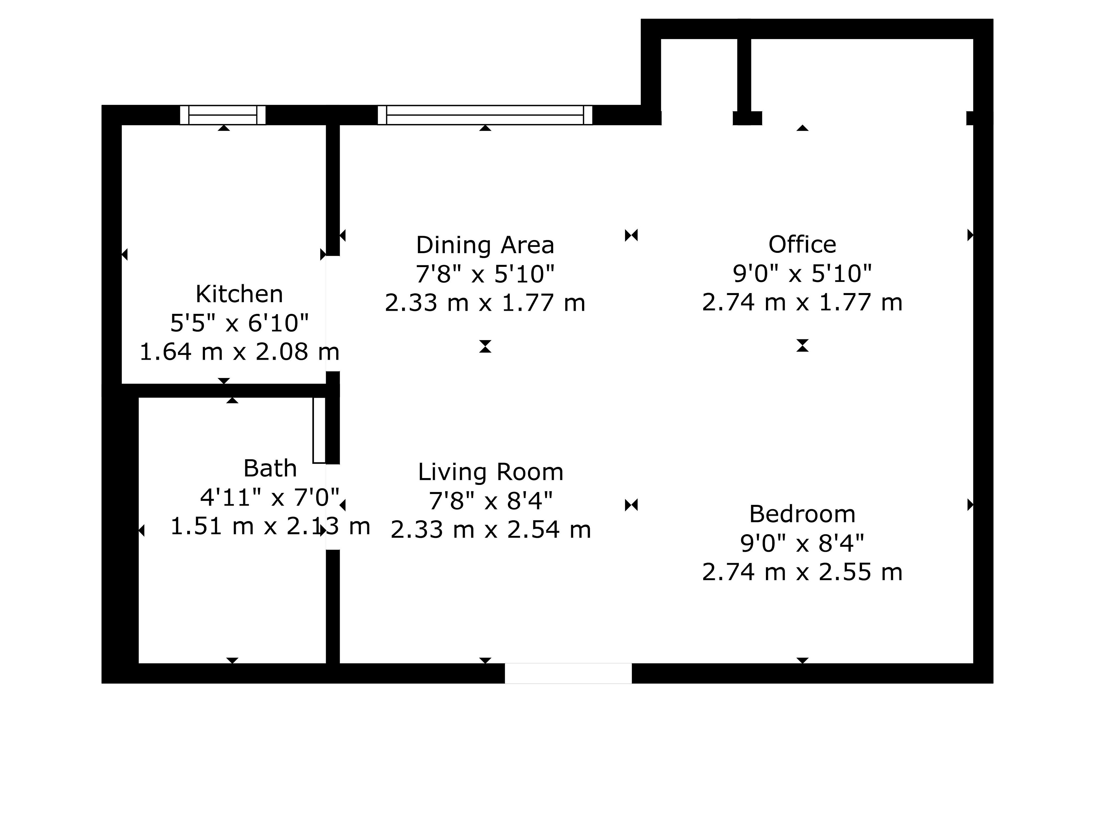
Room
Room
Level
Length
Width
Area
Living Room
主
16.57
15.19
251.68
Dining Room
主
16.57
15.19
251.68
主卧
主
16.57
15.19
251.68
厨房
主
7.25
5.97
43.29
School Info
Private SchoolsK-8 Grades Only
Keele Street Public School
99 Mountview Ave, 多伦多0.738 km
ElementaryMiddleEnglish
9-12 Grades Only
Humberside Collegiate Institute
280 Quebec Ave, 多伦多0.741 km
SecondaryEnglish
K-8 Grades Only
St. Josaphat Catholic School
110 10th St, 怡陶碧谷6.765 km
ElementaryMiddleEnglish
K-8 Grades Only
St. Cecilia Catholic School
355 Annette St, 多伦多1.028 km
ElementaryMiddleEnglish
9-12 Grades Only
Western Technical-Commercial School
125 Evelyn Cres, 多伦多0.674 km
Secondary
K-8 Grades Only
St. Cecilia Catholic School
355 Annette St, 多伦多1.028 km
ElementaryMiddleFrench Immersion Program
Book Viewing
Your feedback has been submitted.
Submission Failed! Please check your input and try again or contact us




















