- Ontario
- Toronto
17 Ravenal St
SoldCAD$x,xxx,xxx
CAD$1,089,900 要价
17 Ravenal StreetToronto, Ontario, M6N3Y6
成交
3+122(0+2)| 1100-1500 sqft
Listing information last updated on Sat Jul 22 2023 16:55:59 GMT-0400 (Eastern Daylight Time)

Open Map
Log in to view more information
Go To LoginSummary
IDW6643306
Status成交
产权永久产权
PossessionTBD
Brokered ByRE/MAX HALLMARK REALTY LTD.
Type民宅 House,半独立
Age 100+
Lot Size22 * 94.5 Feet
Land Size2079 ft²
RoomsBed:3+1,Kitchen:1,Bath:2
Virtual Tour
Detail
公寓楼
浴室数量2
卧室数量4
地上卧室数量3
地下卧室数量1
地下室装修Finished
地下室类型Full (Finished)
风格Semi-detached
空调Central air conditioning
壁炉False
供暖方式Natural gas
供暖类型Forced air
使用面积
楼层2
类型House
Architectural Style2-Storey
Rooms Above Grade11
Heat SourceGas
Heat TypeForced Air
水Municipal
Laundry LevelLower Level
Other StructuresGarden Shed
土地
面积22 x 94.5 FT
面积false
Size Irregular22 x 94.5 FT
车位
Parking FeaturesPrivate
Other
Internet Entire Listing Display是
下水Sewer
Basement已装修,Full
PoolNone
FireplaceN
A/CCentral Air
Heating压力热风
Exposure东
Remarks
Move up and first time buyers, are you ready to leave the condo behind and tell your landlord it's time for you to build your own equity?! This is your start right here, right now at 17 Ravenal. All you want in a home. 3+1 bedrooms, 2 full bathrooms, a quiet dead end street with a driveway for 2 cars and a generous, private backyard ideal for entertaining! Close proximity to the Stockyards shopping plaza, the Junction neighbourhood for the best local shopping, dining and entertainment and transit along St Clair.
The listing data is provided under copyright by the Toronto Real Estate Board.
The listing data is deemed reliable but is not guaranteed accurate by the Toronto Real Estate Board nor RealMaster.
Location
Province:
Ontario
City:
Toronto
Community:
Rockcliffe-Smythe 01.W03.0360
Crossroad:
St. Clair West / Runnymede
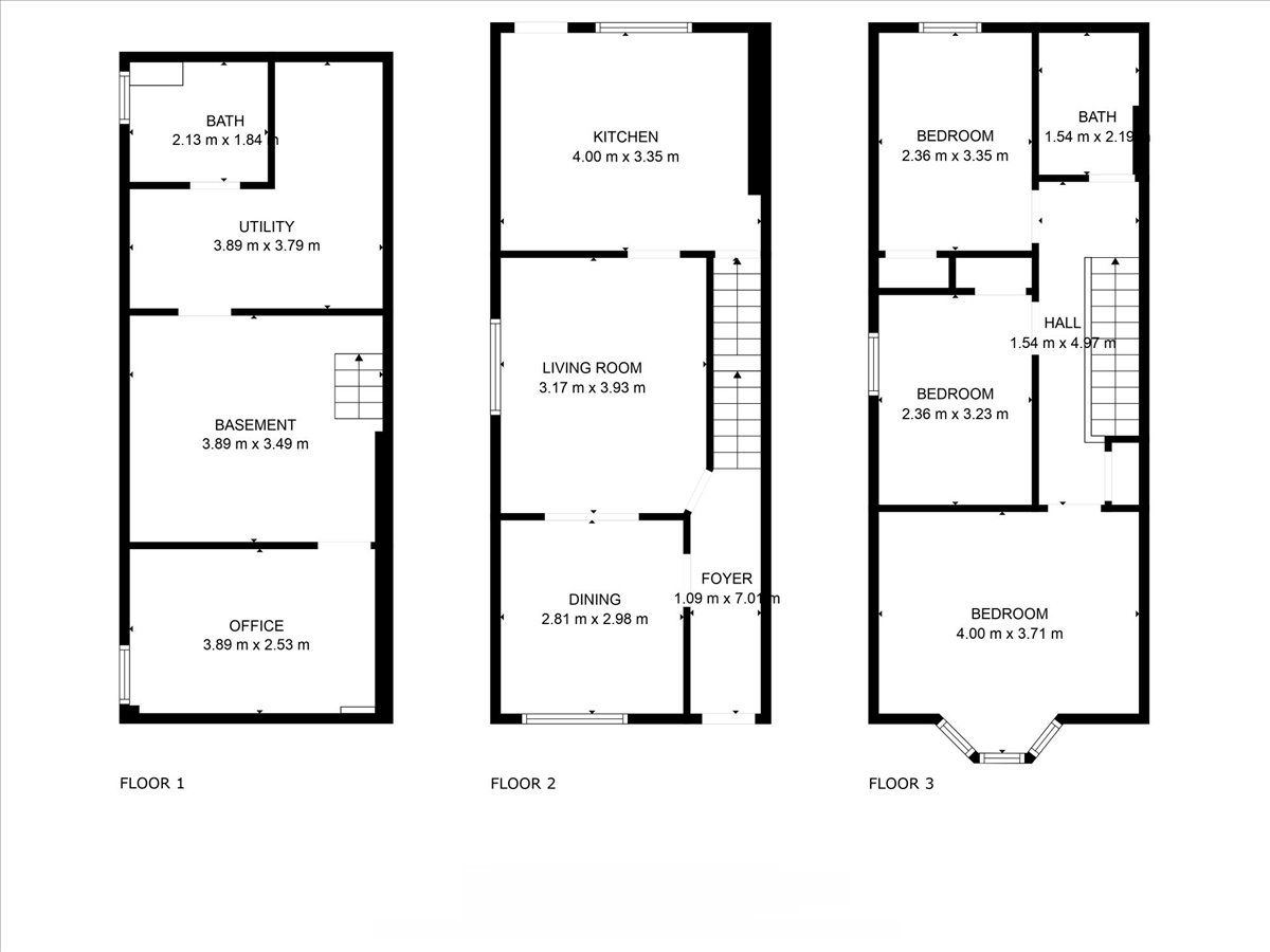
Room
Room
Level
Length
Width
Area
厨房
地面
13.12
10.99
144.24
Walk-Out Window
客厅
地面
12.89
10.40
134.10
Hardwood Floor Open Concept
餐厅
地面
9.78
9.22
90.13
Hardwood Floor Large Window
卧室
2nd
13.12
12.17
159.74
Broadloom Bay Window
第二卧房
2nd
10.60
-39.37
-417.21
Broadloom Window
第三卧房
2nd
10.99
7.74
85.10
Broadloom Window
浴室
2nd
7.19
5.05
36.30
Window Soaker 4 Pc Bath
家庭
地下室
12.76
11.45
146.13
Broadloom
洗衣房
地下室
12.43
-19.69
-244.77
浴室
地下室
6.99
-68.90
-481.47
4 Pc Bath
School Info
Private SchoolsK-8 Grades Only
George Syme Community School
69 Pritchard Ave, York0.771 km
ElementaryMiddleEnglish
9-12 Grades Only
Runnymede Collegiate Institute
569 Jane St, York1.147 km
SecondaryEnglish
K-8 Grades Only
St. Demetrius Catholic School
125 La Rose Ave, 怡陶碧谷3.557 km
ElementaryMiddleEnglish
K-8 Grades Only
James Culnan Catholic School
605 Willard Ave, York1.262 km
ElementaryMiddleEnglish
9-12 Grades Only
Western Technical-Commercial School
125 Evelyn Cres, 多伦多1.693 km
Secondary
K-8 Grades Only
James Culnan Catholic School
605 Willard Ave, York1.262 km
ElementaryMiddleFrench Immersion Program
Book Viewing
Your feedback has been submitted.
Submission Failed! Please check your input and try again or contact us



























