- British Columbia
- Sooke
6887 Beaton Rd
CAD$759,900
CAD$759,900 要价
6887 Beaton RdSooke, British Columbia, V9Z0M3
退市 · 退市 ·
433| 2306 sqft
Listing information last updated on Tue Sep 10 2024 19:47:52 GMT-0400 (Eastern Daylight Time)

Open Map
Log in to view more information
Go To LoginSummary
ID971412
Status退市
产权Freehold
Brokered ByRoyal LePage Coast Capital - Chatterton
TypeResidential House
AgeConstructed Date: 1980
Land Size7405 sqft
Square Footage2306 sqft
RoomsBed:4,Bath:3
Virtual Tour
Detail
公寓楼
浴室数量3
卧室数量4
建筑日期1980
空调See Remarks
壁炉True
壁炉数量2
火警Fire alarm system
供暖方式Wood
供暖类型Baseboard heaters
使用面积2306 sqft
装修面积1991 sqft
类型House
土地
总面积7405 sqft
面积7405 sqft
交通Road access
面积false
Size Irregular7405
周边
Zoning DescriptionR2
Zoning TypeResidential
Other
特点Central location,Other
FireplaceTrue
HeatingBaseboard heaters
Remarks
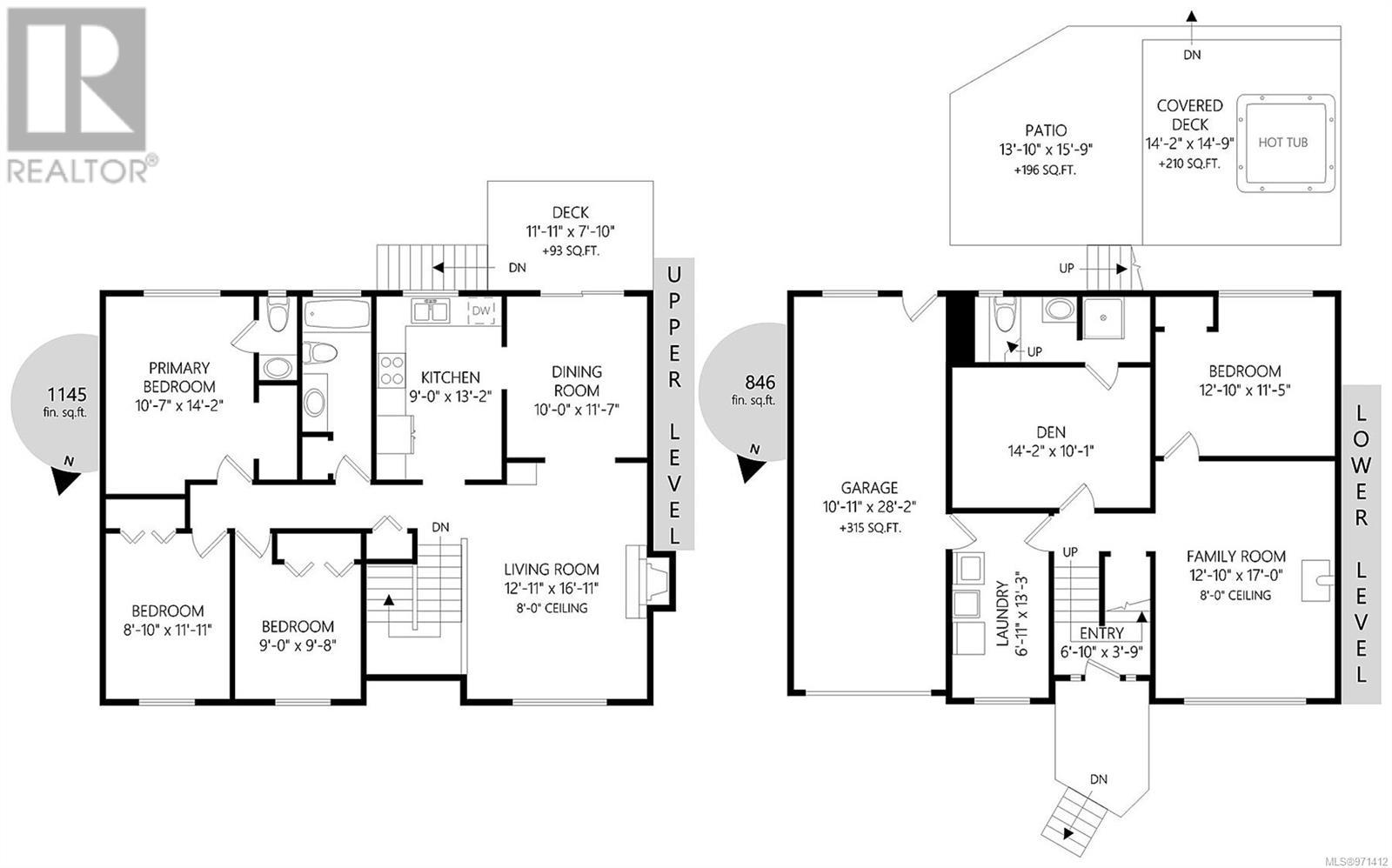
This split level 4 bedroom plus bonus room, 2.5 bath home is in the family friendly Broomhill neighborhood, located right across from a park and is on city and school bus routes. Upstairs offers 3 bedrooms, primary includes attached 2 piece ensuite, 4 piece bathroom, living room with stone wood burning fireplace, bright kitchen with stainless steel appliances, formal dining room with sliding doors to covered deck. Downstairs is the 4th bedroom, bonus room, 3 piece bathroom, large family room with wood burning stove, and laundry/mud room with access to the garage. New roof including gutters and guards installed December 2023 with 50 year transferable warranty, large fully fenced backyard with 2 decks and 1 that is fully covered with a maintained hot tub, lovely garden area with established raspberry and thornless blackberry bushes, separate dog run space and lots of room for kids and pets to play. Parking includes single car garage, double wide driveway, with room for your RV or boat. (id:22211)
The listing data above is provided under copyright by the Canada Real Estate Association.
The listing data is deemed reliable but is not guaranteed accurate by Canada Real Estate Association nor RealMaster.
MLS®, REALTOR® & associated logos are trademarks of The Canadian Real Estate Association.
Location
Province:
British Columbia
City:
Sooke
Community:
Broomhill
Room
Room
Level
Length
Width
Area
洗衣房
Lower
6.92
13.25
91.76
6'11 x 13'3
家庭
Lower
12.83
16.99
218.01
12'10 x 17'0
Exercise
Lower
14.17
10.07
142.76
14'2 x 10'1
浴室
Lower
NaN
3-Piece
卧室
Lower
12.83
11.42
146.46
12'10 x 11'5
厨房
主
8.99
13.16
118.27
9'0 x 13'2
客厅
主
12.93
16.93
218.83
12'11 x 16'11
餐厅
主
10.01
11.58
115.89
10'0 x 11'7
Ensuite
主
NaN
2-Piece
浴室
主
NaN
4-Piece
主卧
主
10.60
14.17
150.20
10'7 x 14'2
卧室
主
8.83
11.91
105.11
8'10 x 11'11
卧室
主
8.99
9.68
87.00
9'0 x 9'8









































