- New Brunswick
- Quispamsis
80 Nightingale Lane
CAD$649,900
CAD$649,900 要价
80 Nightingale LaneQuispamsis, New Brunswick, E2E3T1
退市 · 退市 ·
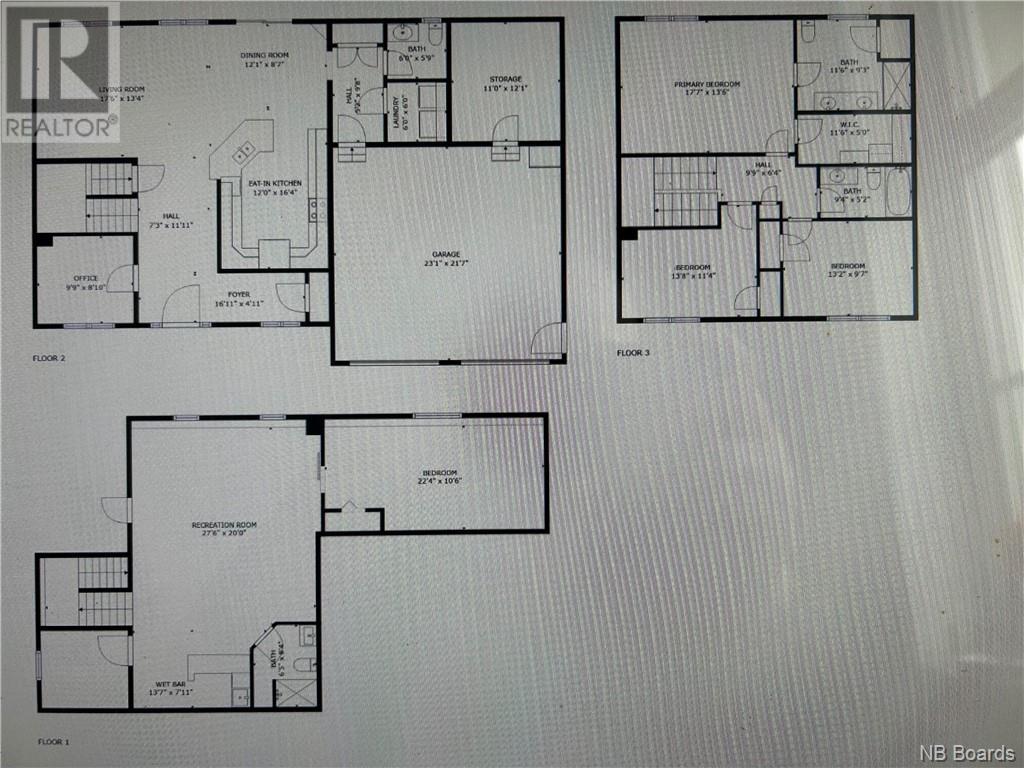
3+14| 2300 sqft
Listing information last updated on Sat Jul 01 2023 04:15:27 GMT-0400 (Eastern Daylight Time)

Open Map
Log in to view more information
Go To LoginSummary
IDNB087970
Status退市
Brokered ByROYAL LEPAGE ATLANTIC
TypeResidential House
AgeConstructed Date: 2018
Land Size14000 sqft
Square Footage2300 sqft
RoomsBed:3+1,Bath:4
Virtual Tour
Detail
公寓楼
浴室数量4
卧室数量4
地上卧室数量3
地下卧室数量1
Architectural Style2 Level
地下室装修Finished
地下室类型Full (Finished)
建筑日期2018
空调Air Conditioned,Heat Pump,Air exchanger
外墙Stone,Vinyl
壁炉False
地板Ceramic,Tile,Wood
地基Concrete
洗手间1
供暖方式Electric
供暖类型Heat Pump
屋顶材料Asphalt shingle
屋顶风格Unknown
使用面积2300.0000
装修面积3500 sqft
类型House
供水Drilled Well,Well
土地
总面积14000 sqft
面积14000 sqft
交通Year-round access
面积false
景观Landscaped
下水Municipal sewage system
Size Irregular14000
Attached Garage
Garage
Heated Garage
周边
Location DescriptionPettingill to Quispamsis Road turn right to Nightgale.
Other
特点Level lot,Balcony/Deck/Patio
Basement已装修,Full(已装修)
FireplaceFalse
HeatingHeat Pump
Remarks
Perfectly set in the much sought-after FERNWOOD PARK neighbourhood, this recently constructed, 2-storey home seamlessly blends luxury ,privacy, and convenience to nearby schools, walking trails and the ever popular QPlex. As you enter the foyer, the main floor flows into a bright, open-concept, living, dining and kitchen area with ample space for entertaining. You'll never run out of storage with the beautiful custom cabinets and the built-in bar is the perfect place for guests to sit as you prepare dinner. The main floor also features a dedicated office and laundry room and as you walk out unto the back deck you are surrounded by an immaculately landscaped, tree lined, and fenced in backyard that is perfect for family gatherings or playing with the dogs. With 3 bedrooms and 2 bathrooms upstairs and a newly finished basement with an enormous rec room, bedroom, and bathroom, you will have all the space needed for family and friends. The insulated, 2-car garage features a heated workshop/storage room off the back which could easily function as a home gym or music room. The SALMON CREEK WATERSHED flows just behind the property and ensures that the only additional houses being built will be from the birds and other wildlife. Schedule your viewing today as this move-in ready home won't last long! BUYERS TO CONFIRM MEASUREMENTS BY CLOSING. (id:22211)
The listing data above is provided under copyright by the Canada Real Estate Association.
The listing data is deemed reliable but is not guaranteed accurate by Canada Real Estate Association nor RealMaster.
MLS®, REALTOR® & associated logos are trademarks of The Canadian Real Estate Association.
Location
Province:
New Brunswick
City:
Quispamsis
















































