- Ontario
- Port Colborne
56 Oakridge Cres
CAD$599,900
CAD$599,900 要价
56 OAKRIDGE CrescentPort Colborne, Ontario, L3K2T4
退市
214| 1500 sqft
Listing information last updated on Sat Apr 13 2024 08:40:04 GMT-0400 (Eastern Daylight Time)

Open Map
Log in to view more information
Go To LoginSummary
ID40513163
Status退市
产权Freehold
Brokered ByRE/MAX NIAGARA REALTY LTD, BROKERAGE
TypeResidential House,Detached,Bungalow
AgeConstructed Date: 1924
Land Size0.18 ac|under 1/2 acre
Square Footage1500 sqft
RoomsBed:2,Bath:1
Virtual Tour
Detail
公寓楼
浴室数量1
卧室数量2
地上卧室数量2
家用电器Refrigerator,Stove,Water meter,Garage door opener
Architectural StyleBungalow
地下室装修Unfinished
地下室类型Full (Unfinished)
建筑日期1924
风格Detached
空调None
外墙Vinyl siding
壁炉True
壁炉数量1
火警Smoke Detectors
固定装置Ceiling fans
供暖方式Natural gas
供暖类型Forced air
使用面积1500.0000
楼层1
类型House
供水Municipal water
土地
总面积0.18 ac|under 1/2 acre
面积0.18 ac|under 1/2 acre
交通Road access
面积false
设施Beach,Golf Nearby,Marina,Park,Place of Worship,Schools,Shopping
围墙类型Partially fenced
下水Municipal sewage system
Size Irregular0.18
周边
设施Beach,Golf Nearby,Marina,Park,Place of Worship,Schools,Shopping
社区特点Quiet Area,Community Centre
Location DescriptionSouth on Oakridge Crescent from Lakeshore Road West
Zoning DescriptionR1
Other
特点Paved driveway,Automatic Garage Door Opener
Basement未装修,Full(未装修)
FireplaceTrue
HeatingForced air
Remarks
Turn key!!! Enjoy calming views of beautiful Lake Erie from this adorable bungalow in one of Port Colborne's most desirable neighbourhoods. Enjoy summer days on your front porch and cozy winter nights in front of your stone fireplace. The open concept design allows lots of natural sunlight in from every angle. The formal dining room could be a bright sunroom or main floor family room for the kids to play or one of you to watch your sports! Two main floor bedrooms makes this ideal for a retirement home or a great start to home ownership. The walk up attic would be ideal as a 3rd bedroom or extra living space. Keep your car protected in the detached garage. Stroll down the promenade along the lake to one of the many boutiques and amazing eateries that Port has to offer or just relax along the historic Welland canal and watch the ships sliver through the quiet water. Make your appointment today...you will not be disappointed! Immediate possession is available! (id:22211)
The listing data above is provided under copyright by the Canada Real Estate Association.
The listing data is deemed reliable but is not guaranteed accurate by Canada Real Estate Association nor RealMaster.
MLS®, REALTOR® & associated logos are trademarks of The Canadian Real Estate Association.
Location
Province:
Ontario
City:
Port Colborne
Community:
Sugarloaf
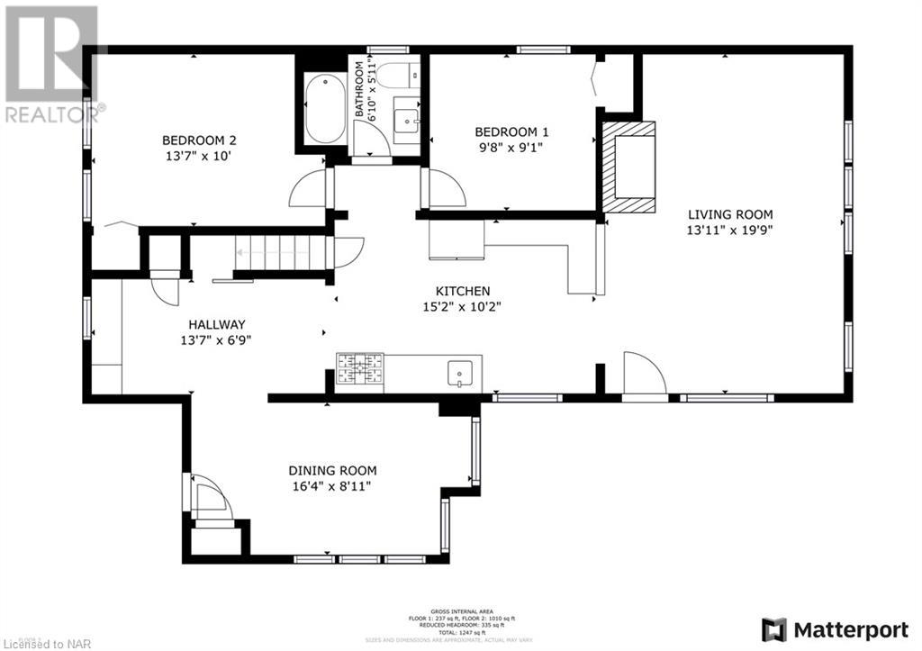
Room
Room
Level
Length
Width
Area
Attic
Second
29.07
12.60
366.21
29'1'' x 12'7''
洗衣房
地下室
17.26
12.93
223.08
17'3'' x 12'11''
4pc Bathroom
主
NaN
Measurements not available
卧室
主
9.68
9.09
87.96
9'8'' x 9'1''
卧室
主
13.58
10.01
135.92
13'7'' x 10'0''
Dinette
主
13.58
6.76
91.80
13'7'' x 6'9''
餐厅
主
16.34
8.92
145.80
16'4'' x 8'11''
厨房
主
15.16
10.17
154.16
15'2'' x 10'2''
客厅
主
19.75
13.91
274.75
19'9'' x 13'11''
School Info
Private SchoolsK-8 Grades Only
Steele Street Public School
214 Steele St, Port Colborne1.915 km
ElementaryMiddleEnglish
9-12 Grades Only
Port Colborne High School
211 Elgin St, Port Colborne2.289 km
SecondaryEnglish
K-8 Grades Only
St Patrick Catholic Elementary School (pc)
266 Rosemount Ave, Port Colborne1.588 km
ElementaryMiddleEnglish
9-12 Grades Only
Lakeshore Catholic High School
150 Janet St, Port Colborne3.658 km
SecondaryEnglish
1-8 Grades Only
Mckay Public School
320 Fielden Ave, Port Colborne2.401 km
ElementaryMiddleFrench Immersion Program
9-12 Grades Only
Welland Centennial
240 Thorold Rd, 韦兰14.783 km
SecondaryFrench Immersion Program






































