- Ontario
- Oakville
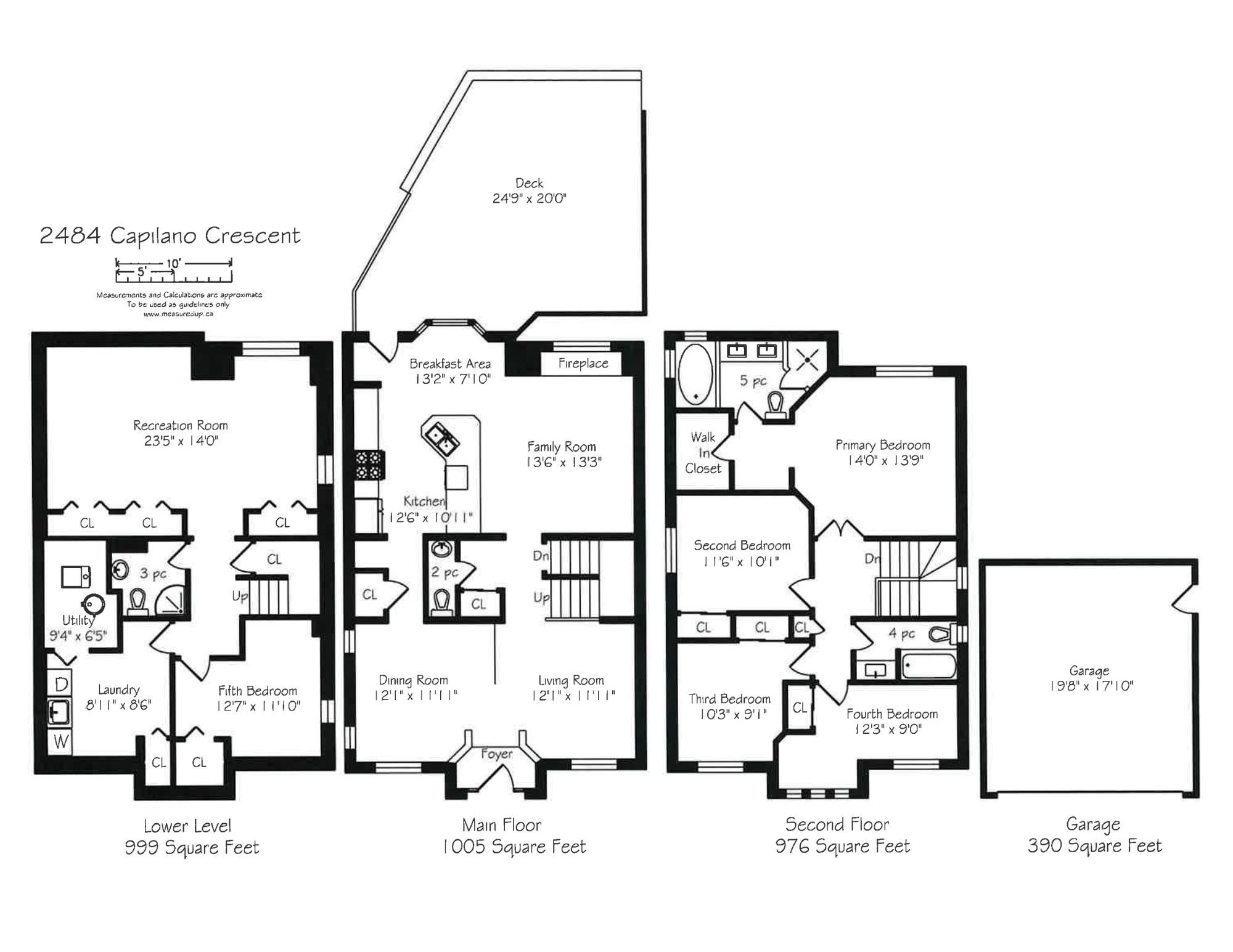
2484 Capilano Cres
CAD$1,695,000
CAD$1,695,000 要价
2484 Capilano CrescentOakville, Ontario, L6H6L4
退市 · 终止 ·
4+147(2+5)
Listing information last updated on Wed Sep 25 2024 10:25:40 GMT-0400 (Eastern Daylight Time)

Open Map
Log in to view more information
Go To LoginSummary
IDW9055993
Status终止
产权永久产权
Possession60 Days
Brokered ByROYAL LEPAGE REAL ESTATE SERVICES LTD.
Type民宅 House,独立屋
Age 16-30
Lot Size39.37 * 119.62 Feet
Land Size4709.44 ft²
RoomsBed:4+1,Kitchen:1,Bath:4
Parking2 (7) 独栋车库 +5
Virtual Tour
Detail
公寓楼
浴室数量4
卧室数量5
地上卧室数量4
地下卧室数量1
家用电器Water Heater
地下室装修Finished
地下室类型Full (Finished)
风格Detached
空调Central air conditioning
外墙Brick
壁炉True
壁炉数量1
地板Hardwood,Concrete,Carpeted
地基Block
洗手间1
供暖方式Natural gas
供暖类型Forced air
使用面积
楼层2
装修面积
类型House
供水Municipal water
Architectural Style2-Storey
Fireplace是
Property FeaturesFenced Yard,Hospital,Park,Place Of Worship,Public Transit,School
Rooms Above Grade12
Fireplaces Total1
RoofAsphalt Shingle
Heat SourceGas
Heat TypeForced Air
水Municipal
Laundry LevelLower Level
Sewer YNAYes
Water YNAYes
Telephone YNAAvailable
土地
面积39.37 x 119.62 FT|under 1/2 acre
面积false
设施Hospital,Park,Place of Worship,Public Transit,Schools
围墙类型Fenced yard
下水Sanitary sewer
Size Irregular39.37 x 119.62 FT
Lot Size Range Acres< .50
车位
Parking FeaturesPrivate
水电气
Electric YNA是
周边
设施医院,公园,参拜地,公交,周边学校
Location DescriptionDundas St W/Towne Blvd
Zoning DescriptionRL8
Other
Den Familyroom是
Interior FeaturesWater Heater Owned
Internet Entire Listing Display是
下水Sewer
Basement已装修,Full
PoolNone
FireplaceY
A/CCentral Air
Heating压力热风
TVAvailable
Exposure西
Remarks
Act quickly to own on this highly sought after street in one of the best neighborhoods in Oakville, River Oaks! This spacious, open concept home is perfect for a growing family and provides close to 3,000sf of total living space across all levels. Beautiful hardwood floors adorn the main floor living area, while the oversized updated kitchen overlooks a cozy family room with fireplace, and proceeds out to an inviting 420sf deck, all perfect for entertaining family and friends. The newly carpeted fully finished basement provides even more relaxation space, or can readily be used as an in law suite with the convenience of a 5th bedroom and 3pc washroom. The neighborhood boasts tremendous amenities: some of the finest schools in the province, great shopping and dining, walking trails, and close proximity to Oakville Trafalgar Hospital as well as River Oaks Community Centre.Fridge, Stove, B/I Dishwasher, Washer, Dryer, All Electric Light Fixtures and Window Coverings.
The listing data is provided under copyright by the Toronto Real Estate Board.
The listing data is deemed reliable but is not guaranteed accurate by the Toronto Real Estate Board nor RealMaster.
Location
Province:
Ontario
City:
Oakville
Community:
River Oaks 06.04.0070
Crossroad:
Dundas St W/Towne Blvd
Room
Room
Level
Length
Width
Area
Living Room
主
12.07
11.91
143.79
Dining Room
主
12.07
11.91
143.79
家庭厅
主
13.48
13.25
178.73
厨房
主
12.50
18.77
234.58
主卧
Second
14.01
13.75
192.58
Bedroom 2
Second
11.52
10.07
115.99
Bedroom 3
Second
10.24
9.09
93.03
Bedroom 4
Second
12.24
8.99
110.01
娱乐
地下室
23.43
14.01
328.17
Bedroom 5
地下室
12.60
11.84
149.21
洗衣房
地下室
8.92
8.50
75.83
Utility Room
地下室
9.32
6.43
59.92
School Info
Private SchoolsK-8 Grades Only
River Oaks Public School
2173 Munn's Ave, 奥克维尔1.338 km
ElementaryMiddleEnglish
9-12 Grades Only
White Oaks Secondary School
1330 Montclair Dr, 奥克维尔3.029 km
SecondaryEnglish
K-8 Grades Only
Our Lady Of Peace Elementary School
391 River Glen Blvd, 奥克维尔0.409 km
ElementaryMiddleEnglish
9-12 Grades Only
Holy Trinity Secondary School
2420 6th Line, 奥克维尔1.138 km
SecondaryEnglish
2-8 Grades Only
Sunningdale Public School
1434 Oxford Ave, 奥克维尔2.391 km
ElementaryMiddleFrench Immersion Program
9-12 Grades Only
White Oaks Secondary School
1330 Montclair Dr, 奥克维尔3.029 km
SecondaryFrench Immersion Program
1-8 Grades Only
St. Marguerite D'Youville Elementary School
1359 Bayshire Dr, 奥克维尔4.502 km
ElementaryMiddleFrench Immersion Program
9-12 Grades Only
St. Ignatius Of Loyola Secondary School
1550 Nottinghill Gate, 奥克维尔2.863 km
SecondaryFrench Immersion Program
Book Viewing
Your feedback has been submitted.
Submission Failed! Please check your input and try again or contact us


































