- British Columbia
- Nanaimo
345 Newcastle Ave
CAD$2,700,000
CAD$2,700,000 要价
500 345 Newcastle AveNanaimo, British Columbia, V9S4H9
退市 · 退市 ·
332| 2283 sqft
Listing information last updated on Sat Dec 14 2024 02:08:52 GMT-0500 (Eastern Standard Time)

Open Map
Log in to view more information
Go To LoginSummary
ID968497
Status退市
产权Strata
Brokered ByeXp Realty
TypeResidential Apartment
AgeConstructed Date: 2026
Land Size2283 sqft
Square Footage2283 sqft
RoomsBed:3,Bath:3
Maint Fee859.35 / Monthly
Virtual Tour
Detail
公寓楼
浴室数量3
卧室数量3
家用电器Refrigerator,Stove,Washer,Dryer
建筑日期2026
空调Air Conditioned
壁炉True
壁炉数量1
供暖方式Natural gas
供暖类型Heat Pump
使用面积2283 sqft
装修面积2283 sqft
类型Apartment
土地
总面积2283 sqft
面积2283 sqft
交通Road access
面积false
Size Irregular2283
周边
社区特点Pets Allowed,Family Oriented
风景Mountain view,Ocean view
Zoning DescriptionR8
Zoning TypeResidential
Other
特点Central location,Other,Marine Oriented
FireplaceTrue
HeatingHeat Pump
Unit No.500
Prop MgmtArdent Properties INC.
Remarks
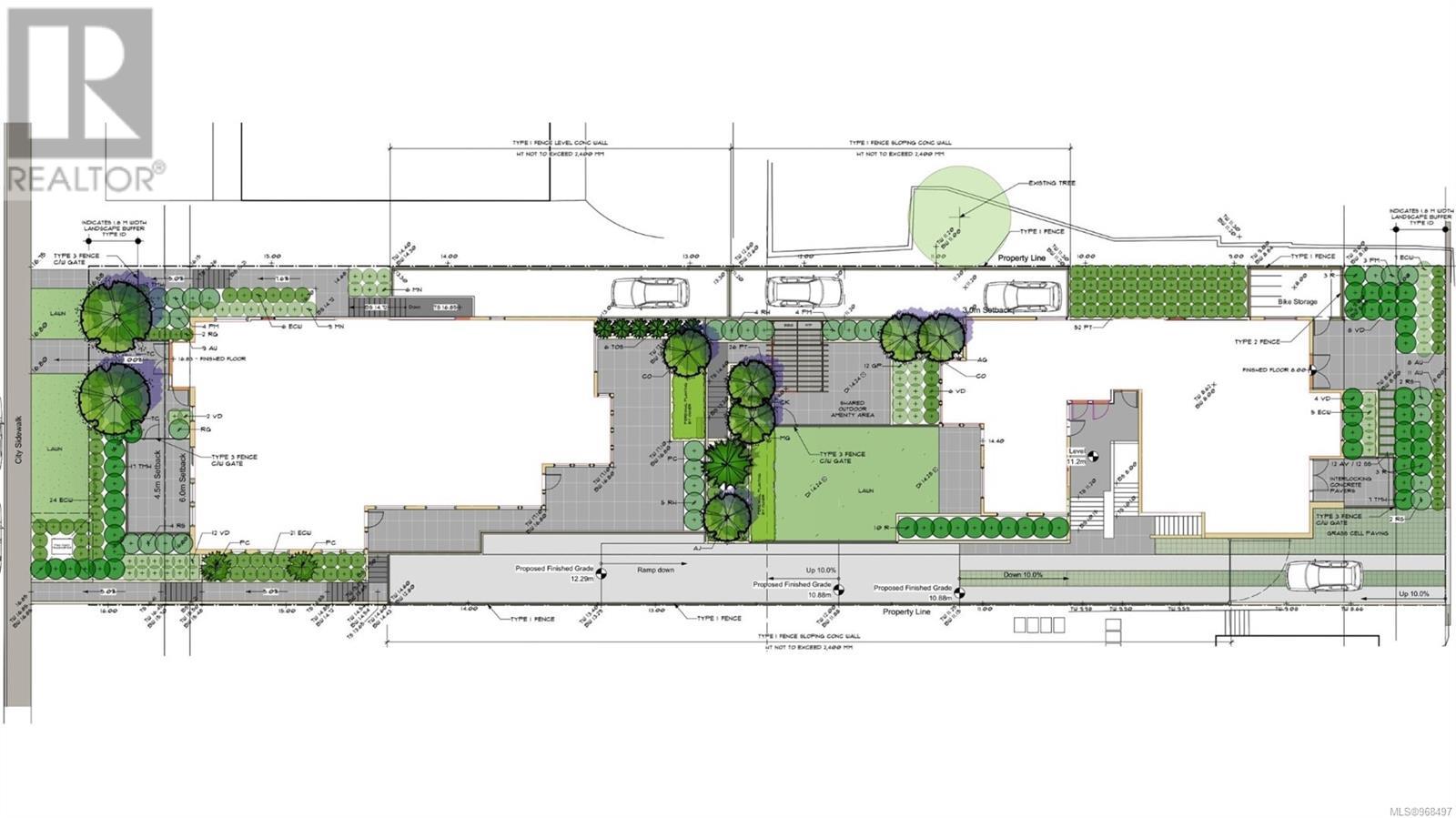
Newcastle penthouse homes represent a once in a lifetime opportunity to build a customized waterfront condo. Exceedingly rare, only three of these homes will ever be built on the Nanaimo waterfront. Each suite will have 2,238 sqft of interior living space and include 3 bedrooms, a den, an office, and 3 bathrooms. They will each have a private and enclosed two car garage.These penthouse homes will occupy an entire floor, creating a private and exclusive enclave – imagine stepping out of your secure elevator and directly into your private suite. With windows on all four sides, unusual for condominium homes, the main living space will feature views of Nanaimo Harbour and the waterfront promenade. Located across the street from the Nanaimo Yacht Club and a short waterfront walk to the services and amenities of downtown Nanaimo, Newcastle Avenue is an address coveted for its urban waterfront lifestyle. Given the very small number of homes, an early commitment can provide a unique opportunity for owners to discuss a wide range of customizations. (id:22211)
The listing data above is provided under copyright by the Canada Real Estate Association.
The listing data is deemed reliable but is not guaranteed accurate by Canada Real Estate Association nor RealMaster.
MLS®, REALTOR® & associated logos are trademarks of The Canadian Real Estate Association.
Location
Province:
British Columbia
City:
Nanaimo
Community:
Seaglass
Room
Room
Level
Length
Width
Area
卧室
主
10.99
NaN
11 ft x Measurements not available
浴室
主
NaN
4-Piece
卧室
主
11.32
10.50
118.83
11'4 x 10'6
厨房
主
12.17
12.83
156.14
12'2 x 12'10
餐厅
主
10.01
14.01
140.18
10 ft x 14 ft
客厅
主
14.01
NaN
Measurements not available x 14 ft
浴室
主
NaN
2-Piece
小厅
主
14.01
NaN
Measurements not available x 14 ft
媒体
主
11.32
9.68
109.55
11'4 x 9'8
洗衣房
主
7.68
6.82
52.39
7'8 x 6'10
Ensuite
主
NaN
5-Piece
主卧
主
18.01
12.01
216.28
18 ft x 12 ft











