- Ontario
- London
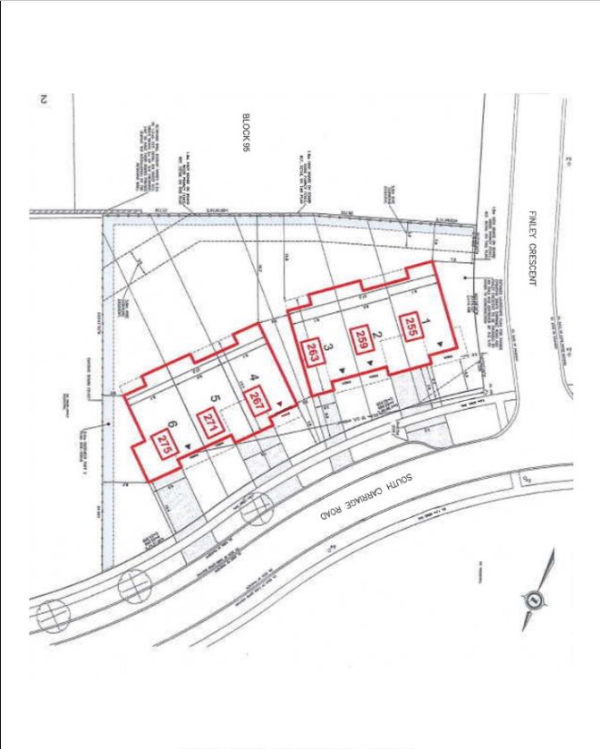
259 South Carriage Rd
SoldCAD$xxx,xxx
CAD$599,000 要价
259 South Carriage RoadLondon, Ontario, N6H0B5
成交
222(1+1)| 1100-1500 sqft
Listing information last updated on Thu Nov 06 2025 06:12:09 GMT-0500 (Eastern Standard Time)

Open Map
Log in to view more information
Go To LoginSummary
IDX12215083
Status成交
产权永久产权
PossessionFLEXIBLE
Brokered ByRE/MAX CENTRE CITY REALTY INC.
Type民宅 平房,镇屋,外接式
AgeConstructed Date: 2025
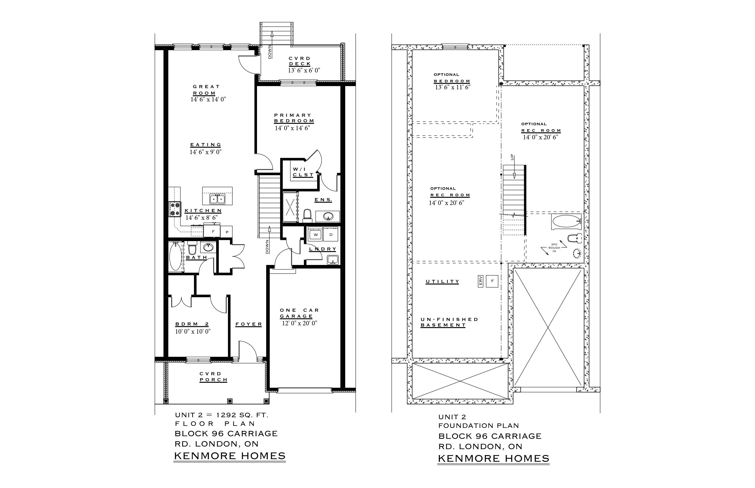
Lot Size29.7 * 112.11 Feet 29'7" x 13'0" x 29'10" x 125'3"
Land Size3329.67 ft²
RoomsBed:2,Kitchen:1,Bath:2
Parking1 (2) 外接式车库 +1
Detail
公寓楼
Architectural StyleBungalow
RoofAsphalt Shingle
Architectural StyleBungalow
Property FeaturesPublic Transit,Golf,Place Of Worship,School,School Bus Route
Rooms Above Grade6
RoofAsphalt Shingle
Heat SourceGas
Heat TypeForced Air
水Municipal
Laundry LevelMain Level
车库是
Sewer YNAYes
Water YNAYes
Telephone YNAAvailable
土地
Lot ShapeIrregular
Lot Size Range Acres< .50
车位
Parking FeaturesPrivate
水电气
Electric YNA是
周边
社区特点School Bus
Zoning DescriptionR4-4(1)
Other
Den Familyroom是
Interior FeaturesOther
Internet Entire Listing Display是
下水Sewer
Survey TypeNone
Under ContractHot Water Heater
Basement未装修
PoolNone
A/CCentral Air
TVAvailable
Exposure南
Remarks
* NO CONDO FEES * Welcome to 259 South Carriage Rd built by Kenmore Homes; builders of quality homes for 70 years. This one-storey freehold townhome offers a versatile and modern living experience. The home features 1292 square feet of above grade living space with 2 bedrooms, 2 bathrooms and a single-car garage. Your main level features an open concept kitchen, dining and living room with large windows at the back allowing plenty of natural daylight to shine off the engineered hardwood. The kitchen offers lots of storage, counter space and an island perfect for cooking with the family or entertaining guests. The 2 bedrooms are spacious with the primary bedroom providing you a walk in closet and ensuite bathroom with an additional full bathroom on the main floor. Separate main floor laundry room for convenience. Enjoy the covered deck to bbq or enjoy your morning coffee. Your lower level with the framing, insulation and a rough in bathroom as a standard finish allows the ease to complete the extra space. Create a home office, third bedroom, or a recreational area to suit your needs. This exceptional home not only provides customizable living spaces with premium finishes but is also situated in the desirable North West London area in Hyde Park. Local attractions and amenities include Western University, vibrant shopping centres, picturesque parks, sprawling golf courses, and much more. Ask about our other townhomes and single detached homes that are also available for purchase.
The listing data is provided under copyright by the Toronto Real Estate Board.
The listing data is deemed reliable but is not guaranteed accurate by the Toronto Real Estate Board nor RealMaster.
The following "Remarks" is automatically translated by Google Translate. Sellers,Listing agents, RealMaster, Canadian Real Estate Association and relevant Real Estate Boards do not provide any translation version and cannot guarantee the accuracy of the translation. In case of a discrepancy, the English original will prevail.
* 无管理费欢迎来到259 South Carriage Rd,由Kenmore公司建造,该公司拥有70年的高质量住宅建造经验。这栋一层的产权式联排别墅提供多功能且现代化的生活体验。住宅拥有1292平方英尺的地上居住空间,拥有2间卧室,2个卫生间和一个单车位车库。主楼层拥有开放式厨房、餐厅和起居室,背面有一个大窗户,让充足的自然光线照亮工程木地板。厨房提供充足的储物空间、台面空间和一个岛台,非常适合与家人一起烹饪或款待客人。2间卧室宽敞,主卧室提供步入式衣柜和套间浴室,主楼层还有一个额外的完整浴室。独立的洗衣房提供便利。享受遮盖的甲板,用于烧烤或享用早晨的咖啡。带有框架、保温层和粗略浴室的下层作为标准装修,可以轻松完成额外的空间。创建一个家庭办公室、第三间卧室或一个娱乐区,以满足您的需求。这座非凡的住宅不仅提供具有优质饰面的可定制生活空间,而且位于Hyde Park的理想的西北伦敦地区。当地的景点和便利设施包括Western University、充满活力的购物中心、风景如画的公园、广阔的高尔夫球场等等。询问我们还有哪些联排别墅和独立住宅可供购买。
Location
Province:
Ontario
City:
London
Community:
North I
Crossroad:
Finley Cres
Room
Room
Level
Length
Width
Area
卧室
主
10.01
10.01
100.13
浴室
主
0.00
0.00
0.00
厨房
主
14.50
8.50
123.22
Dining Room
主
14.50
8.99
130.36
Great Room
主
14.50
14.01
203.15
主卧
主
14.01
14.50
203.15
浴室
主
0.00
0.00
0.00















