CAD$429,900

CAD$429,900 要价
95 1247 HURON Street

London, Ontario, N5Y4X7

退市 · 退市 ·

33| 1173 sqft

Listing information last updated on Fri Jul 07 2023 08:14:58 GMT-0400 (Eastern Daylight Time)

Property Map Icon
Open Map

Log in to view more information

Go To Login

Summary

ID40426977
Status退市
产权Condominium
Brokered ByCENTURY 21 FIRST CANADIAN CORP., BROKERAGE
TypeResidential Townhouse,Attached
AgeConstructed Date: 1977
Square Footage1173 sqft
RoomsBed:3,Bath:3
Maint Fee403 / Monthly
Maint Fee Inclusions

Detail

公寓楼
浴室数量3
卧室数量3
地上卧室数量3
家用电器Dishwasher,Dryer,Refrigerator,Stove,Microwave Built-in
Architectural Style2 Level
地下室装修Finished
地下室类型Full (Finished)
建筑日期1977
风格Attached
空调Central air conditioning
外墙Aluminum siding,Brick
壁炉False
地基Poured Concrete
洗手间1
供暖方式Natural gas
供暖类型Forced air
使用面积1173.0000
楼层2
类型Row / Townhouse
供水Municipal water
土地
交通Highway access
面积false
设施Park,Place of Worship,Public Transit,Schools,Shopping
下水Municipal sewage system
水电气
有线Available
ElectricityAvailable
Natural GasAvailable
电话Available
周边
设施Park,Place of Worship,Public Transit,Schools,Shopping
社区特点Quiet Area,School Bus
Location DescriptionHIGHBURY/HURON. DRIVEWAY TO COMPLEX IS BETWEEN HIGHBURY AND MCNAY ON SOUTH SIDE OF HURON. 1247 HURON STREET IS TUCKED AWAY OFF HURON NEXT TO THE PLAZA. TURN LEFT AT THE CROSSWALK AT VESTA ROAD
Zoning DescriptionR5-3
Other
Communication TypeHigh Speed Internet
特点Park/reserve
Basement已装修,Full(已装修)
FireplaceFalse
HeatingForced air
Unit No.95

Remarks

Open Map

Location

Province:
Ontario
City:
London
Community:
East H

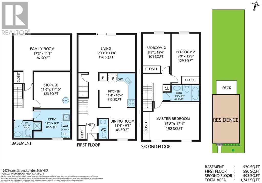
Room

Room
Level
Length
Width
Area
4pc Bathroom
Second
NaN
Measurements not available
卧室
Second
8.66
12.34
106.85
8'8'' x 12'4''
卧室
Second
8.76
15.68
137.38
8'9'' x 15'8''
主卧
Second
15.68
12.07
189.34
15'8'' x 12'1''
洗衣房
地下室
11.52
9.15
105.41
11'6'' x 9'2''
仓库
地下室
11.52
11.84
136.39
11'6'' x 11'10''
3pc Bathroom
地下室
8.50
5.35
45.44
8'6'' x 5'4''
家庭
地下室
17.26
11.09
191.37
17'3'' x 11'1''
2pc Bathroom
NaN
Measurements not available
客厅
17.91
11.68
209.22
17'11'' x 11'8''
餐厅
11.32
9.68
109.55
11'4'' x 9'8''
厨房
11.32
10.33
116.98
11'4'' x 10'4''