- British Columbia
- Kelowna
1504 Longley Cres
CAD$950,000
CAD$950,000 要价
1504 Longley CrescentKelowna, British Columbia, V1P1N1
退市 · 退市 ·
534| 2670 sqft
Listing information last updated on Tue Feb 27 2024 08:37:47 GMT-0500 (Eastern Standard Time)

Open Map
Log in to view more information
Go To LoginSummary
ID10302893
Status退市
产权Freehold
Brokered ByRE/MAX Kelowna
TypeResidential House,Detached
AgeConstructed Date: 2003
Land Size0.15 ac|under 1 acre
Square Footage2670 sqft
RoomsBed:5,Bath:3
Detail
公寓楼
浴室数量3
卧室数量5
家用电器Refrigerator,Dishwasher,Dryer,Range - Electric,Microwave,Washer
建筑日期2003
风格Detached
空调Central air conditioning
外墙Stone,Vinyl siding
壁炉燃料Gas
壁炉True
壁炉类型Unknown
火警Smoke Detector Only
地板Carpeted,Ceramic Tile
洗手间0
供暖类型Forced air,See remarks
屋顶材料Asphalt shingle
屋顶风格Unknown
使用面积2670 sqft
楼层3
类型House
供水Municipal water
土地
总面积0.15 ac|under 1 acre
面积0.15 ac|under 1 acre
面积false
围墙类型Fence
景观Underground sprinkler
下水Municipal sewage system
Size Irregular0.15
周边
风景Mountain view,View (panoramic)
Zoning TypeUnknown
Other
特点Central island,One Balcony
FireplaceTrue
HeatingForced air,See remarks
Remarks
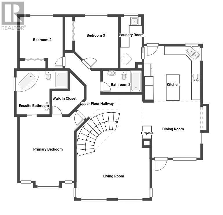
Don’t miss this 5 Bedroom home in a quiet, family friendly neighborhood just minutes from Black Mountain Elementary School and Golf Course, hiking trails and a park! Enter from the front door or the oversized garage to the tiled foyer, where you can head up the elegant curved staircase which takes you to the main level. The living room has large windows and a 3-sided gas fireplace that is shared with the dining room. Step onto the covered front deck with peaceful mountain views from the dining room. The beautiful, recently updated island kitchen boasts quartz countertops, white tile backsplash, newer stainless appliances and tons of cupboard space with built-in pantry! Enjoy easy access from the kitchen to the covered patio and private backyard - Perfect for those summer BBQ’s! You will find 3 bedrooms upstairs on the main level, including the Primary Bedroom featuring a Walk-in closet and 4-piece Ensuite Bathroom with walk-in shower, luxurious soaker tub and makeup vanity. Another full bathroom and convenient main floor laundry room with extra storage and laundry sink complete this level of the home. The ground level has French Doors which lead to the spacious rec room, and 2 huge bedrooms, a 3 piece bathroom featuring a tile walk-in shower and built in sauna, and mechanical room with lots of extra space for storage. Extra parking on the flat driveway. (id:22211)
The listing data above is provided under copyright by the Canada Real Estate Association.
The listing data is deemed reliable but is not guaranteed accurate by Canada Real Estate Association nor RealMaster.
MLS®, REALTOR® & associated logos are trademarks of The Canadian Real Estate Association.
Location
Province:
British Columbia
City:
Kelowna
Community:
Black Mountain
Room
Room
Level
Length
Width
Area
洗衣房
Second
4.99
10.60
52.85
5'0'' x 10'7''
4pc Bathroom
Second
9.25
4.82
44.62
9'3'' x 4'10''
卧室
Second
9.91
12.34
122.23
9'11'' x 12'4''
卧室
Second
9.84
9.91
97.52
9'10'' x 9'11''
其他
Second
9.25
7.09
65.57
9'3'' x 7'1''
4pc Ensuite bath
Second
11.91
9.68
115.27
11'11'' x 9'8''
主卧
Second
15.68
12.50
196.03
15'8'' x 12'6''
厨房
Second
12.76
10.50
133.99
12'9'' x 10'6''
餐厅
Second
12.76
10.99
140.27
12'9'' x 11'0''
客厅
Second
12.99
16.83
218.67
13'0'' x 16'10''
其他
主
19.85
26.74
530.74
19'10'' x 26'9''
3pc Bathroom
主
9.91
8.76
86.79
9'11'' x 8'9''
卧室
主
12.60
13.42
169.05
12'7'' x 13'5''
卧室
主
14.93
12.01
179.25
14'11'' x 12'0''
家庭
主
12.60
21.59
271.97
12'7'' x 21'7''










































