- British Columbia
- Campbell River
80 Dahl Rd
CAD$780,000
CAD$780,000 要价
80 Dahl RdCampbell River, British Columbia, V9W1T3
退市 · 退市 ·
634| 2700 sqft
Listing information last updated on Tue Sep 12 2023 08:57:14 GMT-0400 (Eastern Daylight Time)

Open Map
Log in to view more information
Go To LoginSummary
ID940489
Status退市
产权Freehold
Brokered ByRE/MAX Check Realty
TypeResidential House
AgeConstructed Date: 1967
Land Size14985 sqft
Square Footage2700 sqft
RoomsBed:6,Bath:3
Virtual Tour
Detail
公寓楼
浴室数量3
卧室数量6
家用电器See remarks
建筑日期1967
空调None
壁炉True
壁炉数量2
供暖方式Electric,Natural gas
供暖类型Forced air
使用面积2700 sqft
装修面积2700 sqft
类型House
土地
总面积14985 sqft
面积14985 sqft
交通Road access
面积false
Size Irregular14985
周边
风景Mountain view,Ocean view
Zoning DescriptionR1
Zoning TypeResidential
Other
特点Other,Marine Oriented
FireplaceTrue
HeatingForced air
Remarks
Oceanview Home is only a few steps from the ocean. New roof, windows, soffits, gutters, and siding installed. This home has 3 bedrooms up with a 2 piece ensuite in the master bedroom, wood fireplace in the living room and a large dining room off the kitchen. Downstairs is could be a non-conforming in-law suite or an BNB which is beautifully finished with a kitchen/dining room, living room with a gas fireplace, 3 more bedrooms and a full bathroom. There is a separate double garage/shop behind the house 33 x 23 all on a large lot, .344 of an acre. There is lots of room for additional and RV parking.and privacy Notice: The front oceanside yard is a separate lot and is not included in this offering for sale. This home is in a fabulous location, close to golf, amenities, and all levels of school. (id:22211)
The listing data above is provided under copyright by the Canada Real Estate Association.
The listing data is deemed reliable but is not guaranteed accurate by Canada Real Estate Association nor RealMaster.
MLS®, REALTOR® & associated logos are trademarks of The Canadian Real Estate Association.
Location
Province:
British Columbia
City:
Campbell River
Community:
Willow Point
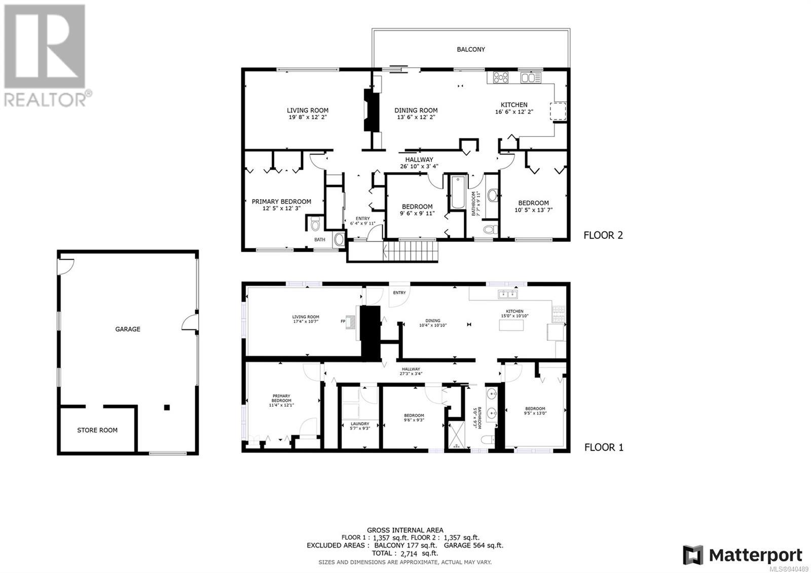
Room
Room
Level
Length
Width
Area
浴室
Lower
NaN
4-Piece
卧室
Lower
12.99
NaN
Measurements not available x 13 ft
卧室
Lower
9.51
9.25
88.03
9'6 x 9'3
主卧
Lower
11.32
12.07
136.66
11'4 x 12'1
厨房
Lower
14.99
NaN
15 ft x Measurements not available
餐厅
Lower
10.33
10.83
111.89
10'4 x 10'10
客厅
Lower
17.32
10.60
183.57
17'4 x 10'7
客厅
主
19.65
12.17
239.21
19'8 x 12'2
厨房
主
16.50
12.17
200.87
16'6 x 12'2
餐厅
主
13.48
12.17
164.13
13'6 x 12'2
Ensuite
主
NaN
2-Piece
主卧
主
12.40
12.24
151.76
12'5 x 12'3
卧室
主
10.50
13.58
142.60
10'6 x 13'7
卧室
主
9.51
9.91
94.27
9'6 x 9'11
浴室
主
NaN
4-Piece














































