- Alberta
- Calgary
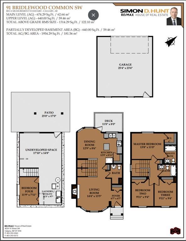
91 Bridlewood Common SW
CAD$400,000
CAD$400,000 要价
91 BRIDLEWOOD Common SWCalgary, Alberta, T2Y3R7
退市 · 退市 ·
333| 1314.29 sqft
Listing information last updated on Fri Dec 31 2021 15:05:15 GMT-0500 (Eastern Standard Time)

Open Map
Log in to view more information
Go To LoginSummary
IDA1168846
Status退市
产权Freehold
Brokered ByRE/MAX HOUSE OF REAL ESTATE
TypeResidential House,Detached
AgeConstructed Date: 1998
Land Size291 m2|0-4050 sqft
Square Footage1314.29 sqft
RoomsBed:3,Bath:3
Detail
公寓楼
浴室数量3
卧室数量3
地上卧室数量3
家用电器Refrigerator,Dishwasher,Stove,Microwave,Hood Fan,Window Coverings,Garage door opener
地下室装修Partially finished
地下室特点Walk out
地下室类型Unknown (Partially finished)
建筑日期1998
建材Wood frame
风格Detached
空调None
外墙Stone,Vinyl siding
壁炉True
壁炉数量1
地板Carpeted,Linoleum
地基Poured Concrete
洗手间1
供暖方式Natural gas
供暖类型Central heating,Forced air
使用面积1314.29 sqft
楼层2
装修面积1314.29 sqft
类型House
土地
总面积291 m2|0-4,050 sqft
面积291 m2|0-4,050 sqft
面积false
设施Park,Playground
围墙类型Fence
景观Lawn
Size Irregular291.00
Detached Garage
Oversize
周边
设施Park,Playground
Zoning DescriptionR-1N
Other
特点Back lane,PVC window,Closet Organizers,No Smoking Home,Level
BasementPartially finished,走出式,未知(部分装修)
FireplaceTrue
HeatingCentral heating,Forced air
Remarks
FRESHLY PAINTED + Ready for YOU - over 1314 sq ft of Developed Space, plus another 640 sq ft in the WALK-OUT BASEMENT, + you'll LOVE the SHOWSTOPPING Oversized Garage (25'4" x 23'4") to use for your SHOP, TOYS, or of course, PARKING all your VEHICLES inside (Prev owner had UP TO 4 VEHICLES pkd inside)! We begin w/CUTE Curb appeal incl ESTABLISHED tree + Stone detail, WELCOMING entrance, front Living Room w/GAS FIREPLACE, kitchen w/Island, corner pantry, MATCHING S.S. Appliances, + windows over the SINK, adjoining Dining area w/ROOM for everyone + access to the BACK DECK plus large South-facing windows for NATURAL LIGHT, + 2 pc Bath. Upstairs features 3 AMPLE Bedrooms incl the Master w/a Walk-In-Closet + 4 pc En-suite, plus 4 pc Main bath. The basement is PARTIALLY finished with the start to a 4th BEDROOM, + you can DEVELOP the rest as you need, or leave as STORAGE. The SOUTH FACING BACKYARD has both the UPPER deck, + lower stamped-concrete Patio. And OF COURSE, access to the MASSIVE Garage - which also has 220V wiring, + a rough-in to add a HEATER. A SCHOOL + Playground are 1.5 Blocks away, + Bridlewood is a FABULOUS established neighbourhood to CALL HOME! Don't wait, book a SHOWING TODAY! (id:22211)
The listing data above is provided under copyright by the Canada Real Estate Association.
The listing data is deemed reliable but is not guaranteed accurate by Canada Real Estate Association nor RealMaster.
MLS®, REALTOR® & associated logos are trademarks of The Canadian Real Estate Association.
Location
Province:
Alberta
City:
Calgary
Community:
Bridlewood
Room
Room
Level
Length
Width
Area
客厅
主
14.34
13.42
192.39
14.33 Ft x 13.42 Ft
厨房
主
12.76
8.92
113.89
12.75 Ft x 8.92 Ft
餐厅
主
12.76
8.50
108.45
12.75 Ft x 8.50 Ft
门廊
主
6.59
4.59
30.29
6.58 Ft x 4.58 Ft
2pc Bathroom
主
5.68
4.92
27.93
5.67 Ft x 4.92 Ft
主卧
Upper
13.68
10.99
150.37
13.67 Ft x 11.00 Ft
其他
Upper
4.99
4.82
24.05
5.00 Ft x 4.83 Ft
4pc Bathroom
Upper
7.58
4.99
37.79
7.58 Ft x 5.00 Ft
卧室
Upper
9.91
9.32
92.32
9.92 Ft x 9.33 Ft
卧室
Upper
9.91
9.32
92.32
9.92 Ft x 9.33 Ft
4pc Bathroom
Upper
7.68
4.99
38.29
7.67 Ft x 5.00 Ft
Book Viewing
Your feedback has been submitted.
Submission Failed! Please check your input and try again or contact us

















































