- British Columbia
- Burnaby
Graham Ave
CAD$x,xxx
CAD$2,500 要价
Garden Unit Graham Ave AvenueBurnaby, British Columbia, V3N1V9
已租
211| 800 sqft
Listing information last updated on Sat Jan 20 2024 12:21:45 GMT-0500 (Eastern Standard Time)

Open Map
Log in to view more information
Go To LoginSummary
IDR2839994
Status已租
Brokered ByTeam 3000 Realty Ltd.
TypeResidential House,Detached
Age
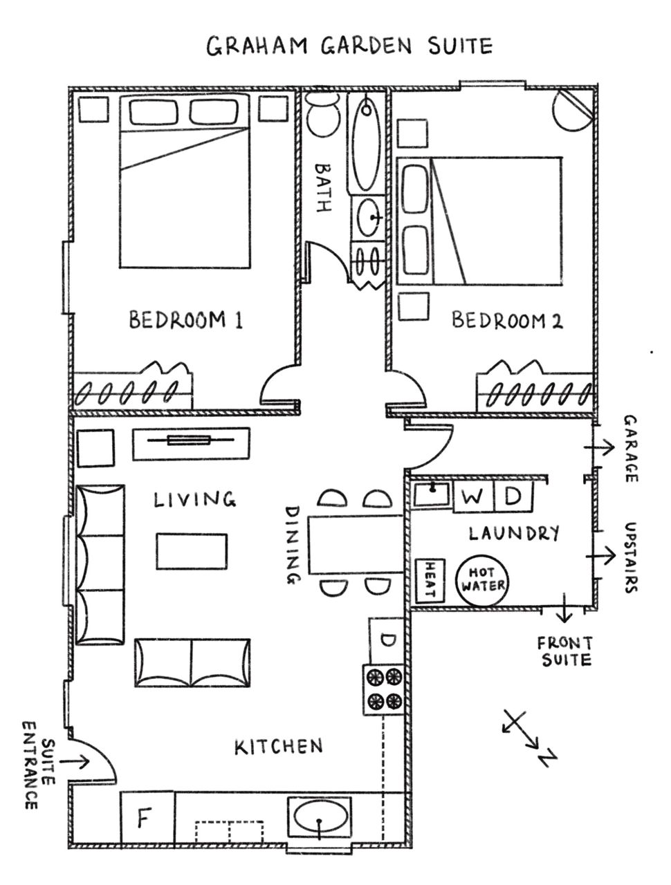
Square Footage800 sqft
RoomsBed:2,Bath:1
PetsNo,No Cats,No Dogs
Detail
公寓楼
Outdoor AreaBalcny(s) Patio(s) Dck(s),Fenced Yard
类型House/Single Family
Exterior FeaturesBalcony
家用电器Dishwasher,Microwave,Refrigerator,Cooktop
Building Area Total800
Patio And Porch FeaturesPatio,Deck
水电气
Features IncludedDishwasher,Refrigerator,Microwave,Shared Laundry,Stove
Other
Laundry FeaturesCommon Area
Internet Entire Listing DisplayYes
Broker ReciprocityYes
A/CNone
Unit No.Garden
Remarks
This upgraded 2-bed suite in quiet Edmonds, Burnaby, has a south-facing ground floor and fully equipped kitchen. Close to transit, restaurants, shops, and parks. Suitable for couples or working individuals (max 2 adults + 1 child). Key details: - 1 of 3 suites, shared laundry. - $2,500 unfurnished, $2,525 furnished. - Utilities shared at 35%, optional $30 internet. - Credit checks, references, tenant insurance required. - No pets/smoking. For short-term (under 6 months): $3,000/month, includes wifi/utilities. To view, provide: 1. Number of occupants, pets. 2. Rent payment ability. 3. Desired tenancy start date / length and other relevant info.
This representation is based in whole or in part on data generated by the Chilliwack District Real Estate Board, Fraser Valley Real Estate Board or Greater Vancouver REALTORS®, which assumes no responsibility for its accuracy.
Location
Province:
British Columbia
City:
Burnaby
Community:
East Burnaby
School Info
Private SchoolsK-7 Grades Only
Second Street Community
7502 2nd St, 伯纳比0.489 km
ElementaryMiddleEnglish
8-12 Grades Only
Cariboo Hill Secondary
8580 16th Ave, 伯纳比1.483 km
SecondaryFrench Immersion Program
























