- Ontario
- Burlington
1858 Waterdown Rd
SoldCAD$xxx,xxx
CAD$799,900 要价
1858 Waterdown RoadBurlington, Ontario, L7P5A1
成交
2210(2+8)| 1500-2000 sqft
Listing information last updated on Fri Oct 06 2023 09:32:27 GMT-0400 (Eastern Daylight Time)

Open Map
Log in to view more information
Go To LoginSummary
IDW7025054
Status成交
产权永久产权
PossessionImmediate
Brokered ByROYAL LEPAGE BURLOAK REAL ESTATE SERVICES
Type民宅 House,独立屋
Age 51-99
Lot Size132.08 * 155.33 Feet 59.09 x 155.33 x 132.42 x 155.34 x 72.99
Land Size20515.99 ft²
RoomsBed:2,Kitchen:1,Bath:2
Parking2 (10) 独栋车库 +8
Virtual Tour
Detail
公寓楼
浴室数量2
卧室数量2
地上卧室数量2
家用电器Dishwasher,Dryer,Refrigerator,Stove,Washer,Range,Window Coverings
地下室装修Partially finished
地下室类型Full (Partially finished)
建筑日期1947
风格Detached
外墙Stucco
壁炉False
地基Block
洗手间0
供暖方式Natural gas
供暖类型Forced air
建筑面积1622 sqft
使用面积1622 sqft
楼层1.5
类型House
供水Municipal water
Architectural Style1 1/2 Storey
Property FeaturesClear View,Greenbelt/Conservation,Public Transit,School,Terraced
Rooms Above Grade6
Heat SourceGas
Heat TypeForced Air
水Municipal
Laundry LevelLower Level
Other StructuresGarden Shed
土地
面积59.09 x 155.33 x 132.42 x 155.34 x 72.99|under 1/2 acre
面积false
设施Public Transit,Schools
下水Septic System
Size Irregular59.09 x 155.33 x 132.42 x 155.34 x 72.99
Lot Size Range Acres< .50
Detached Garage
Gravel
周边
设施公交,周边学校
Location DescriptionURBAN
风景View
Zoning DescriptionNEC Dev Control
Other
特点Conservation/green belt,Double width or more driveway,Crushed stone driveway,Carpet Free
Internet Entire Listing Display是
下水Septic
BasementFull,Partially Finished
PoolNone
FireplaceN
A/CNone
Heating压力热风
Furnished没有
Exposure西
Remarks
Idyllic countryside lifestyle moments from Aldershot Go & HWY 403. Enveloped by mature trees & perennials, this charming 1 1/2 Storey residence invites tranquility. Step into the expansive sunroom, drenched in natural light through skylights & picture windows, offering views of the terraced property. The kitchen incl granite counters, SS dishwasher & stove. The living room and dining area have rustic ceiling beams and warm wooden floors, seamlessly connecting through grand double doors to the sunroom. Upstairs are 2 bedrooms with wood floors and a convenient 3PC bathroom.The partially finished lower level boasts a family room, or flex space perfect for unwinding. Outside, find convenience of a driveway accommodating 8 vehicles, sprawling 50’ x 25’ greenhouse frame & 3 garden sheds catering to your storage needs. This property is your ticket to the perfect blend of rural serenity & comfort.
The listing data is provided under copyright by the Toronto Real Estate Board.
The listing data is deemed reliable but is not guaranteed accurate by the Toronto Real Estate Board nor RealMaster.
Location
Province:
Ontario
City:
Burlington
Community:
Grindstone 06.02.0020
Crossroad:
Mountain Brow Rd/Waterdown Rd
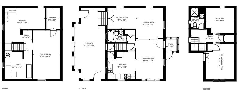
Room
Room
Level
Length
Width
Area
Living Room
主
10.89
16.14
175.82
Dining Room
主
10.89
12.14
132.22
Sitting
主
11.58
8.50
98.41
阳光房
主
11.58
28.81
333.61
主卧
Second
11.58
14.57
168.70
Bedroom 2
Second
11.48
10.14
116.41
家庭厅
Lower
10.89
19.82
215.85
其他
Lower
5.74
8.50
48.79
其他
Lower
16.24
13.81
224.31
School Info
Private SchoolsK-6 Grades Only
Glenview Public School
143 Townsend Ave, 伯灵顿3.455 km
ElementaryEnglish
K-6 Grades Only
Maplehurst Public School
481 Plains Rd E, 伯灵顿3.606 km
ElementaryEnglish
K-8 Grades Only
Holy Rosary (burlington) Elementary School
261 Plains Rd E, 伯灵顿3.252 km
ElementaryMiddleEnglish
9-12 Grades Only
Assumption Secondary School
3230 Woodward Ave, 伯灵顿8.206 km
SecondaryEnglish
2-6 Grades Only
Maplehurst Public School
481 Plains Rd E, 伯灵顿3.606 km
ElementaryFrench Immersion Program
9-12 Grades Only
Burlington Central High School
1433 Baldwin St, 伯灵顿6.053 km
SecondaryFrench Immersion Program
1-8 Grades Only
Sacred Heart Of Jesus Elementary School
2222 Country Club Dr, 伯灵顿8.568 km
ElementaryMiddleFrench Immersion Program
9-12 Grades Only
Notre Dame Secondary School
2333 Headon Forest Dr, 伯灵顿6.959 km
SecondaryFrench Immersion Program
Book Viewing
Your feedback has been submitted.
Submission Failed! Please check your input and try again or contact us







































