- Ontario
- Mississauga
6673 Snow Goose Lane
SoldCAD$x,xxx,xxx
CAD$1,199,000 要價
6673 Snow Goose LaneMississauga, Ontario, L5N5H8
成交
3+145(2+3)
Listing information last updated on Wed Jul 12 2023 22:19:03 GMT-0400 (Eastern Daylight Time)

Open Map
Log in to view more information
Go To LoginSummary
IDW6640884
Status成交
產權永久產權
PossessionFlexible
Brokered ByROYAL LEPAGE SIGNATURE REALTY
Type民宅 House,獨立屋
Age 31-50
Lot Size70.54 * 95.26 Feet 95.26Ft X 70.64Ft X 95.26Ft X 70.64Ft
Land Size6719.64 ft²
RoomsBed:3+1,Kitchen:1,Bath:4
Parking2 (5) 外接式車庫 +3
Virtual Tour
Detail
公寓樓
浴室數量4
臥室數量4
地上臥室數量3
地下臥室數量1
地下室裝修Finished
地下室類型N/A (Finished)
風格Detached
空調Central air conditioning
外牆Brick
壁爐True
供暖方式Natural gas
供暖類型Forced air
使用面積
樓層2
類型House
Architectural Style2-Storey
Fireplace是
供暖是
Property FeaturesCul de Sac/Dead End,Library,Park,Place Of Worship,Public Transit,School
Rooms Above Grade9
Rooms Total10
Heat SourceGas
Heat TypeForced Air
水Municipal
Laundry LevelMain Level
車庫是
土地
面積70.54 x 95.26 FT ; 95.26Ft X 70.64Ft X 95.26Ft X 70.64Ft
面積false
設施Park,Place of Worship,Public Transit,Schools
Size Irregular70.54 x 95.26 FT ; 95.26Ft X 70.64Ft X 95.26Ft X 70.64Ft
Lot FeaturesIrregular Lot
Lot Dimensions SourceOther
車位
Parking FeaturesPrivate Double
周邊
設施公園,參拜地,公交,周邊學校
Other
特點Cul-de-sac
Den Familyroom是
Internet Entire Listing Display是
下水Sewer
中央吸塵是
Basement已裝修
PoolNone
FireplaceY
A/CCentral Air
Heating壓力熱風
Exposure東
Remarks
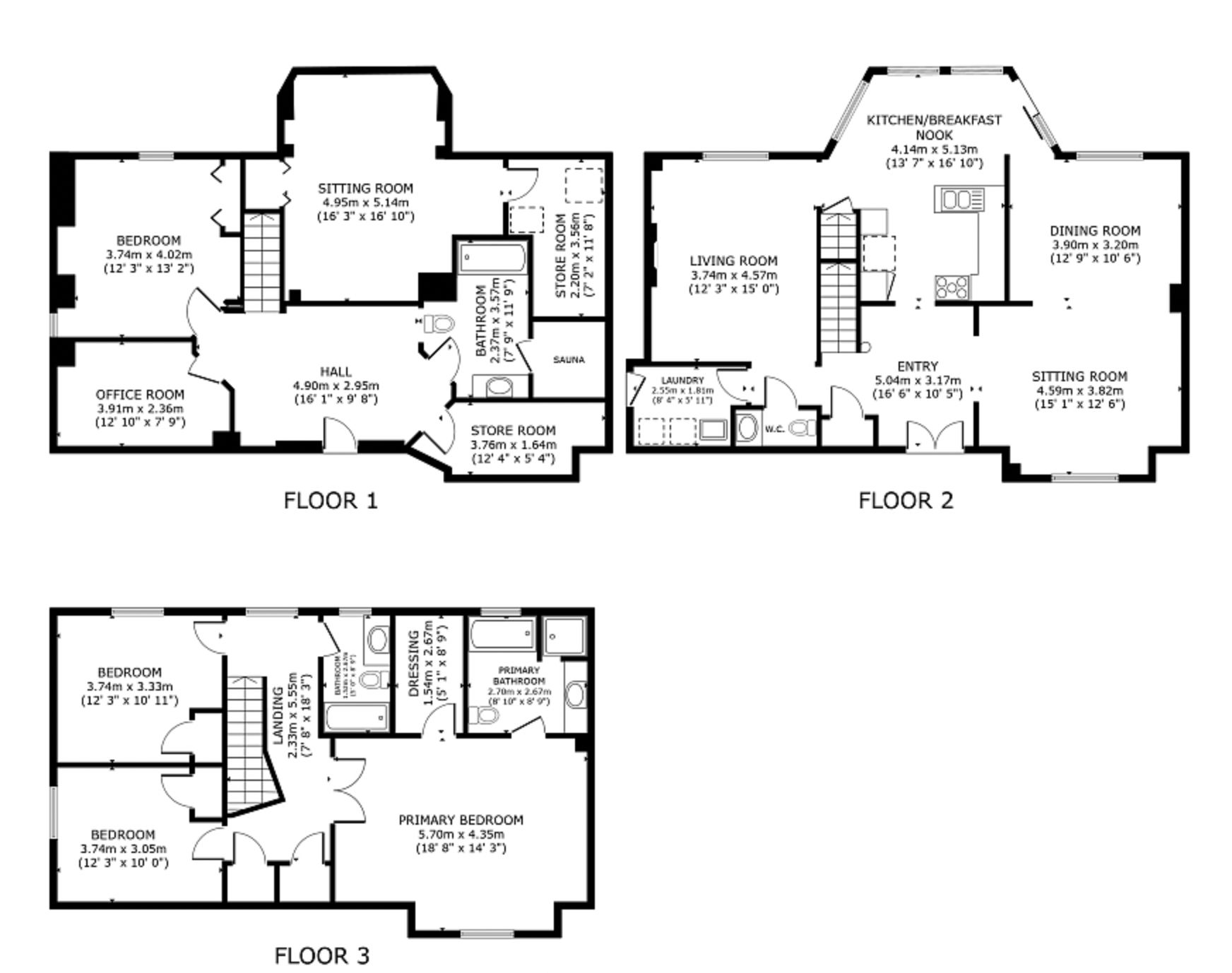
Welcome to your dream home in the highly sought-after Trelawny area! This stunning 3+1 bed, 3.5 bath home has been recently renovated and meticulously maintained to perfection. This elegant features large windows, custom blinds, crown moulding, hardwood floors throughout and new lighting fixtures, bringing sophistication and luxury to every corner. Amazing layout with close to 3000sf of very functional living space. Professionally finished basement is perfect for home theater or a man cave. It also has a large 4th bedroom, office and spa-like washroom, including a jacuzzi tub and dry sauna. Enjoy the immaculately landscaped yard and amazing curb appeal, along with natural gas line perfect for outdoor entertainment. 2nd floor features 2 good size Br's along with an oversized master Br featuring a W/I closet and a 4pc ensuite. Renovated kitchen, freshly painted deck, and main floor laundry. Located in one of the most desirable areas, this home is sure to exceed your expectations
The listing data is provided under copyright by the Toronto Real Estate Board.
The listing data is deemed reliable but is not guaranteed accurate by the Toronto Real Estate Board nor RealMaster.
Location
Province:
Ontario
City:
Mississauga
Community:
Lisgar 05.03.0010
Crossroad:
Trelawny-Mockingbird-Snowgoose
Room
Room
Level
Length
Width
Area
客廳
主
14.99
12.27
183.97
Hardwood Floor Picture Window Fireplace
餐廳
主
12.80
10.50
134.33
Hardwood Floor Picture Window
廚房
主
13.58
16.83
228.61
Porcelain Floor Quartz Counter Eat-In Kitchen
家庭
主
15.06
12.53
188.73
Hardwood Floor Picture Window
門廊
主
16.54
10.40
171.97
Porcelain Floor Walk Through Open Stairs
主臥
2nd
18.70
14.27
266.89
Hardwood Floor W/I Closet 4 Pc Ensuite
第二臥房
2nd
11.25
10.60
119.25
Hardwood Floor
第三臥房
2nd
11.25
9.74
109.65
Hardwood Floor
Rec
地下室
26.54
16.24
431.05
Laminate Built-In Speakers
第四臥房
地下室
12.27
13.19
161.83
Laminate Window Double Closet
辦公室
地下室
12.83
7.74
99.33
Laminate
洗衣房
主
8.37
5.94
49.68
Ceramic Floor Side Door Laundry Sink
School Info
Private SchoolsK-5 Grades Only
Trelawny Public School
3420 Trelawny Cir, 密西沙加0.395 km
ElementaryEnglish
6-8 Grades Only
Lisgar Middle School
6755 Lisgar Dr, 密西沙加0.762 km
MiddleEnglish
9-12 Grades Only
Meadowvale Secondary School
6700 Edenwood Dr, 密西沙加0.734 km
SecondaryEnglish
K-8 Grades Only
St. Edith Stein Elementary School
6234 Osprey Blvd, 密西沙加1.253 km
ElementaryMiddleEnglish
9-12 Grades Only
Our Lady Of Mt. Carmel Secondary School
3700 Trelawny Cir, 密西沙加0.226 km
SecondaryEnglish
1-6 Grades Only
Plum Tree Park Public School
6855 10th Line W, 密西沙加0.658 km
ElementaryFrench Immersion Program
7-8 Grades Only
Edenwood Middle School
6770 Edenwood Dr, 密西沙加0.467 km
MiddleFrench Immersion Program
9-12 Grades Only
Streetsville Secondary School
72 Joymar Dr, 密西沙加4.061 km
SecondaryFrench Immersion Program
7-8 Grades Only
Green Glade Senior Public School
1550 Green Glade, 密西沙加14.45 km
MiddleExtended French
9-12 Grades Only
Lorne Park Secondary School
1324 Lorne Park Rd, 密西沙加12.676 km
SecondaryExtended French
9-12 Grades Only
St. Francis Xavier Secondary School
50 Bristol Rd W, 密西沙加9.441 km
Secondary
Book Viewing
Your feedback has been submitted.
Submission Failed! Please check your input and try again or contact us







































