- Alberta
- Calgary
1928 50 Ave SW
CAD$1,450,000
CAD$1,450,000 要價
1928 50 Avenue SWCalgary, Alberta, T2T2W2
退市 · 退市 ·
3+163| 2730.28 sqft
Listing information last updated on Sat Nov 04 2023 01:20:02 GMT-0400 (Eastern Daylight Time)

Open Map
Log in to view more information
Go To LoginSummary
IDA2044850
Status退市
產權Freehold
Brokered ByRE/MAX HOUSE OF REAL ESTATE
TypeResidential House,Detached
Age New building
Land Size322.32 m2|0-4050 sqft
Square Footage2730.28 sqft
RoomsBed:3+1,Bath:6
Virtual Tour
Detail
公寓樓
浴室數量6
臥室數量4
地上臥室數量3
地下臥室數量1
房齡New building
家用電器Washer,Refrigerator,Cooktop - Gas,Dishwasher,Oven,Dryer,Microwave,Oven - Built-In,See remarks,Garage door opener,Water Heater - Tankless
地下室裝修Finished
地下室類型Full (Finished)
風格Detached
空調None
外牆Brick,Composite Siding,Stucco
壁爐True
壁爐數量1
地板Carpeted,Hardwood,Tile
地基Poured Concrete
洗手間2
供暖類型Forced air
使用面積2730.28 sqft
樓層3
裝修面積2730.28 sqft
類型House
土地
總面積322.32 m2|0-4,050 sqft
面積322.32 m2|0-4,050 sqft
面積false
設施Golf Course,Park,Playground,Recreation Nearby
圍牆類型Not fenced
Size Irregular322.32
周邊
設施Golf Course,Park,Playground,Recreation Nearby
社區特點Golf Course Development
Zoning DescriptionR-C2
Other
特點See remarks,Back lane,Closet Organizers,No Animal Home,No Smoking Home
Basement已裝修,Full(已裝修)
FireplaceTrue
HeatingForced air
Remarks
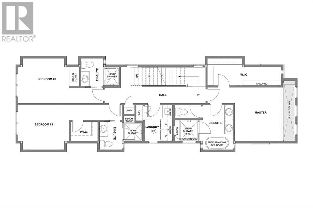
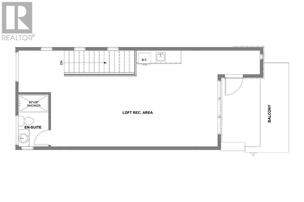
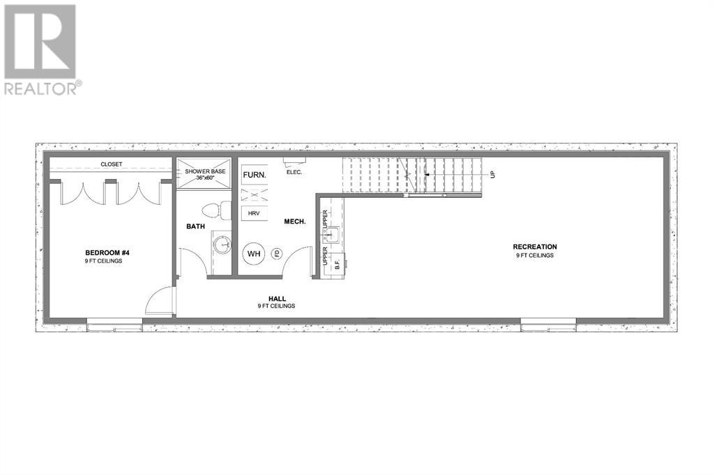
Luxurious 3-STOREY Brownstone coming to ALTADORE at the end of October 2023! Located across from the Glenmore Athletic Fields on 50th Ave in Altadore, your new home is on a quiet section of the street steps away from River Park Off-Leash, the Glenmore Aquatic Centre, the Glenmore Reservoir, and Lakeview Golf Course. Commuting to the Beltline and Downtown is incredibly convenient, too, with easy access to 14th Street, Crowchild, and Glenmore. When it’s time to come home and relax or entertain, 3,530 sq ft of high-end developed living space awaits! Highlights include a THIRD FLOOR LOFT w/ wet bar and South-facing balcony, a TRIPLE CAR GARAGE w/ high ceilings & room for a car lift, German-made Kulu windows throughout, and a dual HIDDEN PANTRY and BAR AREA w/ built-in storage solutions. The main floor enjoys an open-concept kitchen/living/dining room with 10-ft ceilings and engineered oak hardwood floors. The kitchen is a modern masterpiece, with quartz counters, custom-painted flat-panel cabinetry, and a stone-like tile backsplash. The oversized island is ideal for daily life and entertaining, with flush bar seating and a beverage fridge. The premium stainless steel Jenn Air appliance package includes a side-by-side fridge, a 6-burner gas cooktop with a built-in hood fan, a built-in wall oven and microwave, and a dishwasher. The kitchen space doesn’t end there, however! An extra-large pantry with a private bar area is hidden behind a board and batten door! The spacious living room centres on an inset gas fireplace with stone detailing and custom built-in millwork, with direct access to the backyard through sliding glass doors. Completing the main floor is a tiled mudroom and a luxurious powder room with a quartz counter and linear mirror. Three bedrooms and the laundry room are located on the second floor, including the primary luxury suite and two junior master bedrooms. The primary suite has exquisite ceiling-height windows overlooking the park, a high ceiling cuto ut, and an extra-large walk-in closet with built-in storage. The spa-inspired ensuite has a freestanding soaker tub, a fully equipped walk-in steam shower with full-height tile surround and bench, a double vanity, and a private water closet. The two junior suites feature ensuites with walk-in showers with full-height tile surround and large vanities. The spacious laundry room features a tiled floor, laundry sink, folding counter, upper cabinetry, and a large linen closet. Up another level, you’re in the bright and spacious third-floor loft with an open recreation area, sliding glass patio doors bringing you onto a large SOUTH-facing balcony, a full wet bar, & a full bathroom with a stand-up shower! And the living space continues into the fully developed basement, too, with another expansive rec room, a wet bar, a fourth bedroom with dual closets, and a full bathroom. Outside, a patio greets you in the front, and in the back of an alley, you’ll find a rare three-car garage with a 13-ft ceiling. (id:22211)
The listing data above is provided under copyright by the Canada Real Estate Association.
The listing data is deemed reliable but is not guaranteed accurate by Canada Real Estate Association nor RealMaster.
MLS®, REALTOR® & associated logos are trademarks of The Canadian Real Estate Association.
Location
Province:
Alberta
City:
Calgary
Community:
Altadore
Room
Room
Level
Length
Width
Area
主臥
Second
12.99
11.42
148.34
13.00 Ft x 11.42 Ft
臥室
Second
10.99
9.68
106.37
11.00 Ft x 9.67 Ft
臥室
Second
10.99
9.68
106.37
11.00 Ft x 9.67 Ft
洗衣房
Second
7.74
5.91
45.73
7.75 Ft x 5.92 Ft
3pc Bathroom
Second
NaN
Measurements not available
3pc Bathroom
Second
NaN
Measurements not available
5pc Bathroom
Second
NaN
Measurements not available
複式
Third
33.01
16.01
528.43
33.00 Ft x 16.00 Ft
2pc Bathroom
Third
NaN
Measurements not available
臥室
地下室
14.50
10.99
159.38
14.50 Ft x 11.00 Ft
Recreational, Games
地下室
30.84
14.50
447.22
30.83 Ft x 14.50 Ft
3pc Bathroom
地下室
NaN
Measurements not available
客廳
主
16.99
10.93
185.67
17.00 Ft x 10.92 Ft
廚房
主
21.33
11.32
241.38
21.33 Ft x 11.33 Ft
餐廳
主
14.99
12.01
180.04
15.00 Ft x 12.00 Ft
2pc Bathroom
主
NaN
Measurements not available
Book Viewing
Your feedback has been submitted.
Submission Failed! Please check your input and try again or contact us


























