- Ontario
- Warwick
383 West St
SoldCAD$xxx,xxx
CAD$249,900 Asking price
383 West StreetWarwick, Ontario, N0M2S0
Sold
323(2+2)| 700-1100 sqft
Listing information last updated on Thu Nov 06 2025 10:11:12 GMT-0500 (Eastern Standard Time)

Open Map
Log in to view more information
Go To LoginSummary
IDX12240747
StatusSold
Ownership TypeFreehold
Possession20 days negotiable
Brokered ByRE/MAX ADVANTAGE REALTY LTD.
TypeResidential Split,House,Detached
Age
Lot Size66 * 132 Feet
Land Size8712 ft²
Square Footage700-1100 sqft
RoomsBed:3,Kitchen:1,Bath:2
Parking2 (3) Attached +2
Detail
Building
Architectural StyleSidesplit 3
Fireplace FeaturesNatural Gas,Fireplace Insert
FireplaceYes
RoofAsphalt Shingle
Architectural StyleSidesplit 3
FireplaceYes
Rooms Above Grade7
Fireplace FeaturesNatural Gas,Fireplace Insert
RoofAsphalt Shingle
Exterior FeaturesPatio
Heat SourceGas
Heat TypeForced Air
WaterMunicipal
GarageYes
Land
Lot Size Range Acres< .50
Parking
Parking FeaturesPrivate Double
Surrounding
Exterior FeaturesPatio
Zoning DescriptionR1 1
Other
Interior FeaturesNone
Internet Entire Listing DisplayYes
SewerSewer
Survey TypeUnknown
BasementPartial Basement,Finished
PoolNone
A/CCentral Air
ExposureE
Remarks
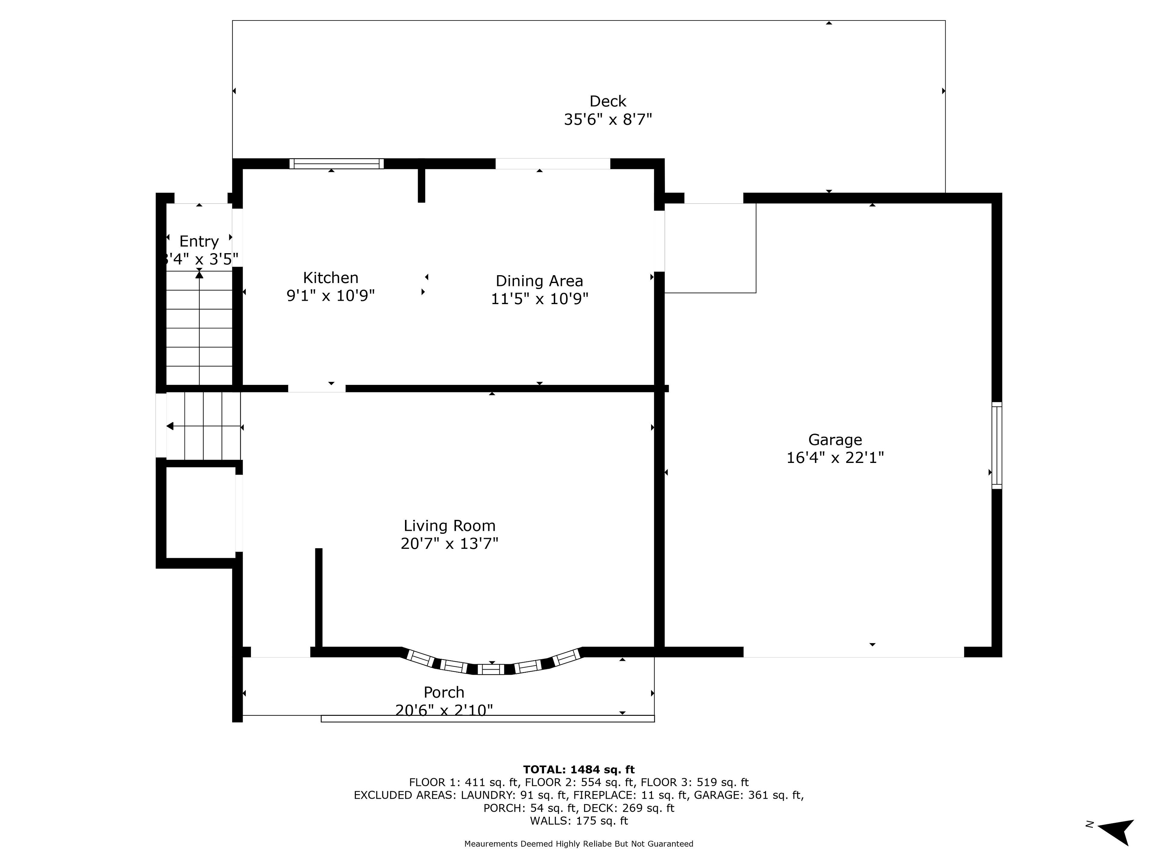
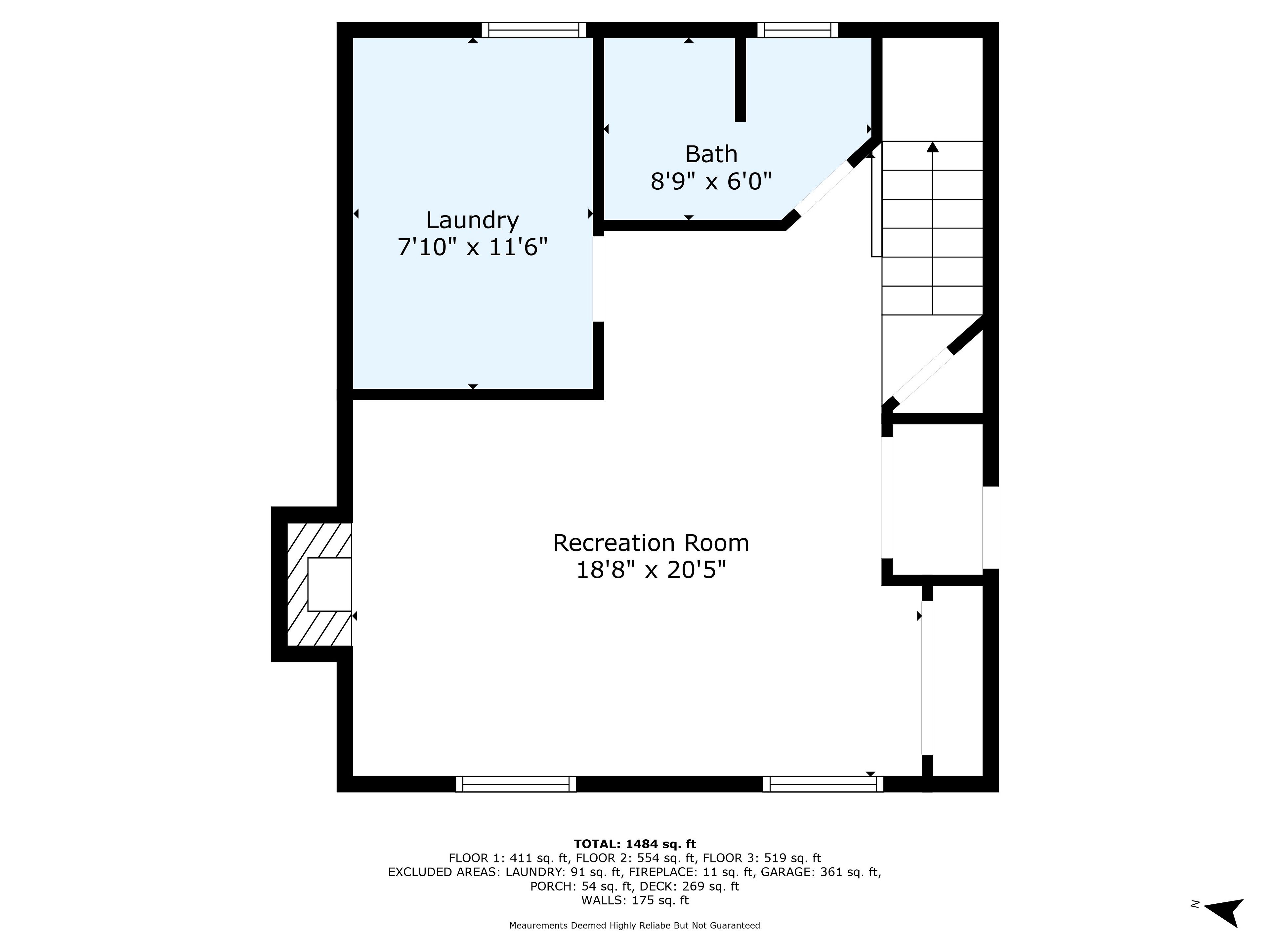
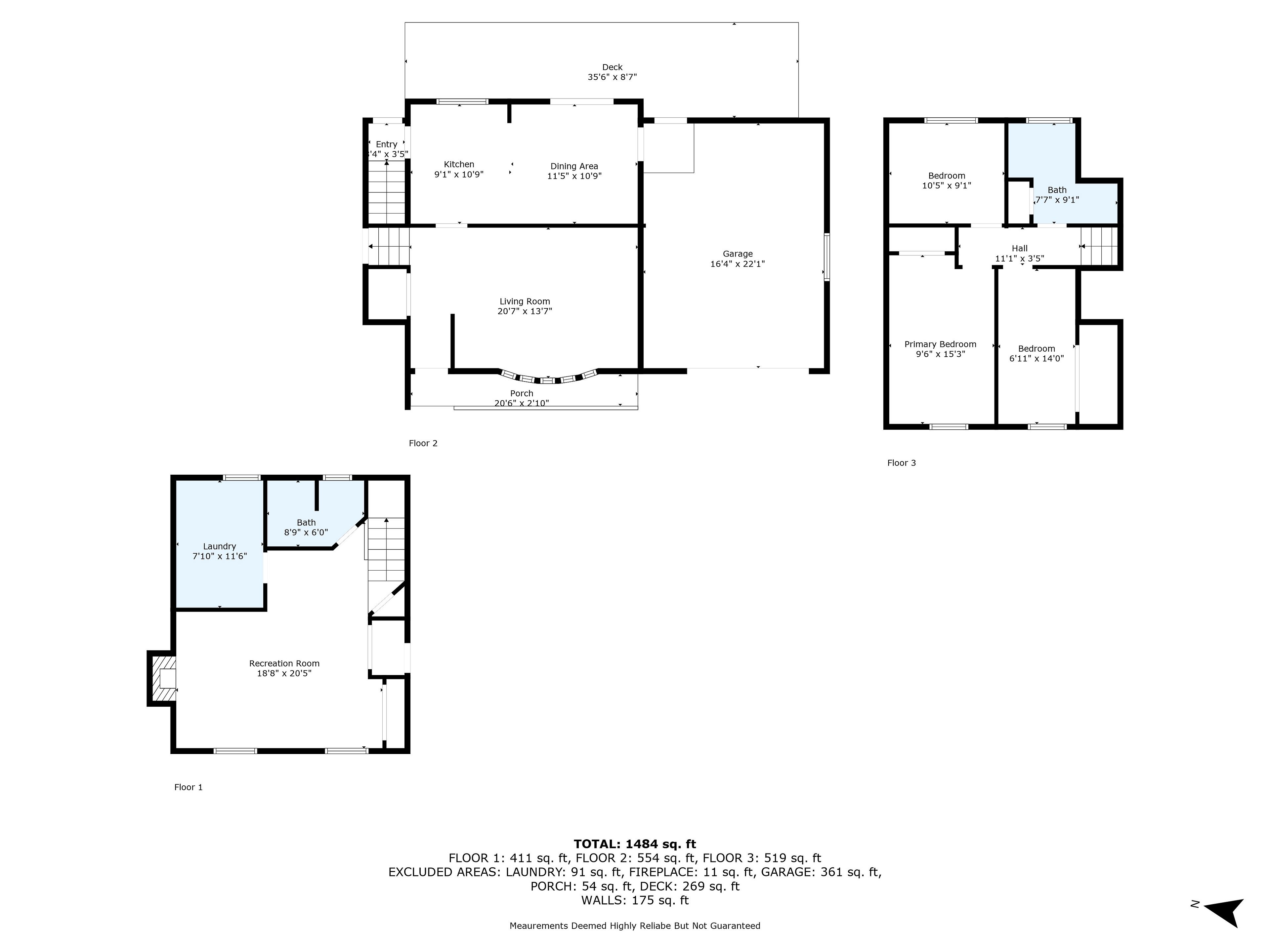
Bring your vision and transform this fixer-upper into your dream home. Large 66 x 132 treed lot with gazebo, cement pad, storage shed, front covered porch and lots of parking. 3 bedroom, 2 bath 3 level side split with attached garage. French doors to small patio area in back yard great for bbq's. Plenty of space in the kitchen with eat in dining area to remodel and bring it back to life. 3 good size bedrooms on upper level and 3 pc bath. Lower level features laundry area, 200 amp service, 3 pc bath and good size Family Rec room with gas fireplace. Located in a great town with schools, arenas, parks, and shopping close by. Great opportunity to bring your creative touch and make this into a great family home.
The listing data is provided under copyright by the Toronto Real Estate Board.
The listing data is deemed reliable but is not guaranteed accurate by the Toronto Real Estate Board nor RealMaster.
The following "Remarks" is automatically translated by Google Translate. Sellers,Listing agents, RealMaster, Canadian Real Estate Association and relevant Real Estate Boards do not provide any translation version and cannot guarantee the accuracy of the translation. In case of a discrepancy, the English original will prevail.
发挥您的创意,将这处待修缮的房产改造成梦想之家。占地66 x 132英尺的宽阔林荫地块配有凉亭、水泥平台、储物棚、带顶前廊及充足停车位。三卧两卫三层错层式住宅附带连体车库,后院法式门通向小露台区域,非常适合烧烤聚会。厨房与用餐区空间充裕,待您重塑新生。上层设三间宽敞卧室及三件套浴室,下层配备洗衣区、200安培电表、三件套浴室以及带燃气壁炉的宽敞家庭娱乐室。物业坐落于优质小镇,周边学校、体育馆、公园及购物设施一应俱全。这是施展创意打造理想家居的绝佳机会。
Location
Province:
Ontario
City:
Warwick
Community:
Watford
Crossroad:
RACHEL STREET
Room
Room
Level
Length
Width
Area
Bedroom 3
Second
14.17
7.78
110.21
Family Room
Lower
17.78
11.84
210.61
Laundry
Lower
12.01
7.55
90.61
Bathroom
Second
9.38
6.36
59.72
Bathroom
Lower
8.04
5.45
43.78
Living Room
Main
11.58
16.60
192.26
Kitchen
Main
10.93
9.09
99.29
Dining Room
Main
11.52
10.89
125.43
Bedroom
Second
10.50
9.09
95.41
Bedroom 2
Second
15.16
9.88
149.69
















































