- Alberta
- Calgary
2222 12 St SW
CAD$2,175,000
CAD$2,175,000 호가
2222 12 Street SWCalgary, Alberta, T2T3N4
Delisted · Delisted ·
322| 2251 sqft
Listing information last updated on Wed May 15 2024 08:34:50 GMT-0400 (Eastern Daylight Time)

Open Map
Log in to view more information
Go To LoginSummary
IDA2055376
StatusDelisted
소유권Freehold
Brokered ByRoyal LePage Benchmark
TypeResidential House,Detached
AgeConstructed Date: 1932
Land Size15725 sqft|10890 - 21799 sqft (1/4 - 1/2 ac)
Square Footage2251 sqft
RoomsBed:3,Bath:2
Virtual Tour
Detail
Building
화장실 수2
침실수3
지상의 침실 수3
가전 제품Refrigerator,Dishwasher,Stove,Microwave,Freezer,Hood Fan,Window Coverings,Garage door opener,Washer & Dryer
지하 개발Unfinished
지하실 유형Full (Unfinished)
건설 날짜1932
건축 자재Wood frame
스타일Detached
에어컨None
외벽Stucco
난로True
난로수량1
바닥Ceramic Tile,Hardwood
기초 유형Poured Concrete
화장실0
난방 유형Forced air
내부 크기2251 sqft
층1
총 완성 면적2251 sqft
유형House
토지
충 면적15725 sqft|10,890 - 21,799 sqft (1/4 - 1/2 ac)
면적15725 sqft|10,890 - 21,799 sqft (1/4 - 1/2 ac)
토지false
시설Park,Playground,Recreation Nearby
울타리유형Not fenced
풍경Fruit trees
Size Irregular15725.00
주변
시설Park,Playground,Recreation Nearby
보기 유형View
Zoning DescriptionDC (pre 1P2007)
Other
특성Treed,See remarks
Basement미완료,전체(미완료)
FireplaceTrue
HeatingForced air
Remarks
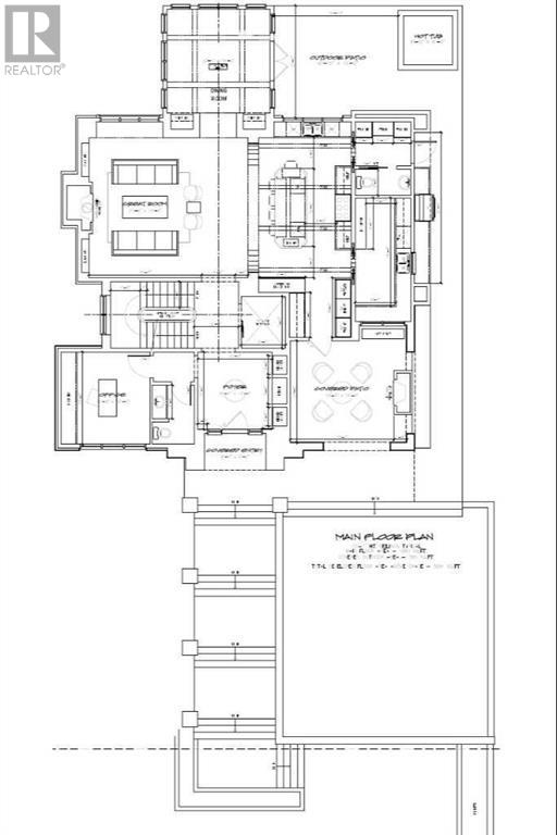
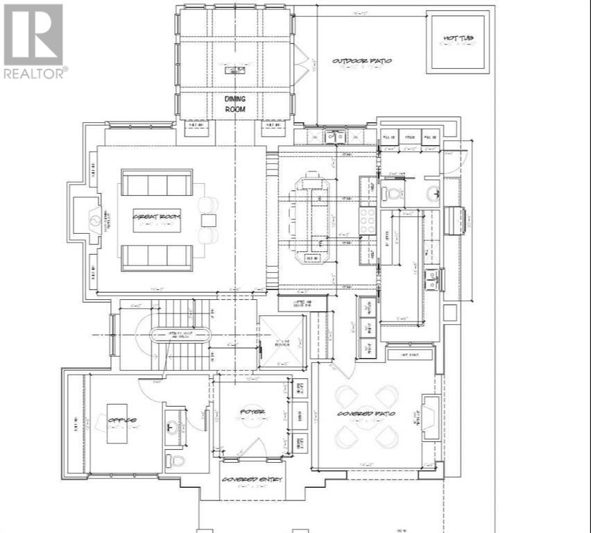
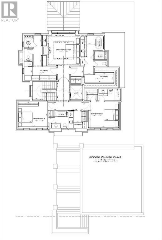
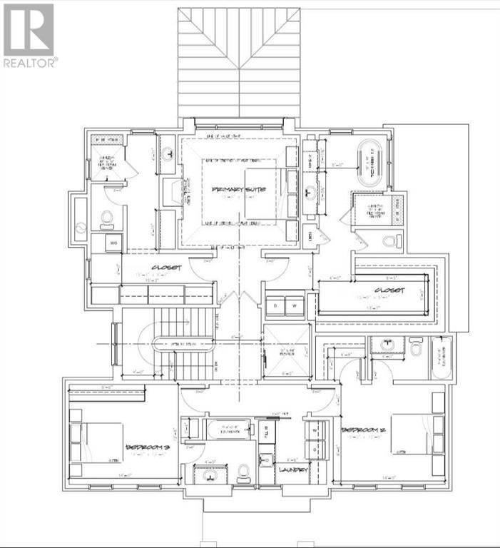
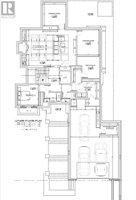
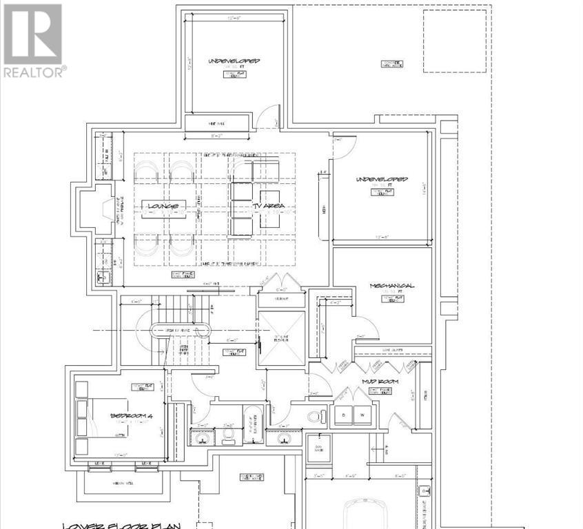
Presenting a rare and very large prime lot in prestigious Upper Mount Royal. This elevated .36 acre (15,725 sqft) rectangular lot (85ft X185ft) is located in the heart of the neighbourhood and affords a spectacular and very secluded setting. Ringed with large mature trees, and with sweeping northwest and downtown views from developed elevations of 25 feet and higher, this lot represents a wonderful opportunity to build an estate home. Complete building plans are available for an Architectural Digest worthy residence designed by Dean Thomas with interiors by Nam Dang-Mitchell, House and Homes 2018 Designer of the Year, and proposed build by Rockwood Homes. Or, build to your own specifications and design. Either way, the future owner will save valuable time and money leveraging off the existing plans and permits in place. The existing home is offered “as is where is” and no value has been ascribed for the existing home in the listing price of the property. Elevated and set back from the 85-foot frontage of the lot, the building site is flat and spans the width of the lot, accommodating a wide variance of architectural design. Steeped in history and among the most coveted settings for a large lot in Mount Royal, this offering represents a unique and special opportunity to build your dream home. Ideally located minutes from downtown Calgary, and walking distance to nearby schools and shopping, The Glencoe Club, and all the amenities of 17 Avenue and 4th Street. Upper Mount Royal represents prestigious inner city living at its finest. Please view the drone footage video to appreciate the features of this fantastic building/development opportunity in the heart of the city. (id:22211)
The listing data above is provided under copyright by the Canada Real Estate Association.
The listing data is deemed reliable but is not guaranteed accurate by Canada Real Estate Association nor RealMaster.
MLS®, REALTOR® & associated logos are trademarks of The Canadian Real Estate Association.
Location
Province:
Alberta
City:
Calgary
Community:
Upper Mount Royal
Room
Room
Level
Length
Width
Area
침실
Second
24.25
12.99
315.00
24.25 Ft x 13.00 Ft
주방
메인
15.68
12.34
193.46
15.67 Ft x 12.33 Ft
Primary Bedroom
메인
20.01
13.68
273.80
20.00 Ft x 13.67 Ft
식사
메인
12.01
11.84
142.22
12.00 Ft x 11.83 Ft
기타
메인
11.25
11.15
125.53
11.25 Ft x 11.17 Ft
침실
메인
13.48
12.76
172.09
13.50 Ft x 12.75 Ft
현관
메인
7.68
5.25
40.30
7.67 Ft x 5.25 Ft
4pc Bathroom
메인
7.51
6.00
45.11
7.50 Ft x 6.00 Ft
4pc Bathroom
메인
NaN
Measurements not available
거실
메인
20.67
16.99
351.27
20.67 Ft x 17.00 Ft
세탁소
메인
10.43
6.99
72.91
10.42 Ft x 7.00 Ft
기타
메인
21.00
12.01
252.13
21.00 Ft x 12.00 Ft
Book Viewing
Your feedback has been submitted.
Submission Failed! Please check your input and try again or contact us






















