- Ontario
- Hamilton
63 Harnesworth Cres
SoldCAD$xxx,xxx
CAD$799,999 Asking price
63 Harnesworth CrescentHamilton, Ontario, L8B0J1
Sold
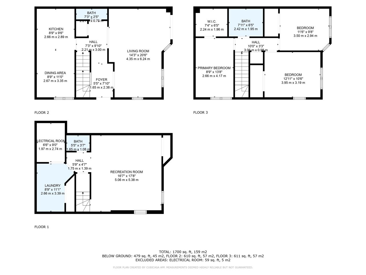
332(0+2)| 1100-1500 sqft
Listing information last updated on Mon Apr 21 2025 16:02:17 GMT-0400 (Eastern Daylight Time)

Open Map
Log in to view more information
Go To LoginSummary
IDX12047686
StatusSold
Ownership TypeFreehold
Possessionflexible
Brokered ByKELLER WILLIAMS EDGE REALTY
TypeResidential Townhouse,Attached
Age 16-30
Lot Size16.24 * 97.61 Feet
Land Size2804.13 ft²
Square Footage1100-1500 sqft
RoomsBed:3,Kitchen:1,Bath:3
Virtual Tour
Detail
Building
Architectural Style2-Storey
FireplaceYes
RoofAsphalt Shingle
Architectural Style2-Storey
FireplaceYes
Property FeaturesLibrary,Park,Place Of Worship,Rec./Commun.Centre,School
Rooms Above Grade10
RoofAsphalt Shingle
Heat SourceGas
Heat TypeForced Air
WaterMunicipal
Laundry LevelLower Level
Other StructuresGarden Shed
Parking
Parking FeaturesPrivate
Surrounding
Community FeaturesCommunity Centre
Zoning DescriptionR62
Other
Interior FeaturesSump Pump,Other
Internet Entire Listing DisplayYes
SewerSewer
Sign On PropertyYes
Survey TypeUnknown
Under ContractAir Conditioner,Hot Water Heater
BasementFull,Finished
PoolNone
A/CCentral Air
ExposureW
Remarks
Welcome to this charming, well-maintained freehold townhouse in the sought after Waterdown community! This inviting home offers 3 generous bedrooms with a walk in closet in the primary bedroom, one 4-pc bathroom with ensuite privilege, and two updated 2-pc bathrooms conveniently located on the main floor and in the basement. The main living area boasts lots of natural light and a walk out to the extra-large yard which is a rare find for this type of property. The yard provides ample space for outdoor activities, gardening, or simply relaxing in a private setting where you can enjoy quiet moments with family and friends. Located in a desirable neighbourhood; close to parks, schools, shopping and so much more. This townhouse is a perfect blend of style and functionality, it is perfect for family living, a real must see! Dont miss the opportunity to make this move-in ready property your new home!
The listing data is provided under copyright by the Toronto Real Estate Board.
The listing data is deemed reliable but is not guaranteed accurate by the Toronto Real Estate Board nor RealMaster.
The following "Remarks" is automatically translated by Google Translate. Sellers,Listing agents, RealMaster, Canadian Real Estate Association and relevant Real Estate Boards do not provide any translation version and cannot guarantee the accuracy of the translation. In case of a discrepancy, the English original will prevail.
欢迎来到这个迷人的、维护良好的永久产权联排别墅,位于备受追捧的Waterdown社区!这个温馨的家拥有3个宽敞的卧室,主卧室配有步入式衣橱,一个四件式浴室带有套间特权,以及两个更新后的两件式浴室,方便地位于主楼层和地下室。主生活区域拥有充足的自然光线,并可通往超大庭院,对于这类房产来说,这是一种罕见的发现。庭院提供充足的空间用于户外活动、园艺,或者只是在私密的设置中放松身心,与家人和朋友享受安静的时光。位于理想的社区;靠近公园、学校、购物中心等等。这栋联排别墅是风格和功能的完美结合,非常适合家庭居住,绝对值得一看!不要错过将这栋可直接入住的房产变成您新家的机会!
Location
Province:
Ontario
City:
Hamilton
Community:
Waterdown
Crossroad:
Rockhaven Lane
Room
Room
Level
Length
Width
Area
Living Room
Main
14.24
20.51
291.97
Kitchen
Main
17.65
20.51
361.94
Bathroom
Main
0.00
0.00
0.00
Primary Bedroom
Second
8.76
13.68
119.84
Bathroom
Second
0.00
0.00
0.00
Bedroom 2
Second
12.93
10.50
135.71
Bedroom 3
Second
11.52
9.68
111.45
Recreation
Basement
16.57
17.65
292.44
Bathroom
Basement
0.00
0.00
0.00
Laundry
Basement
8.76
11.09
97.14
School Info
Private SchoolsK-8 Grades Only
Allan A. Greenleaf
211 Parkside Dr, Waterdown0.501 km
ElementaryMiddleEnglish
9-12 Grades Only
Waterdown District
215 Parkside Dr, Waterdown0.339 km
SecondaryEnglish
K-8 Grades Only
Guardian Angels
705 Centre Rd, Hamilton1.214 km
ElementaryMiddleEnglish
9-12 Grades Only
St. Mary Catholic Secondary School
200 Whitney Ave, Hamilton9.247 km
SecondaryEnglish
11-12 Grades Only
Westdale Secondary School
700 Main St W, Hamilton8.341 km
Secondary
1-4 Grades Only
Guy B. Brown
55 Braeheid Ave, Hamilton0.792 km
ElementaryFrench Immersion Program
5-8 Grades Only
Guy B. Brown
55 Braeheid Ave, Hamilton0.792 km
ElementaryMiddleFrench Immersion Program
9-12 Grades Only
Westdale Secondary School
700 Main St W, Hamilton8.341 km
SecondaryFrench Immersion Program
K-8 Grades Only
St. Joseph Catholic Elementary School
270 Locke St S, Hamilton9.31 km
ElementaryMiddleFrench Immersion Program
9-12 Grades Only
Cathedral High School
30 Wentworth St N, Hamilton10.24 km
SecondaryFrench Immersion Program
Book Viewing
Your feedback has been submitted.
Submission Failed! Please check your input and try again or contact us











































