- Ontario
- Woolwich
194 Woolwich St S
CAD$x,xxx
CAD$3,650 Asking price
194 Woolwich StreetWoolwich, Ontario, N0B1M0
Leased
442(1+1)| 3000-3500 sqft
Listing information last updated on Fri Jul 28 2023 18:50:36 GMT-0400 (Eastern Daylight Time)

Open Map
Log in to view more information
Go To LoginSummary
IDX6633230
StatusLeased
Ownership TypeFreehold
PossessionImmediate
Brokered ByCENTURY 21 MILLENNIUM INC.
TypeResidential House,Detached
Age 0-5
Square Footage3000-3500 sqft
RoomsBed:4,Kitchen:1,Bath:4
Parking1 (2) Attached +1
Detail
Building
Bathroom Total4
Bedrooms Total4
Bedrooms Above Ground4
Construction Style AttachmentDetached
Cooling TypeCentral air conditioning
Exterior FinishBrick
Fireplace PresentTrue
Heating FuelNatural gas
Heating TypeForced air
Size Interior
Stories Total2
TypeHouse
Architectural Style2-Storey
FireplaceYes
Private EntranceYes
Property FeaturesFenced Yard,Park,Public Transit,Rec./Commun.Centre,School
Rooms Above Grade13
Heat SourceGas
Heat TypeForced Air
WaterMunicipal
Sewer YNAAvailable
Water YNAAvailable
Telephone YNAAvailable
Land
Acreagefalse
AmenitiesPark,Public Transit,Schools
Parking
Parking FeaturesAvailable
Utilities
Electric YNAAvailable
Surrounding
Ammenities Near ByPark,Public Transit,Schools
Community FeaturesCommunity Centre
Other
Deposit Requiredtrue
Employment LetterYes
Internet Entire Listing DisplayYes
Laundry FeaturesEnsuite
Payment FrequencyMonthly
Payment MethodDirect Withdrawal
References RequiredYes
SewerSewer
Credit CheckYes
Rent IncludesParking
BasementNone
PoolNone
FireplaceY
A/CCentral Air
HeatingForced Air
TVAvailable
FurnishedPartially
ExposureW
Remarks
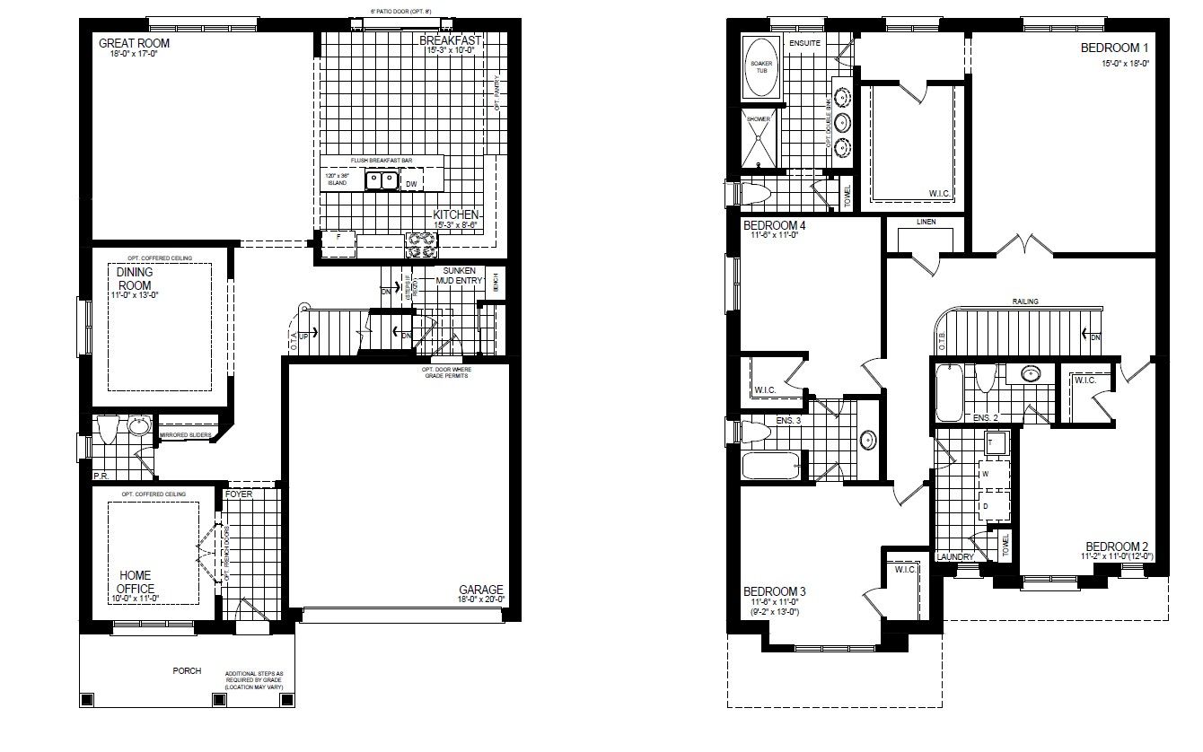
!!Must see!! rare to find a rental of this quality. 3,089Sqft, 4bd, 3.5bth, 2 parking spots. Home is only 2 years old. basement not included. Main floor boasts Great Room with huge kitchen, breakfast area and living rm with fireplace. stainless steel appliances in kitchen. Separate Formal Dining, Front office w/ glass french doors, Pwdr rm, and mudroom garage entrance. 9ft ceilings on main, oak hardwood every where except tile in wet areas and matching oak stairs, massive windows throughout. Private fenced backyard with entrance from kitchen. 2nd level features Primary bed oasis with grand ensuite including soaker tub, large separate shower, hidden toilet and upgraded vanity and dedicated linen closet. Also include W/I closet larger than some bedrooms! all bedrooms have W/I closets, 2 have ensuites, 2 share a jack & jill. Large upper laundry w/ modern appliances, laundry sink and storage. extra closets found throughout the property for endless storage options.for use: 1 Fridge, 1 Stove, 1 Dishwasher, 1 Laundry Washer, 1 Laundry Dryer. Upgraded tiles, hardwood, kitchen cabinets, lighting. Family friendly neighbourhood, schools near by, easy access to commercial amenities.
The listing data is provided under copyright by the Toronto Real Estate Board.
The listing data is deemed reliable but is not guaranteed accurate by the Toronto Real Estate Board nor RealMaster.
Location
Province:
Ontario
City:
Woolwich
Community:
Breslau/bloomingdale/maryhill
Crossroad:
Woolich St S & Andover Dr
Room
Room
Level
Length
Width
Area
Great Rm
Main
32.81
16.99
557.57
Breakfast Area Fireplace W/O To Yard
Dining
Main
10.99
12.99
142.79
Picture Window Hardwood Floor Oak Banister
Office
Main
10.01
10.99
109.98
French Doors Hardwood Floor Picture Window
Prim Bdrm
2nd
14.99
17.98
269.57
4 Pc Ensuite W/W Closet French Doors
2nd Br
2nd
10.99
10.99
120.80
4 Pc Ensuite W/W Closet Combined W/Br
3rd Br
2nd
11.48
10.99
126.21
Ensuite Bath W/W Closet Broadloom
4th Br
2nd
11.48
10.99
126.21
Ensuite Bath W/W Closet Broadloom
Laundry
2nd
NaN
O/Looks Frontyard Tile Floor Broadloom
Powder Rm
Main
NaN
2 Pc Bath Tile Floor Large Window
Bathroom
2nd
NaN
4 Pc Ensuite Tile Floor Picture Window
Bathroom
2nd
NaN
4 Pc Ensuite Tile Floor
Bathroom
2nd
NaN
Double Doors 4 Pc Ensuite Tile Floor














