- British Columbia
- West Vancouver
3293 Chippendale Rd
CAD$5,249,000
CAD$5,249,000 Asking price
3293 Chippendale RoadWest Vancouver, British Columbia, V7S3H9
Delisted · Expired ·
452(2)| 3865 sqft
Listing information last updated on Fri Feb 23 2024 05:56:52 GMT-0500 (Eastern Standard Time)

Open Map
Log in to view more information
Go To LoginSummary
IDR2819371
StatusExpired
Ownership TypeOther
Brokered ByEngel & Volkers Vancouver
TypeResidential House,Detached,Residential Detached
AgeConstructed Date: 2024
Lot Size61.22 * undefined Feet
Land Size6969.6 ft²
Square Footage3865 sqft
RoomsBed:4,Kitchen:1,Bath:5
Parking2 (2)
Maint Fee104.65 / Monthly
Detail
Building
Bathroom Total5
Bedrooms Total4
AppliancesWasher & Dryer,Dishwasher,Refrigerator
Basement DevelopmentFinished
Basement FeaturesUnknown
Basement TypeUnknown (Finished)
Constructed Date2024
Construction Style AttachmentDetached
Cooling TypeAir Conditioned
Fireplace PresentTrue
Fireplace Total1
FixtureDrapes/Window coverings
Heating FuelNatural gas
Heating TypeForced air,Heat Pump
Size Interior3865 sqft
TypeHouse
Outdoor AreaBalcny(s) Patio(s) Dck(s)
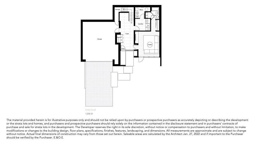
Floor Area Finished Main Floor1370
Floor Area Finished Total3865
Floor Area Finished Above Main1489
Floor Area Finished Blw Main1006
Legal DescriptionSTRATA LOT 9, PLAN EPS8014, DISTRICT LOT 888, GROUP 1, NEW WESTMINSTER LAND DISTRICT, TOGETHER WITH AN INTEREST IN THE COMMON PROPERTY IN PROPORTION TO THE UNIT ENTITLEMENT OF THE STRATA LOT AS SHOWN ON FORM V
Driveway FinishPaving Stone
Fireplaces1
Bath Ensuite Of Pieces26
Lot Size Square Ft7070
TypeHouse/Single Family
FoundationConcrete Perimeter
Titleto LandOther
Fireplace FueledbyNatural Gas
No Floor Levels3
Floor FinishHardwood,Tile
RoofTorch-On
Tot Unitsin Strata Plan10
ConstructionConcrete,Frame - Wood
SuiteNone
Exterior FinishConcrete,Fibre Cement Board
FlooringHardwood,Tile
Fireplaces Total1
Exterior FeaturesBalcony
Above Grade Finished Area2859
AppliancesWasher/Dryer,Washer,Dishwasher,Refrigerator,Range,Wine Cooler
Association AmenitiesManagement
Rooms Total16
Building Area Total3865
GarageYes
Main Level Bathrooms1
Property ConditionUnder Construction
Patio And Porch FeaturesPatio,Deck
Fireplace FeaturesGas
Window FeaturesWindow Coverings
Lot FeaturesRecreation Nearby,Ski Hill Nearby
Basement
Basement AreaFully Finished
Land
Size Total7070 m2
Size Total Text7070 m2
Acreagetrue
AmenitiesRecreation,Ski hill
Size Irregular7070
Lot Size Square Meters656.82
Lot Size Hectares0.07
Lot Size Acres0.16
Parking
Parking AccessFront
Parking TypeGarage; Double
Parking FeaturesGarage Double,Front Access,Paver Block
Utilities
Tax Utilities IncludedNo
Water SupplyCity/Municipal
Features IncludedAir Conditioning,Drapes/Window Coverings,Dishwasher,Refrigerator,Pantry,Range Top,Security - Roughed In,Vacuum - Roughed In,Clothes Washer/Dryer,Wine Cooler
Fuel HeatingForced Air,Heat Pump,Natural Gas
Surrounding
Ammenities Near ByRecreation,Ski hill
Community FeaturesRentals Allowed With Restrictions
Exterior FeaturesBalcony
Road Surface TypePaved
View TypeView
Community FeaturesRentals Allowed With Restrictions
Other
Security FeaturesPrewired
Internet Entire Listing DisplayYes
Road Surface TypePaved
Interior FeaturesPantry,Central Vacuum Roughed In
SewerPublic Sewer,Sanitary Sewer,Storm Sewer
Pid031-611-061
Sewer TypeCity/Municipal
Gst IncludedNo
Site InfluencesPaved Road,Recreation Nearby,Ski Hill Nearby
Age TypeUnder Construction
Property DisclosureNo
By Law RestrictionsRentals Allwd w/Restrctns
Services ConnectedElectricity,Natural Gas,Sanitary Sewer,Storm Sewer,Water
Rain ScreenFull
View SpecifyOcean
Broker ReciprocityYes
Fixtures Rented LeasedNo
Maint Fee IncludesManagement
Prop Disclosure StatementBy Way of Disclosure Statement
BasementFinished
A/CAir Conditioning
HeatingForced Air,Heat Pump,Natural Gas
Level3
Remarks
Architecture and Interior design by award winning BattersbyHowat, The Collection offers a living experience like no other. This home is situated on the land to enhance both the light and views. Featuring hardwood flooring, designer kitchens, local Vancouver Island stone backsplash and fireplace surround, Gaggenau appliances, oversized double car garage and exceptional energy performance. Opportunity for upgrades (including adding a 4th bedroom) for a limited time. BPP construction quality. E&OE
This representation is based in whole or in part on data generated by the Chilliwack District Real Estate Board, Fraser Valley Real Estate Board or Greater Vancouver REALTORS®, which assumes no responsibility for its accuracy.
Location
Province:
British Columbia
City:
West Vancouver
Community:
Cypress Park Estates
Room
Room
Level
Length
Width
Area
Foyer
Below
19.16
8.76
167.84
Family Room
Below
16.67
13.91
231.85
Laundry
Below
8.01
10.01
80.11
Living Room
Main
20.18
18.24
368.06
Dining Room
Main
19.49
9.25
180.30
Kitchen
Main
18.34
11.84
217.21
Pantry
Main
13.16
6.66
87.62
Primary Bedroom
Above
14.50
15.85
229.79
Walk-In Closet
Above
6.50
9.68
62.87
Bedroom
Above
11.32
11.15
126.26
Walk-In Closet
Above
2.00
7.51
15.04
Bedroom
Above
11.32
11.15
126.26
Walk-In Closet
Above
2.00
7.58
15.17
Bedroom
Above
7.58
9.91
75.09
Walk-In Closet
Above
2.00
7.58
15.17
Patio
Main
25.49
16.77
427.38
Book Viewing
Your feedback has been submitted.
Submission Failed! Please check your input and try again or contact us









