- Ontario
- Toronto
33 Marjory Ave
SoldCAD$xxx,xxx
CAD$758,888 Asking price
33 Marjory AvenueToronto, Ontario, M4M2Y2
Sold
211(0+1)| 700-1100 sqft
Listing information last updated on Mon Jan 06 2025 16:47:52 GMT-0500 (Eastern Standard Time)

Open Map
Log in to view more information
Go To LoginSummary
IDE11905475
StatusSold
Ownership TypeFreehold
PossessionTBD
Brokered ByCENTURY 21 HERITAGE GROUP LTD.
TypeResidential House,Semi-Detached
Age 100+
Lot Size19.63 * 100.25 Feet 100.26ft.x21.34ft.x100.25ft.x19.63ft.
Land Size1967.91 ft²
Square Footage700-1100 sqft
RoomsBed:2,Kitchen:1,Bath:1
Virtual Tour
Detail
Building
Bathroom Total1
Bedrooms Total2
Bedrooms Above Ground2
AppliancesWater Heater,Water meter,Refrigerator,Stove,Window Coverings
Basement DevelopmentUnfinished
Basement TypeN/A (Unfinished)
Construction Style AttachmentSemi-detached
Exterior FinishAluminum siding,Stone
Fireplace PresentFalse
Flooring TypeHardwood,Vinyl,Linoleum,Tile
Foundation TypeConcrete
Heating FuelNatural gas
Heating TypeForced air
Size Interior699.9943 - 1099.9909 sqft
Stories Total2
Total Finished Area
TypeHouse
Utility WaterMunicipal water
Architectural Style2-Storey
Rooms Above Grade9
RoofAsphalt Rolled
Exterior FeaturesDeck,Porch
Heat SourceGas
Heat TypeForced Air
WaterMunicipal
Sewer YNAYes
Water YNAYes
Telephone YNAAvailable
Land
Size Total Text19.6 x 100.3 FT ; 100.26ft.x21.34ft.x100.25ft.x19.63ft.|under 1/2 acre
Acreagefalse
SewerSanitary sewer
Size Irregular19.6 x 100.3 FT ; 100.26ft.x21.34ft.x100.25ft.x19.63ft.
Lot ShapeIrregular
Lot Size Range Acres< .50
Parking
Parking FeaturesPrivate,Lane
Utilities
Electric YNAYes
Surrounding
Exterior FeaturesDeck,Porch
Location DescriptionJones Ave. & Gerard St. East
View TypeCity view
Zoning DescriptionResidential
Other
FeaturesIrregular lot size,Lane,Carpet Free
Interior FeaturesCarpet Free,Storage,Water Heater,Water Meter
Internet Entire Listing DisplayYes
SewerSewer
BasementUnfinished
PoolNone
A/CNone
TVAvailable
ExposureE
Remarks
Discover the Charm the Leslieville neighbourhood within the community of South Riverdale: Your Dream of Freehold living awaits! Three generations of the same family have called this home. This semi-detached gem is beckoning first-time buyers and those transitioning from condo life to embrace the allure of freehold living. Picture yourself unwinding on the quaint covered front porch of this two-storey residence, where the fusion of original hardwood floors and high ceilings within the living and dining areas create an atmosphere of timeless elegance, further enhanced by brand new ceiling light fixtures. The heart of the home lies in the bright, eat-in kitchen, boasting new vinyl flooring and modern faux wood horizontal blinds, complemented by stainless steel fridge and stove. It's a hub for friends &. family to gather. Step out from the kitchen to your back deck, overlooking the convenience of a laneway parking spot with the potential for expanding the parking to accommodate additional parking needs. Upstairs, two bedrooms await, including a spacious primary bedroom, while the inclusion of a new HVAC forced air gas furnace and an a new electric hot water heater ensure your comfort during those cold winter months. Just a stone's throw from the eclectic shops, grocery stores, and a plethora of restaurants along Queen and Gerrard Streets in Little India, your new home positions you at the center of it all. With multiple TTC routes, the upcoming Ontario Line stops, and scenic bike trails at your doorstep, the ease of access complements the area's lively spirit. Plus, residing within the catchment for the esteemed Riverdale Collegiate Institute, this location is as much about lifestyle as it is about convenience. Step into the life you've imagined in Leslieville South Riverdale where community meets comfort.
The listing data is provided under copyright by the Toronto Real Estate Board.
The listing data is deemed reliable but is not guaranteed accurate by the Toronto Real Estate Board nor RealMaster.
The following "Remarks" is automatically translated by Google Translate. Sellers,Listing agents, RealMaster, Canadian Real Estate Association and relevant Real Estate Boards do not provide any translation version and cannot guarantee the accuracy of the translation. In case of a discrepancy, the English original will prevail.
探索南河谷社区中Leslieville街区的魅力:您的永久产权生活梦想即将实现!同一家族的三代人都曾在此安家。这栋半独立式住宅珍品正召唤着首次购房者和从公寓生活过渡的人们,拥抱永久产权生活的诱惑。想象自己在这两层住宅的迷人带顶前廊上放松身心,客厅和餐厅区域融合了原始硬木地板和高挑天花板,营造出永恒的优雅氛围,全新的天花板灯具更添光彩。家的核心是明亮的用餐厨房,拥有全新的乙烯基地板和现代仿木水平百叶窗,搭配不锈钢冰箱和炉灶,是朋友和家人聚会的中心。从厨房步入后甲板,俯瞰便利的车道停车位,还有扩展停车空间以满足更多停车需求的潜力。楼上,两间卧室静候您的到来,其中包括一间宽敞的主卧室,而全新的HVAC强制空气燃气炉和全新的电热水器确保您在寒冷的冬季也能舒适无忧。新家距离皇后街和杰拉德街上的各种独特商店、杂货店以及众多餐厅仅一步之遥,位于小印度区的中心地带。多条TTC线路、即将开通的安大略线站点以及门前的风景如画的自行车道,便捷的交通与区域的活力相得益彰。此外,居住于备受尊敬的Riverdale Collegiate Institute学区范围内,这里不仅关乎生活方式,更在于便利。踏入您在Leslieville南河谷梦想中的生活,这里社区与舒适并存。
Location
Province:
Ontario
City:
Toronto
Community:
South Riverdale
Crossroad:
Jones Ave. & Gerard St. East
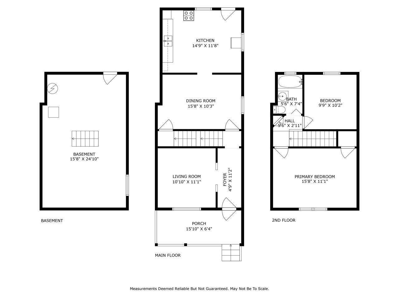
Room
Room
Level
Length
Width
Area
Foyer
Main
11.15
4.76
53.07
Living Room
Main
11.09
10.83
120.06
Dining Room
Main
10.24
15.68
160.53
Kitchen
Main
11.68
14.76
172.44
Bathroom
Second
7.35
-82.02
-602.78
Primary Bedroom
Second
11.09
15.68
173.91
Bedroom 2
Second
10.17
9.74
99.10
Furnace Room
Basement
24.84
15.68
389.49
School Info
Private SchoolsK-6 Grades Only
Leslieville Junior Public School
254 Leslie St, Toronto0.354 km
ElementaryEnglish
7-8 Grades Only
Duke Of Connaught Junior And Senior Public School
70 Woodfield Rd, Toronto1.208 km
MiddleEnglish
9-12 Grades Only
Riverdale Collegiate Institute
1094 Gerrard St E, Toronto0.366 km
SecondaryEnglish
K-8 Grades Only
St. Joseph Catholic School
176 Leslie St, Toronto0.45 km
ElementaryMiddleEnglish
9-12 Grades Only
Birchmount Park Collegiate Institute
3663 Danforth Ave, Scarborough6.737 km
Secondary
K-7 Grades Only
Holy Name Catholic School
690 Carlaw Ave, Toronto1.316 km
ElementaryMiddleFrench Immersion Program
Book Viewing
Your feedback has been submitted.
Submission Failed! Please check your input and try again or contact us























