- Ontario
- Toronto
313 Richmond St E
SoldCAD$xxx,xxx
CAD$399,000 Asking price
452 313 Richmond StreetToronto, Ontario, M5A4S7
Sold
0+11| 0-499 sqft
Listing information last updated on Thu Sep 14 2023 21:17:39 GMT-0400 (Eastern Daylight Time)

Open Map
Log in to view more information
Go To LoginSummary
IDC6776432
StatusSold
Ownership TypeCondominium/Strata
PossessionImmediate
Brokered ByIPRO REALTY LTD.
TypeResidential Apartment
Age 16-30
Square Footage0-499 sqft
RoomsBed:0+1,Kitchen:1,Bath:1
Maint Fee310.38 / Monthly
Maint Fee InclusionsHeat,Hydro,Water,CAC,Building Insurance
Detail
Building
Bathroom Total1
Bedrooms Total1
Bedrooms Below Ground1
AmenitiesSecurity/Concierge,Party Room,Exercise Centre
Cooling TypeCentral air conditioning
Exterior FinishConcrete
Fireplace PresentFalse
Heating FuelNatural gas
Heating TypeForced air
Size Interior
TypeApartment
Association AmenitiesConcierge,Exercise Room,Gym,Indoor Pool,Party Room/Meeting Room,Visitor Parking
Architectural StyleApartment
Property FeaturesLibrary,Park,Public Transit,Ravine,School
Rooms Above Grade4
Heat SourceGas
Heat TypeForced Air
LockerNone
Land
Acreagefalse
AmenitiesPark,Public Transit,Schools
Parking
Parking FeaturesNone
Utilities
ElevatorYes
Surrounding
Ammenities Near ByPark,Public Transit,Schools
Other
FeaturesRavine,Balcony
Internet Entire Listing DisplayYes
BasementNone
BalconyJuliette
FireplaceN
A/CCentral Air
HeatingForced Air
FurnishedNo
Level4
Unit No.452
ExposureS
Parking SpotsNone
Corp#MTCC1337
Prop MgmtDel Property Management 416-203-3397
Remarks
Welcome to The Richmond! Developed by Reputable Tridel. Very Motivated Seller! Priced to Sell! Buyer must assume current tenant. Larger studio in an established, well-kept building with all-inclusive condo fees at only $310.38/month! Den used as a bedroom. Full-sized appliances. High demand centralized area. Open kitchen and living room with a Juliette balcony overlooking courtyard. Steps from the TTC, downtown core, shops, restaurants, groceries, DVP, parks, trails, ravine. Condo fees include heat, hydro, and water!
The listing data is provided under copyright by the Toronto Real Estate Board.
The listing data is deemed reliable but is not guaranteed accurate by the Toronto Real Estate Board nor RealMaster.
Location
Province:
Ontario
City:
Toronto
Community:
Moss Park 01.C08.0950
Crossroad:
Richmond St E/Sherbourne St
Room
Room
Level
Length
Width
Area
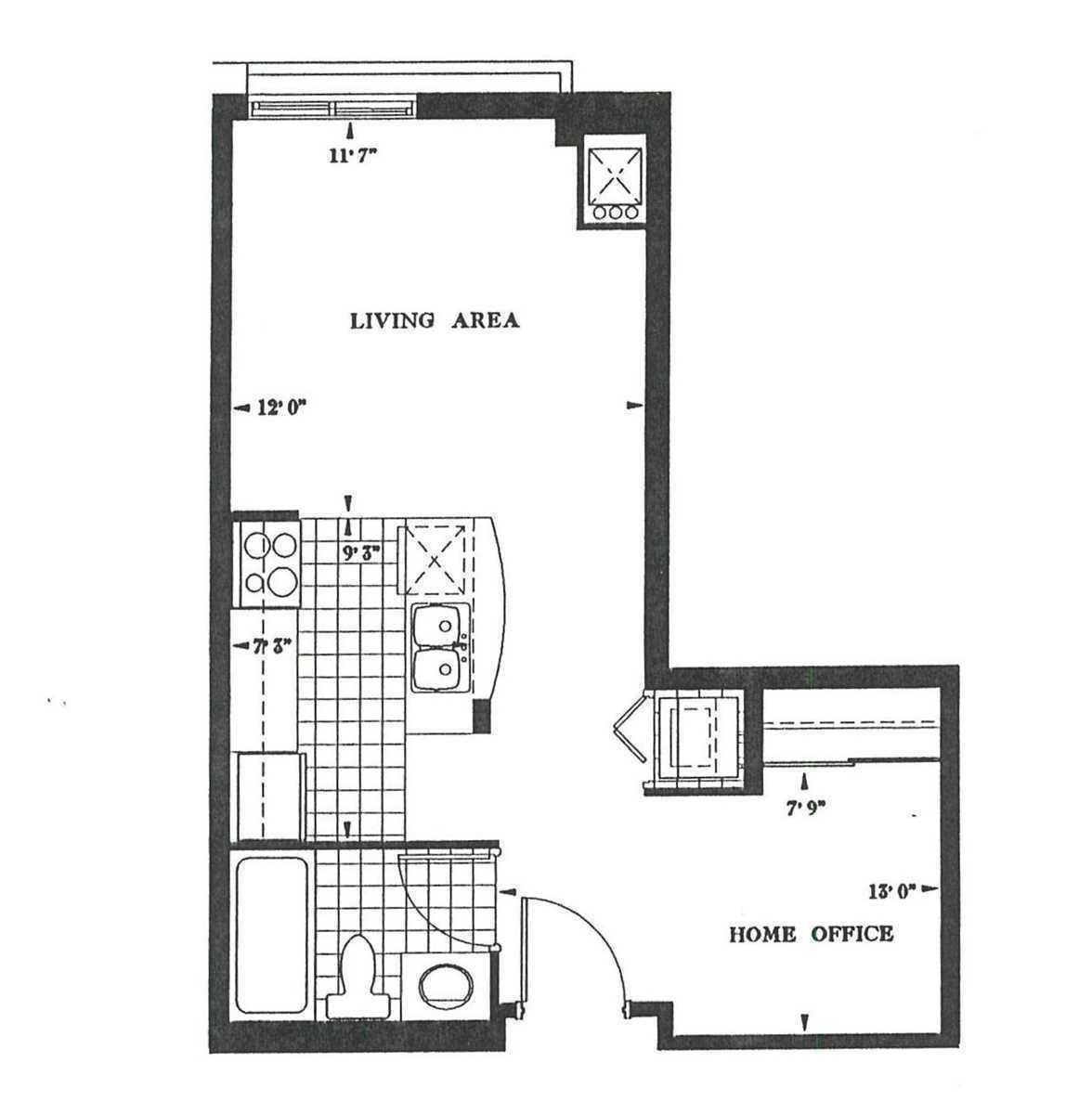
Living Room
Main
11.98
10.99
131.62
Kitchen
Main
9.28
7.28
67.63
Den
Main
11.98
7.87
94.29
Bathroom
Main
NaN
School Info
Private SchoolsK-8 Grades Only
Market Lane Junior And Senior Public School
246 The Esplanade, Toronto0.481 km
ElementaryMiddleEnglish
9-12 Grades Only
Jarvis Collegiate Institute
495 Jarvis St, Toronto1.588 km
SecondaryEnglish
K-8 Grades Only
St. Michael Catholic School
50 George St S, Toronto0.608 km
ElementaryMiddleEnglish
K-6 Grades Only
St. Michael's Choir (sr) School
67 Bond St, Toronto0.793 km
ElementaryEnglish
9-12 Grades Only
Western Technical-Commercial School
125 Evelyn Cres, Toronto8.594 km
Secondary
K-8 Grades Only
St. Mary Catholic School
20 Portugal Sq, Toronto3.004 km
ElementaryMiddleFrench Immersion Program
K-8 Grades Only
Holy Rosary Catholic School
308 Tweedsmuir Ave, Toronto5.081 km
ElementaryMiddleFrench Immersion Program
Book Viewing
Your feedback has been submitted.
Submission Failed! Please check your input and try again or contact us































