- Prince Edward Island
- Stratford
61 Mcgregor Dr
CAD$899,000
CAD$899,000 Asking price
61 McGregor DriveStratford, Prince Edward Island, C1B1K9
Delisted · Delisted ·
4+24
Listing information last updated on Sat Jun 03 2023 01:49:09 GMT-0400 (Eastern Daylight Time)

Open Map
Log in to view more information
Go To LoginSummary
ID202303014
StatusDelisted
Ownership TypeFreehold
Brokered ByRE/MAX CHARLOTTETOWN REALTY
TypeResidential House,Detached
Age
Land Size0.4600|under 1/2 acre
RoomsBed:4+2,Bath:4
Detail
Building
Bathroom Total4
Bedrooms Total6
Bedrooms Above Ground4
Bedrooms Below Ground2
AppliancesNone
Construction Style AttachmentDetached
Cooling TypeAir exchanger
Exterior FinishStone,Vinyl
Fireplace PresentTrue
Flooring TypeEngineered hardwood,Laminate,Tile,Vinyl
Half Bath Total1
Heating FuelElectric
Heating TypeWall Mounted Heat Pump,Radiant heat,Heat Recovery Ventilation (HRV)
Stories Total2
Total Finished Area3598 sqft
TypeHouse
Utility WaterMunicipal water
Land
Size Total0.4600|under 1/2 acre
Size Total Text0.4600|under 1/2 acre
Acreagefalse
AmenitiesGolf Course,Park,Playground,Public Transit,Shopping
Land DispositionCleared
Landscape FeaturesLandscaped
SewerMunicipal sewage system
Size Irregular0.46
Heated Garage
Paved Yard
Surrounding
Ammenities Near ByGolf Course,Park,Playground,Public Transit,Shopping
Community FeaturesRecreational Facilities,School Bus
Location DescriptionClearview Estates
FireplaceTrue
HeatingWall Mounted Heat Pump,Radiant heat,Heat Recovery Ventilation (HRV)
Remarks
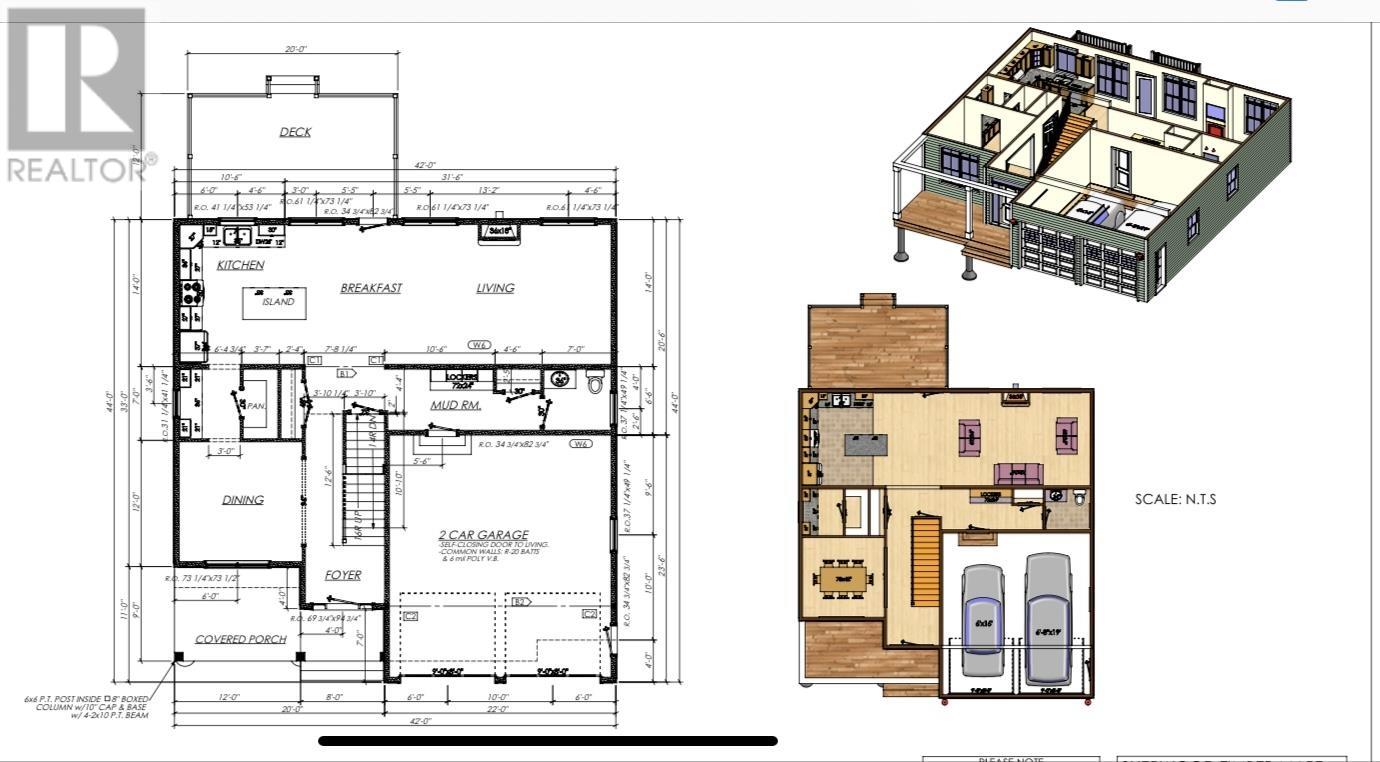
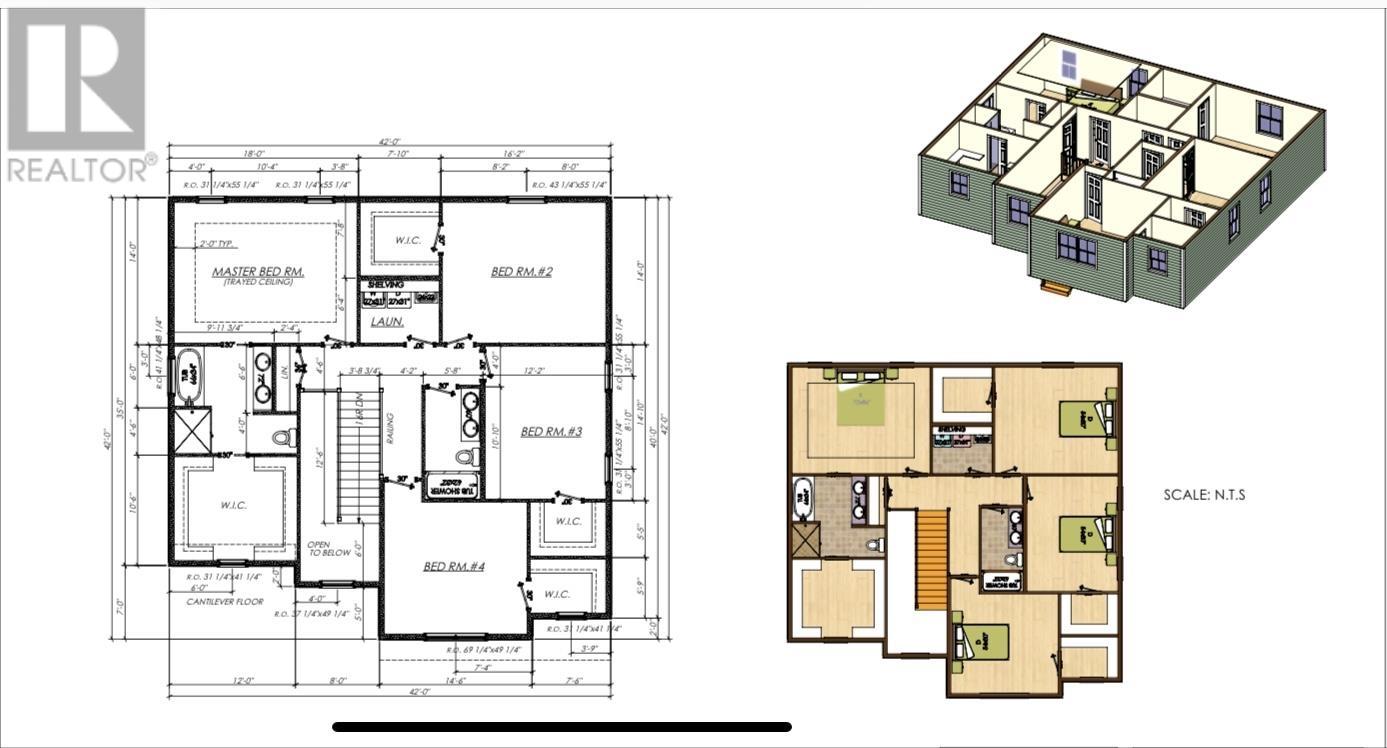
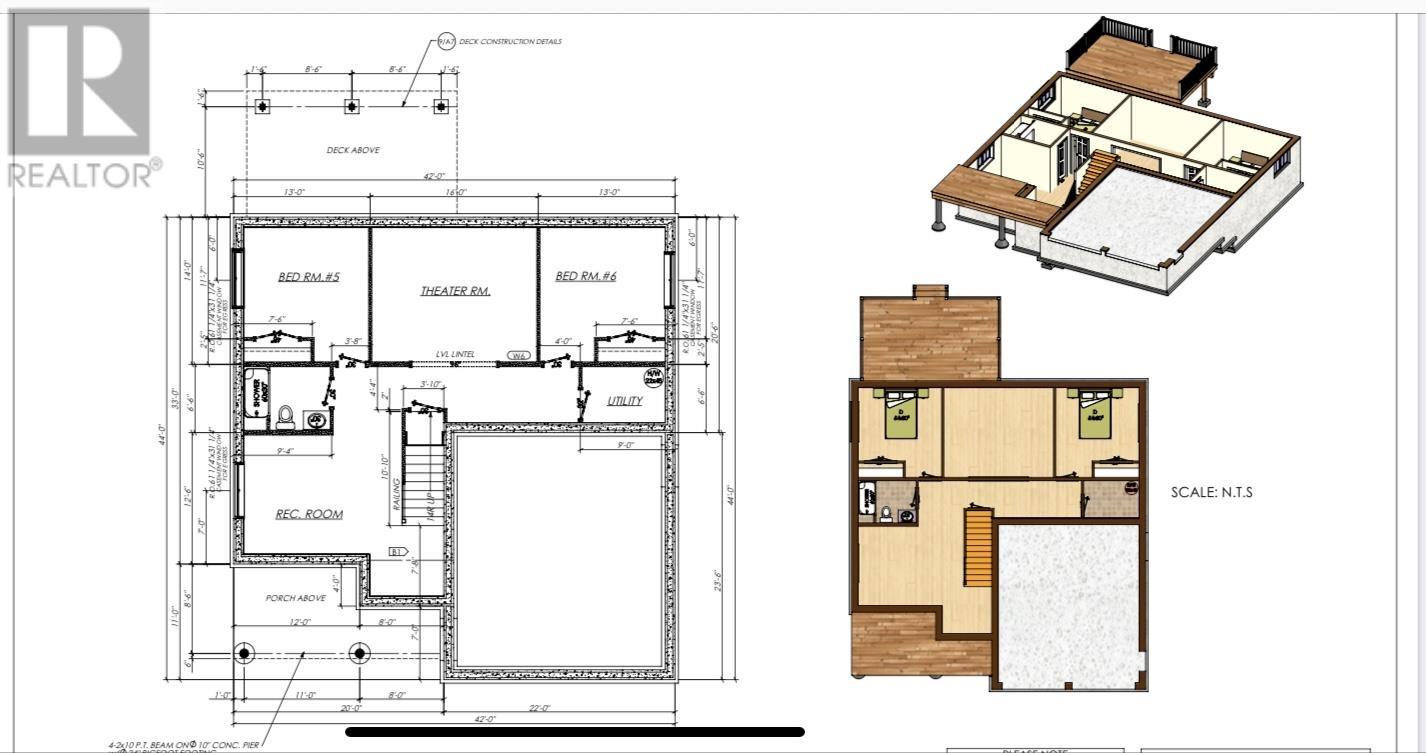
We are Ready! No detail spared in this luxurious new build just minutes from Charlottetown and Stratford hub - close access to all amenities ~ all while enjoying relaxed spacious living. This 4 + 2 bedrooms and 3 1/2 baths is surely to impress, walking through the grand entry you will be greeted with access to the dining room followed by large open concept living room and kitchen featuring 9 foot ceilings, custom cabinets with quartz countertops, large island and dreamy butlers pantry. Completing the main floor you will find a heartwarming electric fireplace, your favourite drop zone / mudroom and 1/2 bath. Heading upstairs you?ll find the primary suite, not only will your eyes be drawn to the tray ceiling but your new ensuite and oversized walk-in closet. There are 3 more large bedrooms upstairs each with their own walk-in closet sharing another full bathroom and laundry room. Downstairs the lower level is completely finished with a full bathroom, 2 additional bedrooms, rec. room and separate home theatre media room. The additional living space on this level provides opportunity for whatever suits your needs whether for guests, home office or gym. Don?t miss out on this new property and spectacular location. Curb appeal included with double paved driveway, grading of property and seeded lawn. Purchase price includes HST & LUX home warranty. Restrictive covenants in place to protect your investment. Tax and Assessment values are to be determined. All measurements are approximate and should be verified by purchaser, if deemed necessary. (id:22211)
The listing data above is provided under copyright by the Canada Real Estate Association.
The listing data is deemed reliable but is not guaranteed accurate by Canada Real Estate Association nor RealMaster.
MLS®, REALTOR® & associated logos are trademarks of The Canadian Real Estate Association.
Location
Province:
Prince Edward Island
City:
Stratford
Community:
Stratford
Room
Room
Level
Length
Width
Area
Primary Bedroom
Second
14.01
18.01
252.33
14. X 18.
Ensuite (# pieces 2-6)
Second
10.60
12.01
127.25
10.6 X 12.
Other
Second
10.60
12.01
127.25
10.6 X 12.
Laundry
Second
7.09
6.40
45.34
7.10 X 6.4
Bedroom
Second
16.21
14.01
227.05
16.2 X 14.
Bedroom
Second
12.20
14.11
172.18
12.2 X 14.10
Bedroom
Second
14.60
13.39
195.43
14.6 X 13.4
Bath (# pieces 1-6)
Second
5.81
10.10
58.68
5.8 X 10.10
Kitchen
Main
14.01
19.00
266.12
14. X 19.
Living
Main
14.01
23.00
322.19
14. X 23.
Other
Main
6.99
10.01
69.93
7. X 10. (Pantry)
Dining
Main
12.01
12.01
144.19
12. X 12.
Foyer
Main
6.00
8.01
48.06
6. X 8.
Mud
Main
14.99
6.59
98.87
15. X 6.6
Bath (# pieces 1-6)
Main
6.59
6.99
46.08
6.6 X 7.
















































