- Newfoundland And Labrador
- St. John's
67 SPRINGDALE Street
CAD$399,900
CAD$399,900 Asking price
67 SPRINGDALE StreetSt. John's, Newfoundland And Labrador, A1C5B3
Delisted · Delisted ·
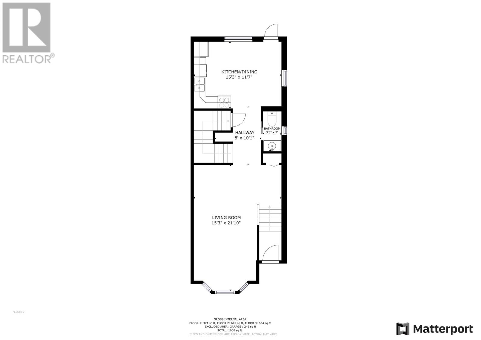
2+13(1)| 1600 sqft
Listing information last updated on Fri Feb 02 2024 22:15:59 GMT-0500 (Eastern Standard Time)

Open Map
Log in to view more information
Go To LoginSummary
ID1266707
StatusDelisted
Ownership TypeFreehold
Brokered ByRE/MAX Infinity Realty Inc. - Sheraton Hotel
TypeResidential House,Semi-Detached
AgeConstructed Date: 2006
Land Size135.25m2|under 1/2 acre
Square Footage1600 sqft
RoomsBed:2+1,Bath:3
Parking1
Virtual Tour
Detail
Building
Bathroom Total3
Bedrooms Total3
Bedrooms Above Ground2
Bedrooms Below Ground1
AppliancesDishwasher
Constructed Date2006
Construction Style AttachmentSemi-detached
Cooling TypeAir exchanger
Exterior FinishVinyl siding
Fireplace PresentFalse
Flooring TypeCarpeted,Ceramic Tile,Hardwood,Mixed Flooring,Wood
Foundation TypeConcrete
Half Bath Total1
Heating FuelElectric
Size Interior1600 sqft
Stories Total1
TypeHouse
Utility WaterMunicipal water
Land
Size Total Text135.25m2|under 1/2 acre
Access TypeYear-round access
Acreagefalse
AmenitiesShopping
SewerMunicipal sewage system
Size Irregular135.25m2
Attached Garage
Garage
Surrounding
Ammenities Near ByShopping
Zoning DescriptionRES
FireplaceFalse
Remarks
Welcome to 67 Springdale Street! This stunning and modern 3 bedroom, 3 bath semi-detached townhome is exquisitely positioned on the cusp of downtown. It is absolutely perfect for the executive or young professional wanting to be in the heart of the city and steps away from world class restaurants, nightlife and shopping. An entertainer's delight, the natural light filled main floor features a stunning open concept layout with gleaming hardwood and tile floors that host the elegantly designed living room, powder room, eat in kitchen complete with rear access to your own private and fenced oasis like backyard. Upstairs boasts two bedrooms, the main 4-piece bathroom and large hallway. The primary bedroom with its own mini-split, large walk in closet, gorgeous 3-piece ensuite and stylish designer accent wall will most certainly be your retreat from those hectic work days. The lower level contains the large third bedroom or rec room, laundry, multiple storage areas as well as the deep in-house single garage that is perfect for keeping your vehicle safe and out of the elements. With three new professionally installed Wi-Fi enabled programmable mini-split heads your energy costs will be very affordable and allow you to stay cool on those warm summer days and toasty on those chilly winter nights. This property is a must see, is an absolute pleasure to view and will not last long!! (id:22211)
The listing data above is provided under copyright by the Canada Real Estate Association.
The listing data is deemed reliable but is not guaranteed accurate by Canada Real Estate Association nor RealMaster.
MLS®, REALTOR® & associated logos are trademarks of The Canadian Real Estate Association.
Location
Province:
Newfoundland And Labrador
City:
St. John's
Room
Room
Level
Length
Width
Area
Other
Second
6.00
8.99
53.97
6' x 9'
Bath (# pieces 1-6)
Second
5.25
8.07
42.37
5'3"" x 8'1""
Bedroom
Second
15.26
11.75
179.19
15'3"" x 11'9""
Other
Second
4.99
6.59
32.89
5' x 6'7""
Primary Bedroom
Second
15.26
21.82
332.85
15'3"" x 21'10""
Ensuite
Second
5.25
7.51
39.44
5'3"" x 7'6""
Storage
Lower
4.07
9.68
39.37
4'1"" x 9'8""
Not known
Lower
15.32
19.75
302.61
15'4"" x 19'9""
Other
Lower
6.27
3.35
20.97
6'3"" x 3'4""
Laundry
Lower
5.51
3.18
17.54
5'6"" x 3'2""
Other
Lower
4.27
5.51
23.51
4'3"" x 5'6""
Bedroom
Lower
15.32
11.58
177.44
15'4"" x 11'7""
Bath (# pieces 1-6)
Main
3.25
6.99
22.70
3'3"" x 7'
Other
Main
8.01
10.07
80.63
8' x 10'1""
Foyer
Main
4.00
4.99
19.96
4' X 5'
Kitchen
Main
15.26
11.58
176.68
15'3"" X 11'7""
Living
Main
15.26
21.82
332.85
15'30"" X 21'10""

































