- Newfoundland And Labrador
- St. John's
19 Diamond Marsh Dr
CAD$449,900
CAD$449,900 Asking price
19 Diamond Marsh DriveSt. John's, Newfoundland And Labrador, A1H0P6
Delisted · Delisted ·
33| 2280 sqft
Listing information last updated on Mon Feb 05 2024 21:07:18 GMT-0500 (Eastern Standard Time)

Open Map
Log in to view more information
Go To LoginSummary
ID1265651
StatusDelisted
Ownership TypeFreehold
Brokered ByRoyal LePage Atlantic Homestead
TypeResidential House,Detached
AgeConstructed Date: 2023
Land Size71'x68'x71'x70'|4051 - 7250 sqft
Square Footage2280 sqft
RoomsBed:3,Bath:3
Detail
Building
Bathroom Total3
Bedrooms Total3
Bedrooms Above Ground3
Architectural Style2 Level
Constructed Date2023
Construction Style AttachmentDetached
Exterior FinishVinyl siding
Fireplace PresentFalse
Flooring TypeCarpeted,Ceramic Tile,Laminate
Foundation TypePoured Concrete
Half Bath Total1
Heating FuelElectric
Heating TypeBaseboard heaters
Size Interior2280 sqft
Stories Total2
TypeHouse
Utility WaterMunicipal water
Land
Size Total Text71'x68'x71'x70'|4,051 - 7,250 sqft
Acreagefalse
Landscape FeaturesLandscaped
SewerMunicipal sewage system
Size Irregular71'x68'x71'x70'
Surrounding
Zoning DescriptionRes.
FireplaceFalse
HeatingBaseboard heaters
Remarks
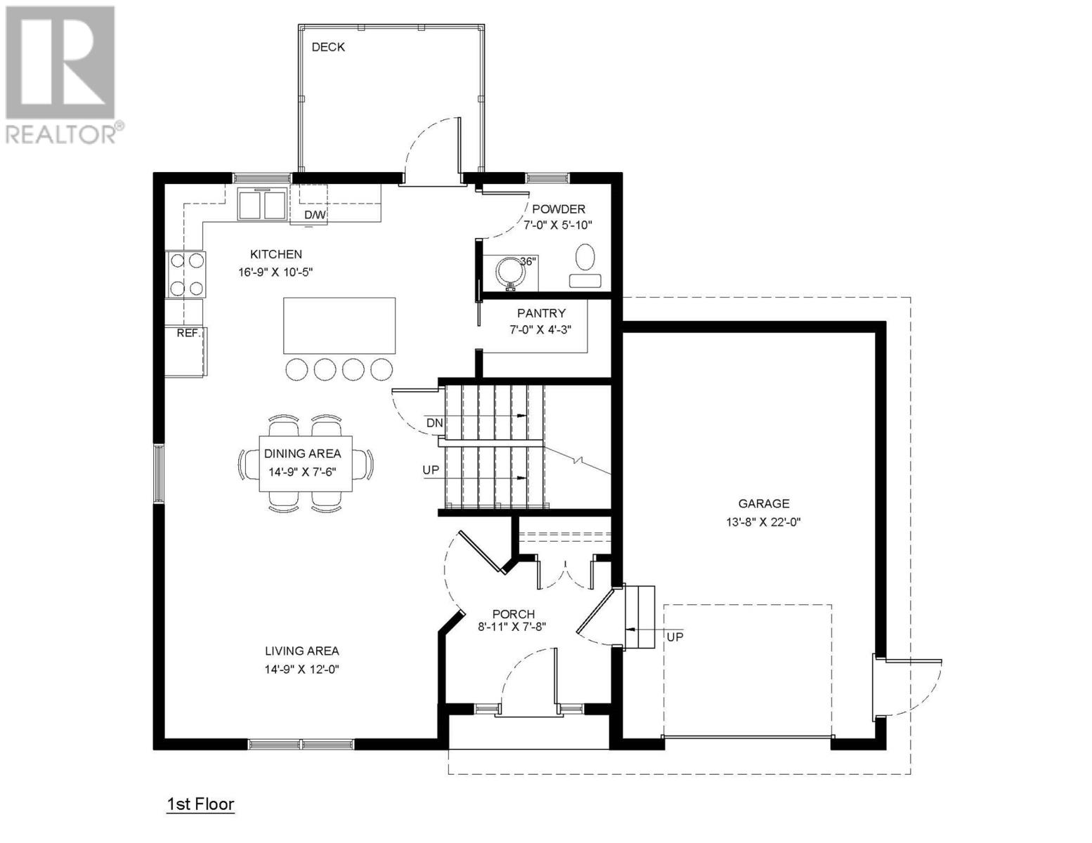
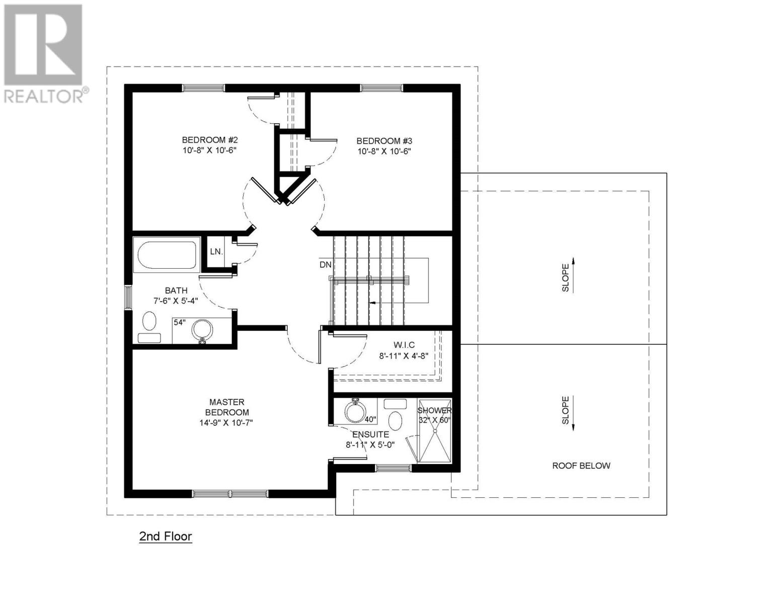
Construction has started, READY FOR OCCUPANCY MARCH, 2024. Award-winning NEW VICTORIAN HOMES is pleased to offer the 'Lewisporte' with ATTACHED GARAGE in beautiful Diamond Marsh. This 2-story home features modern exterior accents, 30 YEAR WARRANTY shingles, and a FULLY LANDSCAPED YARD. Inside you'll find an open concept main floor, kitchen w/WALK-IN PANTRY and 3 bedrooms up including a large master bedroom, 3PC ENSUITE with CUSTOM TILE SHOWER and WALK-IN CUSTOM CLOSET. Save on energy costs R-50 attic insulation, and R-22 wall insulation. Explore the beautiful Grand Concourse trails of nearby Southlands and enjoy quick access to Galway and Costco. Only 10 minutes to downtown and 15 minutes to the east end via the Outer Ring Road. Price includes 10-year Atlantic Home Warranty, paved driveway, 10'x12' pressure-treated deck, and a COMPLIMENTARY INTERIOR DESIGN CONSULTATION with VIOLET LILY DESIGN. Any drawings are Artist Concept, actual house may not be exactly as shown. Photos and Virtual Tours are from a previously built model and may have extras not included in this property. HST included in list price to be rebated to vendor on closing. Property taxes are estimated. (id:22211)
The listing data above is provided under copyright by the Canada Real Estate Association.
The listing data is deemed reliable but is not guaranteed accurate by Canada Real Estate Association nor RealMaster.
MLS®, REALTOR® & associated logos are trademarks of The Canadian Real Estate Association.
Location
Province:
Newfoundland And Labrador
City:
St. John's
Room
Room
Level
Length
Width
Area
Ensuite
Second
NaN
3PC
Bath (# pieces 1-6)
Second
NaN
4PC
Bedroom
Second
10.66
10.50
111.94
10'8""x10'6""
Bedroom
Second
10.66
10.50
111.94
10'8""x10'6""
Primary Bedroom
Second
14.76
10.60
156.45
14'9""x10'7""
Not known
Main
13.68
22.01
301.18
13'8""x22'0""
Not known
Main
6.99
4.27
29.81
7'0""x4'3""
Bath (# pieces 1-6)
Main
NaN
2PC
Foyer
Main
8.92
7.68
68.51
8'11""x7'8""
Dining
Main
14.76
7.51
110.92
14'9x7'6""
Kitchen
Main
16.77
10.40
174.36
16'9x10'5""
Living
Main
14.76
12.01
177.28
14'9""x12'0""



