- Newfoundland And Labrador
- St. John's
178 Groves Rd
CAD$239,900
CAD$239,900 Asking price
178 Groves RoadSt. John's, Newfoundland And Labrador, A1B4L4
Delisted
31| 3598 sqft
Listing information last updated on Fri Jan 05 2024 21:07:03 GMT-0500 (Eastern Standard Time)

Open Map
Log in to view more information
Go To LoginSummary
ID1265270
StatusDelisted
Ownership TypeFreehold
Brokered ByKeller Williams Platinum Realty
TypeResidential House,Detached,Bungalow
AgeConstructed Date: 1967
Land Size0.56 acre (aprx)|21780 - 32669 sqft (1/2 - 3/4 ac)
Square Footage3598 sqft
RoomsBed:3,Bath:1
Virtual Tour
Detail
Building
Bathroom Total1
Bedrooms Total3
Bedrooms Above Ground3
AppliancesSee remarks
Architectural StyleBungalow
Constructed Date1967
Construction Style AttachmentDetached
Exterior FinishVinyl siding
Fireplace PresentFalse
Flooring TypeHardwood,Mixed Flooring
Foundation TypeConcrete
Half Bath Total0
Heating FuelElectric,Oil
Size Interior3598 sqft
Stories Total1
TypeHouse
Utility WaterDug Well
Land
Size Total Text0.56 acre (aprx)|21,780 - 32,669 sqft (1/2 - 3/4 ac)
Access TypeYear-round access
Acreagefalse
AmenitiesRecreation,Shopping
SewerSeptic tank
Size Irregular0.56 acre (aprx)
Surrounding
Ammenities Near ByRecreation,Shopping
Location DescriptionGroves Road is off Mount Scio Road
Zoning DescriptionRRI
FireplaceFalse
Remarks
Great renovation opportunity on a 0.5 acre lot in centre city near hospitals, post-secondary institutions, and highway! Groves Road is a wonderfully unique area of the city with large lots that feel completely out of town, while being just a 5 minute drive to everything. If you've spent any amount of time perusing listings, you'll also know that true, grade-level, ranch-style bungalows are hard to find; enhancing the value of this opportunity. Several structural updates have been professionally completed over the last 12 years, which include but are not limited to replacement of: windows , siding, shingles, exterior doors, and electrical. For the agriculturalist, hobbyist or even entrepreneur the RRI zoning provides further optional opportunities which include: agricultural use, additional accessory building(s), home-based business and retail, storage, and service shops (full details available upon request). There is so much potential here - imagine a renovation with beautiful landscaping - it CAN BE the house that EVERYONE is talking about. All while being a moment's drive to the Health Sciences Centre, Janeway Children's Hospital, Memorial University, Avalon Mall, Kelsey Drive shopping, and the Outer Ring Road... and on the door step of Pippy Park and O'Brien Farm walking trails to boot! In today's high interest rate environment, this is a great way to purchase a home affordably and build your own equity! Don't let this opporuntity pass you by. Book a showing today! (id:22211)
The listing data above is provided under copyright by the Canada Real Estate Association.
The listing data is deemed reliable but is not guaranteed accurate by Canada Real Estate Association nor RealMaster.
MLS®, REALTOR® & associated logos are trademarks of The Canadian Real Estate Association.
Location
Province:
Newfoundland And Labrador
City:
St. John's
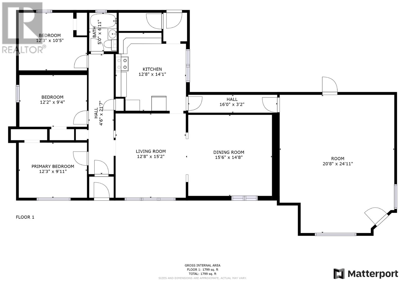
Room
Room
Level
Length
Width
Area
Not known
Main
19.91
11.68
232.60
19'11""x11'8""
Other
Main
20.67
14.67
303.12
20'8""x14'8""
Bath (# pieces 1-6)
Main
NaN
4pcs
Bedroom
Main
12.24
10.40
127.27
12'3""x10'5""
Bedroom
Main
12.17
9.32
113.41
12'2""x9'4""
Primary Bedroom
Main
12.24
9.91
121.25
12'3""x9'11""
Kitchen
Main
12.66
14.07
178.24
12'8""x14'1""
Dining
Main
15.49
14.67
227.10
15'6""x14'8""
Living
Main
12.66
15.16
191.95
12'8""x15'2""






























