- British Columbia
- Saanich
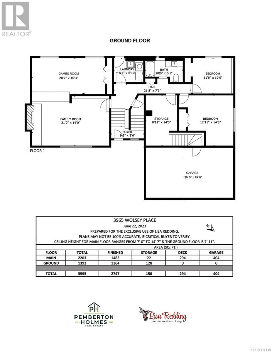
3965 Wolsey Pl
CAD$1,799,000
CAD$1,799,000 Asking price
3965 Wolsey PlSaanich, British Columbia, V8N4T9
Delisted · Delisted ·
432| 3595 sqft
Listing information last updated on Sat Jul 22 2023 10:43:21 GMT-0400 (Eastern Daylight Time)

Open Map
Log in to view more information
Go To LoginSummary
ID937130
StatusDelisted
Ownership TypeFreehold
Brokered ByPemberton Holmes Ltd - Sidney
TypeResidential House
AgeConstructed Date: 1974
Land Size21554 sqft
Square Footage3595 sqft
RoomsBed:4,Bath:3
Virtual Tour
Detail
Building
Bathroom Total3
Bedrooms Total4
Architectural StyleWestcoast,Other
Constructed Date1974
Cooling TypeNone
Fireplace PresentTrue
Fireplace Total2
Heating FuelNatural gas
Size Interior3595 sqft
Total Finished Area2747 sqft
TypeHouse
Land
Size Total21554 sqft
Size Total Text21554 sqft
Acreagefalse
Size Irregular21554
Surrounding
Zoning TypeResidential
Other
FeaturesCul-de-sac,Park setting,Private setting,Southern exposure,Wooded area,Other
FireplaceTrue
Remarks
A home that captures the essence of the West Coast, this thoughtfully designed post & beam home exudes warmth & character. Providing a unique blend of architectural elegance, natural harmony & privacy backing onto Konukson Park on desirable Ten Mile Point, you'll be delighted that your new home is close to the ocean, walking trails, & all amenities of Cadboro Bay village. There are 4 spacious bedrooms, 3 bathrooms, a large eat-in kitchen, equipped with modern appliances & plenty of counter & storage space. The large south-facing deck is perfect for hosting barbecues, relaxing with a book, or enjoying quality time with family & friends. The large, two-part recreation room downstairs is perfect for kids, and hobbies. Floor to ceiling picture windows flood the living room with natural light. Outside you will find a sprinkler system, a magnificent magnolia tree, plus a lush side yard perfect for the home gardener enthusiast. This quiet & private retreat will appeal to all who appreciate what Ten Mile Point offers (id:22211)
The listing data above is provided under copyright by the Canada Real Estate Association.
The listing data is deemed reliable but is not guaranteed accurate by Canada Real Estate Association nor RealMaster.
MLS®, REALTOR® & associated logos are trademarks of The Canadian Real Estate Association.
Location
Province:
British Columbia
City:
Saanich
Community:
Ten Mile Point
Room
Room
Level
Length
Width
Area
Storage
Lower
8.01
14.01
112.15
8 ft x 14 ft
Bedroom
Lower
12.99
14.01
182.01
13 ft x 14 ft
Bedroom
Lower
12.01
10.01
120.16
12 ft x 10 ft
Bathroom
Lower
10.99
6.99
76.81
11 ft x 7 ft
Laundry
Lower
8.01
6.99
55.94
8 ft x 7 ft
Games
Lower
21.00
10.01
210.11
21 ft x 10 ft
Family
Lower
22.01
14.01
308.40
22 ft x 14 ft
Entrance
Lower
8.99
4.00
35.98
9 ft x 4 ft
Ensuite
Main
10.01
8.01
80.11
10 ft x 8 ft
Primary Bedroom
Main
14.01
25.98
364.02
14 ft x 26 ft
Bedroom
Main
12.01
8.99
107.94
12 ft x 9 ft
Bathroom
Main
6.99
4.99
34.85
7 ft x 5 ft
Kitchen
Main
10.99
12.01
131.98
11 ft x 12 ft
Eating area
Main
8.01
12.01
96.13
8 ft x 12 ft
Dining
Main
12.01
12.99
156.01
12 ft x 13 ft
Living
Main
22.01
14.99
330.07
22 ft x 15 ft
Storage
Other
8.01
12.01
96.13
8 ft x 12 ft



























