- Saskatchewan
- Regina
2709 Francis St
CAD$499,000
CAD$499,000 Asking price
2709 Francis STREETRegina, Saskatchewan, S4N2R4
Delisted · Delisted ·
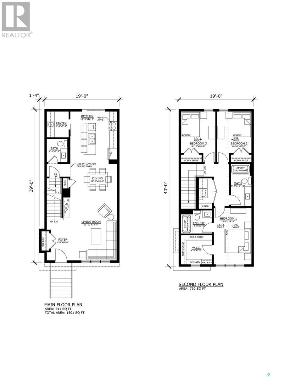
33| 1501 sqft
Listing information last updated on Sat Dec 30 2023 15:13:39 GMT-0500 (Eastern Standard Time)

Open Map
Log in to view more information
Go To LoginSummary
IDSK924911
StatusDelisted
Ownership TypeFreehold
Brokered ByRoyal LePage Next Level
TypeResidential House
AgeConstructed Date: 2023
Land Size3125 sqft
Square Footage1501 sqft
RoomsBed:3,Bath:3
Detail
Building
Bathroom Total3
Bedrooms Total3
AppliancesRefrigerator,Dishwasher,Stove
Architectural Style2 Level
Constructed Date2023
Fireplace PresentFalse
Heating FuelNatural gas
Heating TypeForced air
Size Interior1501 sqft
Stories Total2
TypeHouse
Land
Size Total3125 sqft
Size Total Text3125 sqft
Acreagefalse
Size Irregular3125.00
FireplaceFalse
HeatingForced air
Remarks
Welcome to 2709 Francis Street! This future build is located in beautiful neighbourhood of Arnhem Place, across the street from Queen Elizabeth park, local schools, walking paths, and easy access to downtown, shopping and amenities! This gorgeous home will feature large front windows flooding the home with natural light. Upstairs gives you 3 spacious bedrooms, a 4-piece bath, and a 4-piece en-suite. Final cabinet designs, countertops, and flooring can be selected by the buyers. **GST & PST are included in the price** BUILT BY UNCOMMON DEVELOPMENTS! Progressive home warranty included. Don't miss out on this unique home today, it won't last long! (id:22211)
The listing data above is provided under copyright by the Canada Real Estate Association.
The listing data is deemed reliable but is not guaranteed accurate by Canada Real Estate Association nor RealMaster.
MLS®, REALTOR® & associated logos are trademarks of The Canadian Real Estate Association.
Location
Province:
Saskatchewan
City:
Regina
Community:
Arnhem Place
Room
Room
Level
Length
Width
Area
4pc Bathroom
Second
NaN
Measurements not available
Bedroom
Second
10.66
8.83
94.10
10 ft ,8 in x 8 ft ,10 in
Bedroom
Second
10.66
8.83
94.10
10 ft ,8 in x 8 ft ,10 in
Laundry
Second
NaN
Measurements not available
Primary Bedroom
Second
14.50
9.68
140.35
14 ft ,6 in x 9 ft ,8 in
4pc Ensuite bath
Second
NaN
Measurements not available
Foyer
Main
10.33
6.00
62.05
10 ft ,4 in x 6 ft
Living
Main
15.68
13.85
217.13
15 ft ,8 in x 13 ft ,10 in
Dining
Main
10.01
12.17
121.80
10 ft x 12 ft ,2 in
Kitchen
Main
12.34
12.01
148.13
12 ft ,4 in x 12 ft
2pc Bathroom
Main
NaN
Measurements not available



