- Saskatchewan
- Regina
2217 Wascana St
CAD$524,900
CAD$524,900 Asking price
2217 Wascana STREETRegina, Saskatchewan, S4T4K3
Delisted
54| 1458 sqft
Listing information last updated on Fri Mar 01 2024 15:04:14 GMT-0500 (Eastern Standard Time)

Open Map
Log in to view more information
Go To LoginSummary
IDSK941975
StatusDelisted
Ownership TypeFreehold
Brokered ByRealtyone Real Estate Services Inc.
TypeResidential House
AgeConstructed Date: 2015
Land Size3142 sqft
Square Footage1458 sqft
RoomsBed:5,Bath:4
Detail
Building
Bathroom Total4
Bedrooms Total5
AppliancesWasher,Refrigerator,Dishwasher,Dryer,Stove
Architectural Style2 Level
Constructed Date2015
Cooling TypeCentral air conditioning
Fireplace PresentFalse
Heating FuelNatural gas
Heating TypeForced air
Size Interior1458 sqft
Stories Total2
TypeHouse
Land
Size Total3142 sqft
Size Total Text3142 sqft
Acreagefalse
Fence TypePartially fenced
Size Irregular3142.00
Parking Pad
None
Parking Space(s)
Other
FeaturesRectangular
FireplaceFalse
HeatingForced air
Remarks
Exceptional Modern/Contemporary Cathedral 2 storey home. 1458 sq feet with 2 bedroom basement suite designed with the option of opening up access from the basement to the main floor. The main floor is an open concept living room/kitchen/dining area with 1/2 bath and utility room. The 2nd storey features 3 bedrooms/2 baths and laundry and the basement suite has separate entry, good sized living room/kitchen with 2 bedrooms, bath and laundry/utility room. Multiple features and upgrades include acrylic stucco, cedar pillars, black modern windows, composite deck-stairs and landing, synthetic lawn front & back, large walk-in closet in the master bedroom, separate mechanicals/utilities, concrete parking pad for a double garage, all appliances included, central a/c and much more. Call Rob for showings (id:22211)
The listing data above is provided under copyright by the Canada Real Estate Association.
The listing data is deemed reliable but is not guaranteed accurate by Canada Real Estate Association nor RealMaster.
MLS®, REALTOR® & associated logos are trademarks of The Canadian Real Estate Association.
Location
Province:
Saskatchewan
City:
Regina
Community:
Cathedral Rg
Room
Room
Level
Length
Width
Area
Laundry
Second
NaN
Measurements not available
3pc Ensuite bath
Second
NaN
Measurements not available
4pc Bathroom
Second
NaN
Measurements not available
Bedroom
Second
12.01
8.60
103.22
12 ft x 8 ft ,7 in
Bedroom
Second
12.34
8.60
106.04
12 ft ,4 in x 8 ft ,7 in
Primary Bedroom
Second
12.99
12.01
156.01
13 ft x 12 ft
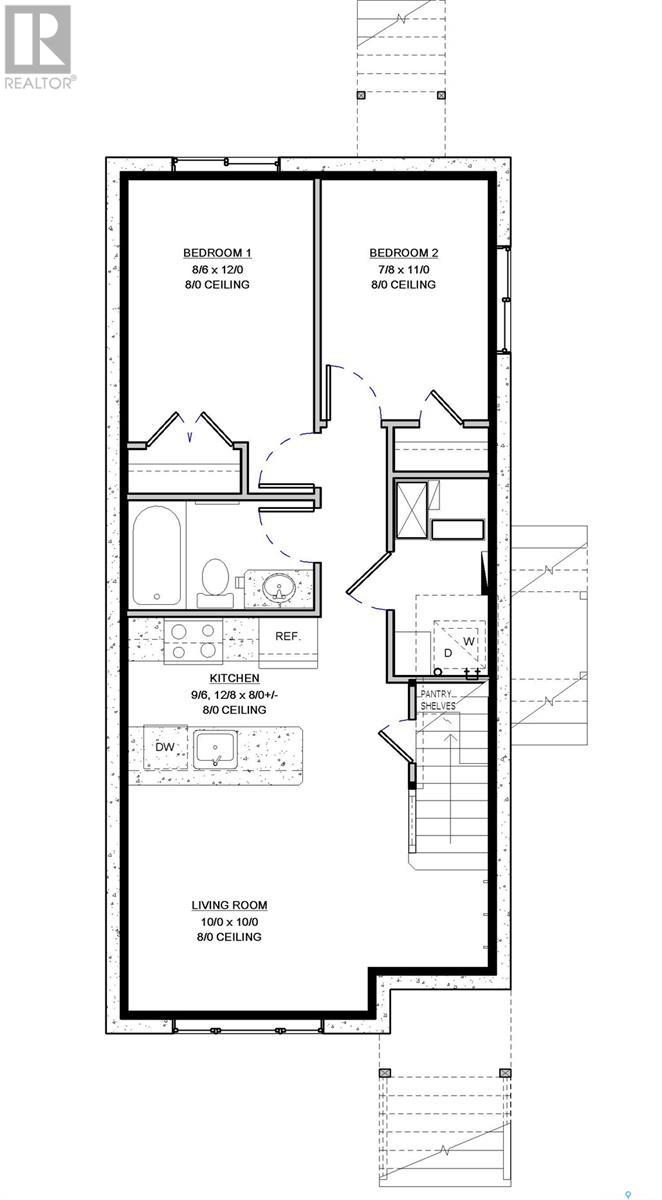
Laundry
Bsmt
NaN
Measurements not available
4pc Bathroom
Bsmt
NaN
Measurements not available
Bedroom
Bsmt
10.99
7.68
84.38
11 ft x 7 ft ,8 in
Bedroom
Bsmt
12.01
8.50
102.04
12 ft x 8 ft ,6 in
Kitchen
Bsmt
12.66
9.51
120.49
12 ft ,8 in x 9 ft ,6 in
Living
Bsmt
10.01
10.01
100.13
10 ft x 10 ft
Utility
Main
NaN
Measurements not available
3pc Bathroom
Main
NaN
Measurements not available
Dining
Main
9.32
10.99
102.41
9 ft ,4 in x 11 ft
Kitchen
Main
14.17
11.68
165.54
14 ft ,2 in x 11 ft ,8 in
Living
Main
15.49
13.16
203.73
15 ft ,6 in x 13 ft ,2 in





















