- British Columbia
- Penticton
2554 South Main St
CAD$619,900
CAD$619,900 Asking price
2554 South Main StreetPenticton, British Columbia, V2A5J3
Delisted · Delisted ·
425| 4104 sqft
Listing information last updated on Tue Apr 09 2024 08:33:36 GMT-0400 (Eastern Daylight Time)

Open Map
Log in to view more information
Go To LoginSummary
ID10306499
StatusDelisted
Ownership TypeFreehold
Brokered ByRE/MAX Wine Capital Realty
TypeResidential House,Detached
AgeConstructed Date: 1980
Land Size0.19 ac|under 1 acre
Square Footage4104 sqft
RoomsBed:4,Bath:2
Virtual Tour
Detail
Building
Bathroom Total2
Bedrooms Total4
AppliancesRefrigerator,Dishwasher,Dryer,Range - Electric,Washer
Architectural StyleSplit level entry
Basement TypeFull
Constructed Date1980
Construction Style AttachmentDetached
Construction Style Split LevelOther
Cooling TypeWall unit
Exterior FinishAluminum,Brick
Fireplace FuelWood
Fireplace PresentTrue
Fireplace TypeUnknown
Half Bath Total0
Heating FuelElectric
Heating TypeBaseboard heaters,See remarks
Roof MaterialAsphalt shingle
Roof StyleUnknown
Size Interior4104 sqft
Stories Total4
TypeHouse
Utility WaterMunicipal water
Land
Size Total0.19 ac|under 1 acre
Size Total Text0.19 ac|under 1 acre
Acreagefalse
AmenitiesPublic Transit,Park,Recreation,Schools,Shopping
Landscape FeaturesLandscaped
SewerMunicipal sewage system
Size Irregular0.19
Surrounding
Ammenities Near ByPublic Transit,Park,Recreation,Schools,Shopping
Community FeaturesMobiles Allowed
View TypeMountain view
Zoning TypeUnknown
Other
FeaturesCorner Site
BasementFull
FireplaceTrue
HeatingBaseboard heaters,See remarks
Remarks
Contingent. Welcome to this captivating home nestled on a generous corner lot. This family home is a harmonious blend of comfort and convenience. This split-level home unfolds over four levels, providing ample space and privacy for a growing family or working from home. The residence boasts a thoughtfully designed floor plan, featuring a primary and spare bedroom on the upper level and two additional bedrooms on the lower level. The heart of the home is the large open kitchen, complemented by generous rooms throughout. There is a separate outside entry to the lowest level of this home, providing easy access to the storage space. The property includes an attached single-car garage with built-ins for extra storage and four open parking spots at the back. Additional highlights include a cozy wood fireplace in the living room, air conditioning for year-round comfort, five appliances that enhance daily convenience and a newer roof. The dining room opens to a covered patio at the back of the home, perfect for a morning cup of coffee or simply enjoying the outdoors. There is also mature landscaping and mountain views. It is in a convenient area with transit options right across the street. Schools, shopping centers like Walmart Supercentre and Cherry Lane Shopping Mall, Lions Community Park, and various restaurants and amenities are within walking distance. This is a good, solid, well-kept home that is move-in ready or ready for your modern touches. (id:22211)
The listing data above is provided under copyright by the Canada Real Estate Association.
The listing data is deemed reliable but is not guaranteed accurate by Canada Real Estate Association nor RealMaster.
MLS®, REALTOR® & associated logos are trademarks of The Canadian Real Estate Association.
Location
Province:
British Columbia
City:
Penticton
Community:
Main South
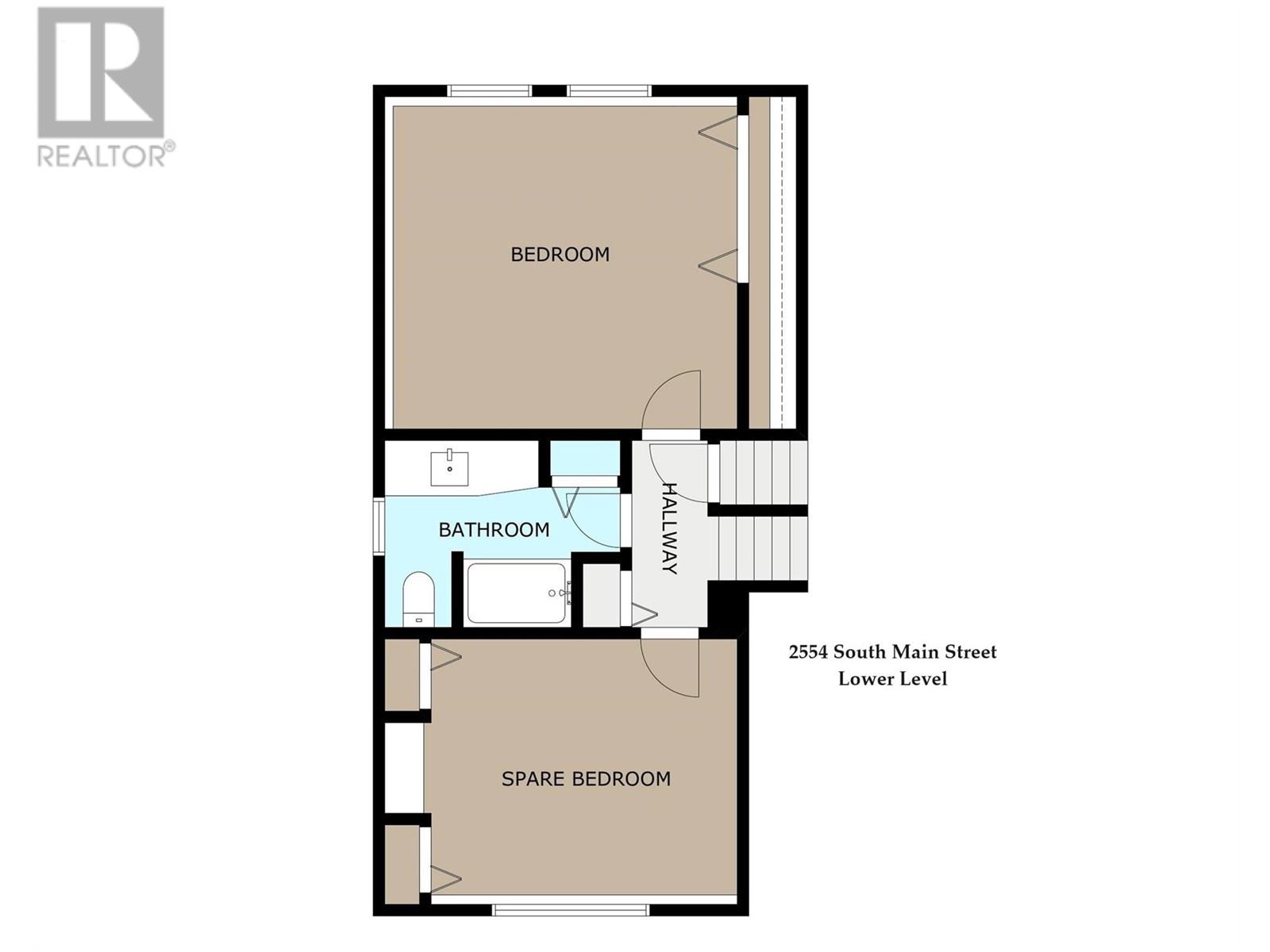
Room
Room
Level
Length
Width
Area
4pc Bathroom
Second
NaN
Measurements not available
Primary Bedroom
Second
15.42
10.93
168.47
15'5'' x 10'11''
Bedroom
Second
12.34
11.25
138.82
12'4'' x 11'3''
Storage
Bsmt
10.40
6.82
70.97
10'5'' x 6'10''
Laundry
Bsmt
13.32
9.68
128.92
13'4'' x 9'8''
Family
Bsmt
21.16
10.93
231.19
21'2'' x 10'11''
Bedroom
Lower
14.76
9.25
136.59
14'9'' x 9'3''
4pc Bathroom
Lower
NaN
Measurements not available
Bedroom
Lower
11.58
10.40
120.45
11'7'' x 10'5''
Foyer
Main
11.75
4.59
53.95
11'9'' x 4'7''
Kitchen
Main
13.09
11.15
146.02
13'1'' x 11'2''
Dining
Main
11.52
8.23
94.83
11'6'' x 8'3''
Living
Main
16.83
11.42
192.16
16'10'' x 11'5''































