- Ontario
- Parry Sound
89 Mclennan Lane
CAD$1,599,000
CAD$1,599,000 Asking price
89 MCLENNAN LaneParry Sound, Ontario, P0A1G0
Delisted · Delisted ·
325| 2290 sqft
Listing information last updated on Mon Jan 01 2024 12:59:33 GMT-0500 (Eastern Standard Time)

Open Map
Log in to view more information
Go To LoginSummary
ID40487372
StatusDelisted
Ownership TypeFreehold
Brokered ByRe/Max Parry Sound Muskoka Realty Ltd., Brokerage, Parry Sound
TypeResidential House,Detached,Bungalow
AgeConstructed Date: 2015
Lot Size1.54 * 1 ac 1.54
Land Size1.54 ac|1/2 - 1.99 acres
Square Footage2290 sqft
RoomsBed:3,Bath:2
Virtual Tour
Detail
Building
Bathroom Total2
Bedrooms Total3
Bedrooms Above Ground3
AppliancesDishwasher,Dryer,Refrigerator,Stove,Washer
Architectural StyleBungalow
Basement DevelopmentUnfinished
Basement TypeCrawl space (Unfinished)
Constructed Date2015
Construction Style AttachmentDetached
Cooling TypeCentral air conditioning
Exterior FinishSee Remarks
Fireplace PresentFalse
FixtureCeiling fans
Heating FuelPropane
Heating TypeForced air,Radiant heat,Heat Pump
Size Interior2290.0000
Stories Total1
TypeHouse
Utility WaterDrilled Well
Land
Size Total1.54 ac|1/2 - 1.99 acres
Size Total Text1.54 ac|1/2 - 1.99 acres
Access TypeRoad access
Acreagetrue
AmenitiesGolf Nearby,Hospital,Marina,Ski area
SewerSeptic System
Size Irregular1.54
Surface WaterLake
Utilities
ElectricityAvailable
Surrounding
Ammenities Near ByGolf Nearby,Hospital,Marina,Ski area
Community FeaturesQuiet Area
Location DescriptionHwy 400 to Hwy 124 to Bunny Trail,Right on Hwy 520,left on Auld's Road,right on McLennan Lane
Zoning DescriptionWF
Other
FeaturesCountry residential
BasementUnfinished,Crawl space (Unfinished)
FireplaceFalse
HeatingForced air,Radiant heat,Heat Pump
Remarks
371 ft WATERFRONT on AMAZING WAHWASKESH LAKE! STUNNING PANORAMIC VIEWS! GORGEOUS WESTERN SUNSETS! CUSTOM BUILT LAKEHOUSE is nestled on 1.5 Acres of Privacy! Ideal lakeside getaway/home or investment property (rental opportunity)! Fully Winterized Year round 2290 sq ft ranch bungalow, EVERYTHING ON ONE FLOOR, 3 bedrooms + den/guest room, 2 baths, Principal bedroom boasts 3 pc ensuite bath, Walkout to fabulous lakeside decks, Open concept design just perfect for entertaining family & friends, Gourmet kitchen with abundance of cupboards & counter space, New Kitchenaide appliances, Vaulted ceilings, Engineered hardwood floors, Freshly painted throughout, Convenient main floor laundry, NEW HIGH EFFICIENCY FORCED AIR PROPANE/heat pump, Gentle sloping pathway down to waterfront, Enjoy deep water for docking & great swimming, Extensive docking system 24 x 12, Classic Canadian Shield granite shoreline, WAHWASHKESH is a large full service lake w/marina, boat launches, golf course + abundance of Crown Land, Great for all water activities, Miles of boating enjoyment & exploring for the day, great fishing, kayaking & canoeing, Expansive, spacious decking & covered porch area made for relaxing & entertaining, Glass railings to capture the long lake views, Drilled well, Water filtration system, Water softener, Easy care metal roof, Lots of parking for guests, boats, RVs etc., Great area for hiking, ATVing, trails & cross country skiing. Mins to Dunchurch or Parry Sound for amenities, Good access to Hwys 124 & 400 direct to the GTA, Strong rental potential, THIS LAKE HOUSE IS READY FOR YOUR ENJOYMENT on SOUGHT AFTER ‘WAHWASHKESH! (id:22211)
The listing data above is provided under copyright by the Canada Real Estate Association.
The listing data is deemed reliable but is not guaranteed accurate by Canada Real Estate Association nor RealMaster.
MLS®, REALTOR® & associated logos are trademarks of The Canadian Real Estate Association.
Location
Province:
Ontario
City:
Parry Sound
Community:
Whitestone
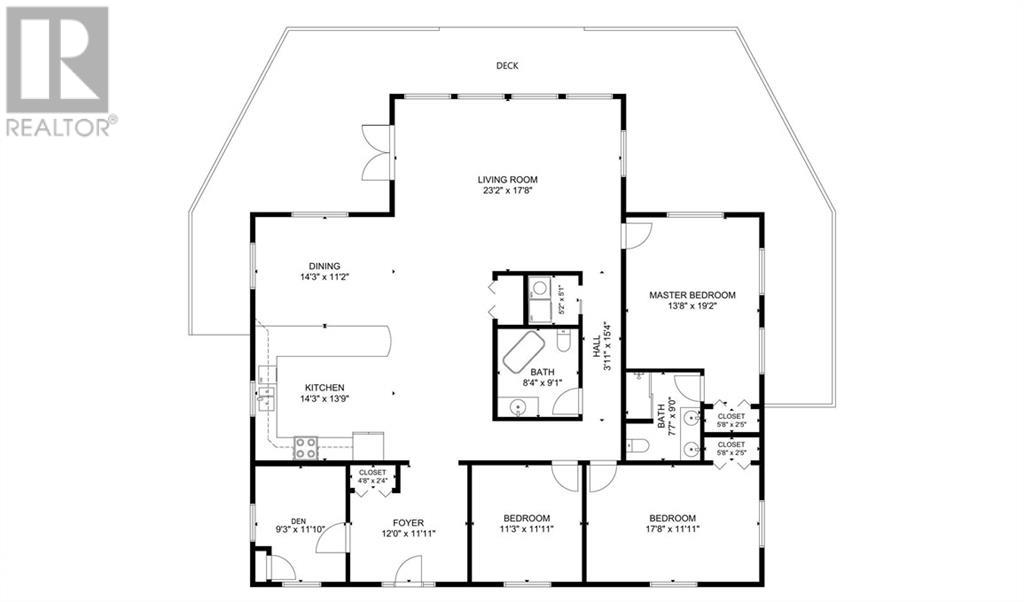
Room
Room
Level
Length
Width
Area
Laundry
Main
5.15
5.09
26.19
5'2'' x 5'1''
Bedroom
Main
17.65
11.91
210.21
17'8'' x 11'11''
Full bathroom
Main
7.58
8.99
68.13
7'7'' x 9'0''
Primary Bedroom
Main
13.68
19.16
262.13
13'8'' x 19'2''
3pc Bathroom
Main
8.33
9.09
75.73
8'4'' x 9'1''
Bedroom
Main
11.25
11.91
134.02
11'3'' x 11'11''
Den
Main
9.25
11.84
109.58
9'3'' x 11'10''
Foyer
Main
12.01
11.91
143.01
12'0'' x 11'11''
Kitchen
Main
14.24
13.75
195.74
14'3'' x 13'9''
Living
Main
23.16
17.65
408.84
23'2'' x 17'8''
Dining
Main
14.24
11.15
158.83
14'3'' x 11'2''

















































