- Ontario
- Ottawa
924 Watson St
CAD$1,299,000
CAD$1,299,000 Asking price
924 WATSON STREETOttawa, Ontario, K2B6B9
Delisted
3+244
Listing information last updated on Fri Oct 20 2023 12:59:44 GMT-0400 (Eastern Daylight Time)

Open Map
Log in to view more information
Go To LoginSummary
ID1353515
StatusDelisted
Ownership TypeFreehold
Brokered BySOTHEBY'S INTERNATIONAL REALTY CANADA
TypeResidential House,Detached
AgeConstructed Date: 1951
Lot Size61.84 * 114.34 ft 61.84 ft X 114.34 ft
Land Size61.84 ft X 114.34 ft
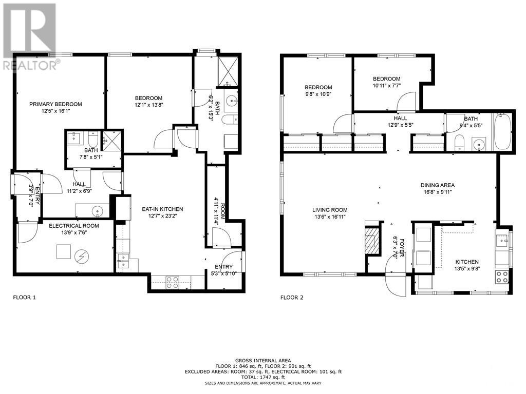
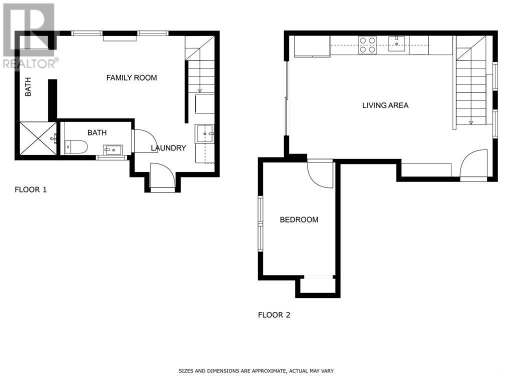
RoomsBed:3+2,Bath:4
Virtual Tour
Detail
Building
Bathroom Total4
Bedrooms Total5
Bedrooms Above Ground3
Bedrooms Below Ground2
AmenitiesFurnished
AppliancesRefrigerator,Oven - Built-In,Dishwasher,Hood Fan,Microwave,Stove,Washer
Basement DevelopmentFinished
Basement TypeFull (Finished)
Constructed Date1951
Construction MaterialPoured concrete
Construction Style AttachmentDetached
Cooling TypeCentral air conditioning
Exterior FinishConcrete
Fireplace PresentTrue
Fireplace Total1
Flooring TypeHardwood,Laminate,Ceramic
Foundation TypePoured Concrete
Half Bath Total0
Heating FuelNatural gas
Heating TypeForced air
TypeHouse
Utility WaterMunicipal water
Land
Size Total Text61.84 ft X 114.34 ft
Acreagefalse
AmenitiesShopping
SewerMunicipal sewage system
Size Irregular61.84 ft X 114.34 ft
Surrounding
Ammenities Near ByShopping
Zoning DescriptionR2G
Other
Communication TypeCable Internet access
BasementFinished,Full (Finished)
FireplaceTrue
HeatingForced air
Remarks
Beautiful professionally renovated legal furnished or unfurnished legal Triplex. Min to IKEA, 417 and transit. 2 x two beds units, 1 x one bed. Great cashflow with long or short term rental possibilities 6.1% Cap Rate. Live in one and/or pay the mortgage with other units. All indoor and outdoor furnishings, artwork, lighting, kitchenware, bedding included for complete turnkey operation. All units come with new top of the line appliances, dishwashers, and separate washer/dryers. In addition 2 storage outbuildings on a large 112’ x 61’ manicured private yard. Units have been short and long term rentals from $3,000 monthly and $200 daily. Fire Retrofit 2022, Great location and rents easily. All units can be adjoined for larger single family. Lower unit can be separated into 2 x 1 bed units or owners suite if all units rented. Such a unique property with so so many possibilities. Note: 3rd Unit Tenant occupied and not represented in photos *Partial VTB entertained (id:22211)
The listing data above is provided under copyright by the Canada Real Estate Association.
The listing data is deemed reliable but is not guaranteed accurate by Canada Real Estate Association nor RealMaster.
MLS®, REALTOR® & associated logos are trademarks of The Canadian Real Estate Association.
Location
Province:
Ontario
City:
Ottawa
Community:
Fairfield Heights
Room
Room
Level
Length
Width
Area
4pc Ensuite bath
Lower
NaN
Measurements not available
4pc Ensuite bath
Lower
NaN
Measurements not available
Bedroom
Lower
9.68
10.76
104.15
9'8" x 10'9"
Bedroom
Lower
10.93
7.58
82.80
10'11" x 7'7"
4pc Bathroom
Main
NaN
Measurements not available
Bedroom
Main
12.40
16.08
199.37
12'5" x 16'1"
Bedroom
Main
12.40
13.09
162.34
12'5" x 13'1"
4pc Bathroom
Secondary Dwelling Unit
NaN
Measurements not available
Bedroom
Secondary Dwelling Unit
12.01
12.99
156.01
12'0" x 13'0"
School Info
Private SchoolsK-8 Grades Only
Pinecrest Public School
1281 Mcwatters Rd, Ottawa1.343 km
ElementaryMiddleEnglish
9-12 Grades Only
Woodroffe High School
2410 Georgina Dr, Ottawa1.393 km
SecondaryEnglish
K-6 Grades Only
Our Lady Of Fatima Catholic Elementary School
2135 Knightsbridge Rd, Ottawa2.993 km
ElementaryEnglish
7-12 Grades Only
Notre Dame High School
710 Broadview Ave, Ottawa3.968 km
MiddleSecondaryEnglish
K-6 Grades Only
Severn Avenue Public School
2553 Severn Ave, Ottawa0.894 km
ElementaryFrench Immersion Program
7-8 Grades Only
Woodroffe Avenue Public School
235 Woodroffe Ave, Ottawa2.779 km
MiddleFrench Immersion Program
Book Viewing
Your feedback has been submitted.
Submission Failed! Please check your input and try again or contact us


























