- British Columbia
- Nanaimo
5525 Godfrey Rd
CAD$559,900
CAD$559,900 Asking price
5525 Godfrey RdNanaimo, British Columbia, V9T2J4
Delisted · Delisted ·
213| 1198 sqft
Listing information last updated on Fri Oct 20 2023 08:50:21 GMT-0400 (Eastern Daylight Time)

Open Map
Log in to view more information
Go To LoginSummary
ID943922
StatusDelisted
Ownership TypeFreehold
Brokered By460 Realty Inc. (NA)
TypeResidential House
AgeConstructed Date: 1981
Land Size7500 sqft
Square Footage1198 sqft
RoomsBed:2,Bath:1
Detail
Building
Bathroom Total1
Bedrooms Total2
Constructed Date1981
Cooling TypeNone
Fireplace PresentTrue
Fireplace Total1
Heating FuelElectric,Wood
Heating TypeBaseboard heaters
Size Interior1198 sqft
Total Finished Area1198 sqft
TypeHouse
Land
Size Total7500 sqft
Size Total Text7500 sqft
Acreagefalse
Size Irregular7500
Surrounding
Zoning TypeResidential
Other
FeaturesCentral location,Level lot,Other
FireplaceTrue
HeatingBaseboard heaters
Remarks
This 1200 square foot rancher is only a 2 minute drive to the to Brannen Lake boat launch and picnic area! Built in 1981 and sitting on a flat and fenced 7500 sq ft lot, this home is a blank canvas awaiting your renovation ideas. The large living room features a wood burning fireplace and plenty of natural light, thanks to the oversized bay window. The kitchen and dining area keep a functional layout while the sliding patio door offers the option of extending your dining space during the warmer months. Down the hallway, you'll find a 4 piece bathroom and both bedrooms. The primary bedroom is a massive double size, with 2 closets, and could easily turn this 2 bedroom home into a 3 with a little reworking. Pleasant Valley offers easy access to the highway for the commuter, as well as short drives or walks to many of Nanaimo's outdoor attractions like the Parkway Trail, multiple lakes and swimming holes and hikes to places like Ammonite Falls. All msmnts approx and should be verified. (id:22211)
The listing data above is provided under copyright by the Canada Real Estate Association.
The listing data is deemed reliable but is not guaranteed accurate by Canada Real Estate Association nor RealMaster.
MLS®, REALTOR® & associated logos are trademarks of The Canadian Real Estate Association.
Location
Province:
British Columbia
City:
Nanaimo
Community:
Pleasant Valley
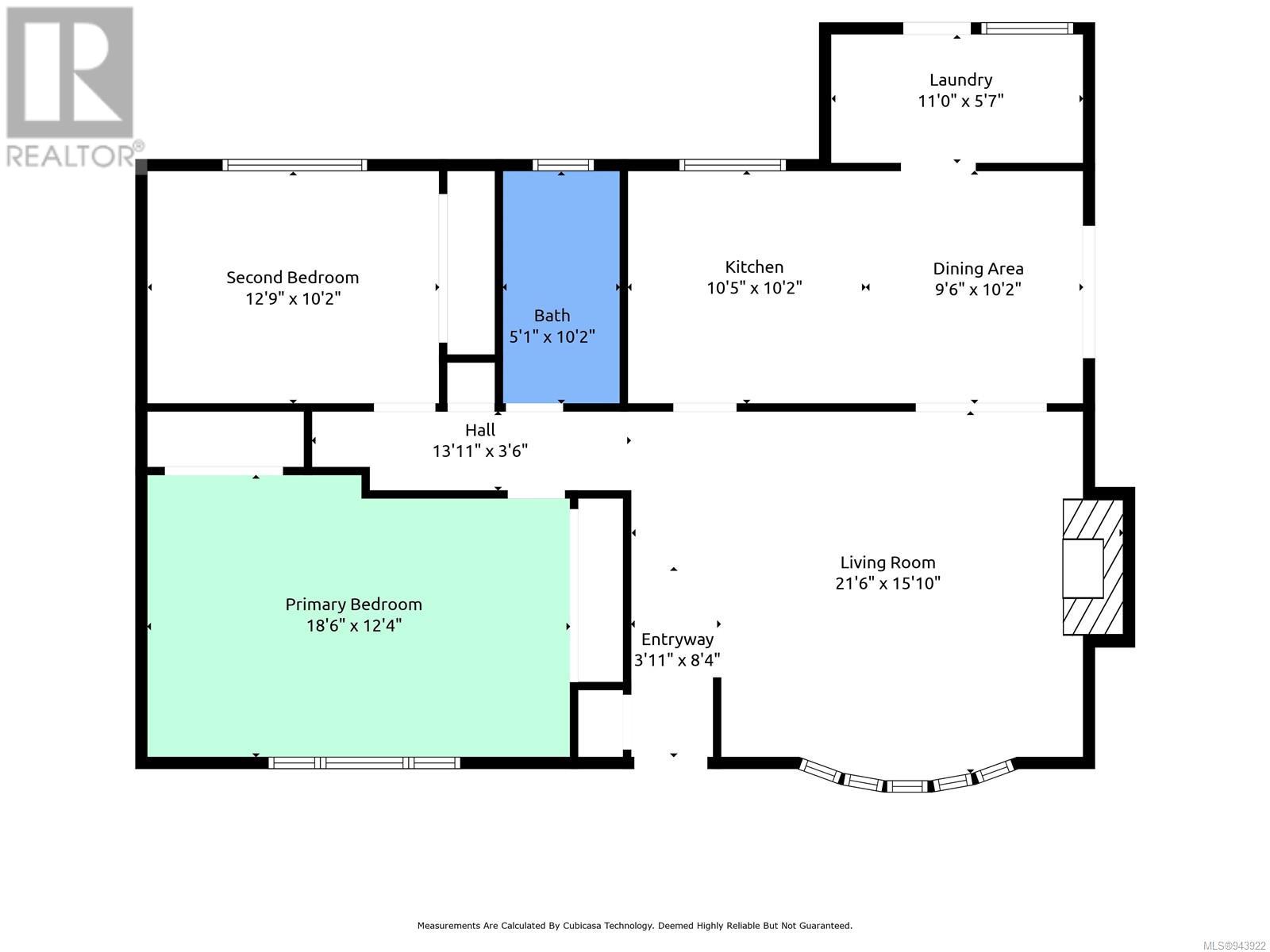
Room
Room
Level
Length
Width
Area
Laundry
Main
11.84
5.58
66.06
11'10 x 5'7
Bathroom
Main
NaN
4-Piece
Bedroom
Main
12.76
10.17
129.80
12'9 x 10'2
Primary Bedroom
Main
18.50
12.34
228.26
18'6 x 12'4
Dining
Main
9.51
10.17
96.77
9'6 x 10'2
Kitchen
Main
10.40
10.17
105.78
10'5 x 10'2
Living
Main
21.49
15.85
340.53
21'6 x 15'10
























