- British Columbia
- Nanaimo
204 5th St
CAD$659,000
CAD$659,000 Asking price
204 5th StNanaimo, British Columbia, V9R1N4
Delisted · Delisted ·
424| 2514 sqft
Listing information last updated on Wed Dec 13 2023 08:40:37 GMT-0500 (Eastern Standard Time)

Open Map
Log in to view more information
Go To LoginSummary
ID948331
StatusDelisted
Ownership TypeFreehold
Brokered ByRE/MAX of Nanaimo
TypeResidential House
AgeConstructed Date: 1948
Land Size6240 sqft
Square Footage2514 sqft
RoomsBed:4,Bath:2
Detail
Building
Bathroom Total2
Bedrooms Total4
Constructed Date1948
Cooling TypeNone
Fireplace PresentFalse
Heating FuelNatural gas
Heating TypeForced air
Size Interior2514 sqft
Total Finished Area1649 sqft
TypeHouse
Land
Size Total6240 sqft
Size Total Text6240 sqft
Acreagefalse
Size Irregular6240
Surrounding
View TypeMountain view
Zoning DescriptionR1
Zoning TypeResidential
Other
FeaturesCentral location,Southern exposure,Other
FireplaceFalse
HeatingForced air
Remarks
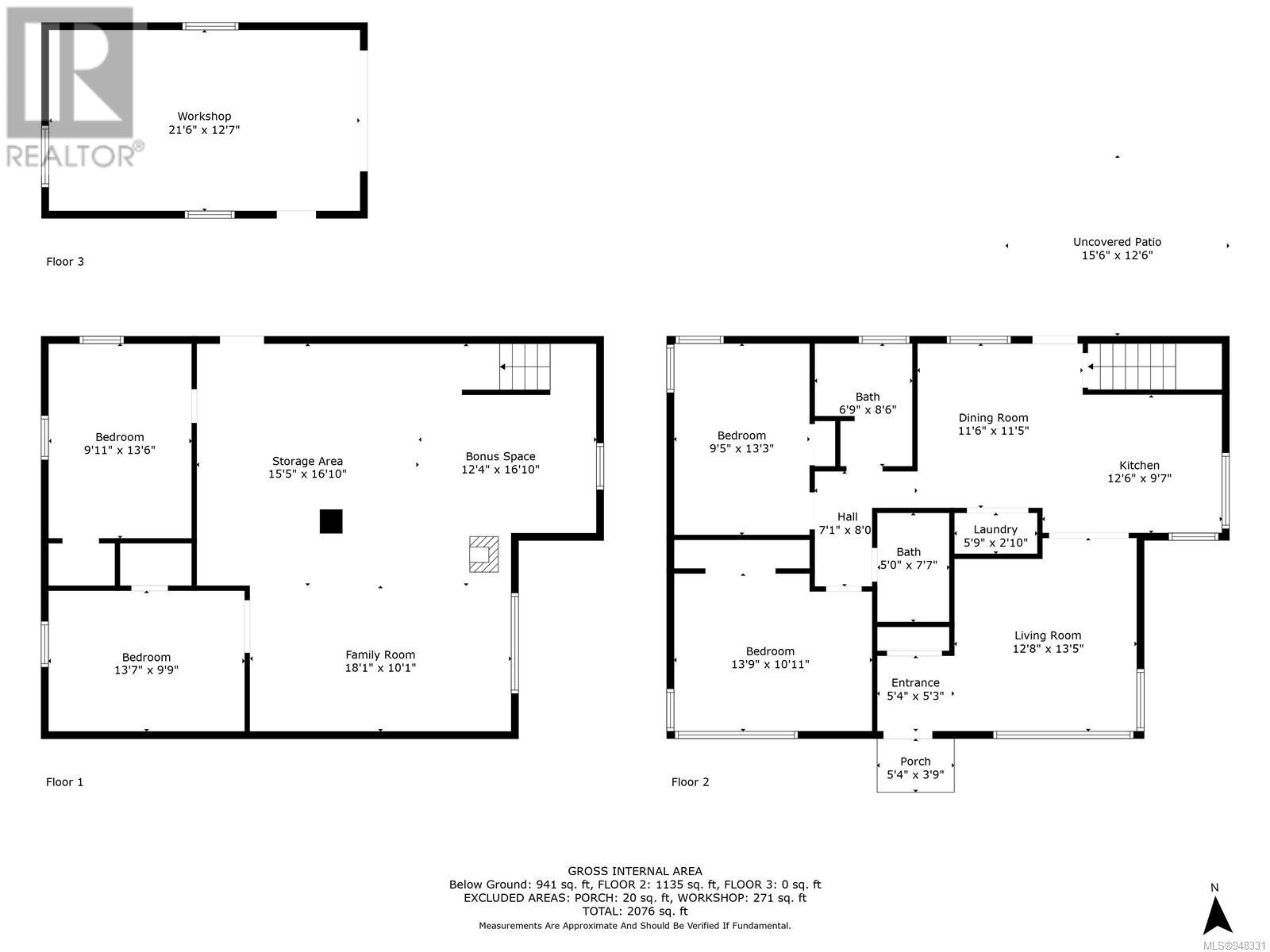
This stunning gem in the heart of Nanaimo's University District has so much to offer! Recently renovated throughout and gives way to the perfect space. The 1200 sqft main level living features 2 large bedrooms and 2 tasteful bathrooms, a cozy yet spacious living space and a spectacular kitchen, complete with quartz countertops, stainless appliances and stunning cabinetry. Take note of the ample light allocated throughout by the new vinyl windows as well and the beautiful flooring throughout. Behind the scenes, all new electrical, pluming and insulation. Downstairs you will find a tasteful finish that provides an inviting family space and gives way to ample storage and 2 unfinished bedrooms. Fully fenced and gated back yard leads you to a revitalized workshop/garage and lane access. This home is a moments walk to shopping and dining at University village and as well as VIU and all levels of schools. Priced to sell, this home is waiting for you! Measurements approx, verify if important. (id:22211)
The listing data above is provided under copyright by the Canada Real Estate Association.
The listing data is deemed reliable but is not guaranteed accurate by Canada Real Estate Association nor RealMaster.
MLS®, REALTOR® & associated logos are trademarks of The Canadian Real Estate Association.
Location
Province:
British Columbia
City:
Nanaimo
Community:
University District
Room
Room
Level
Length
Width
Area
Bonus
Lower
12.34
16.83
207.62
12'4 x 16'10
Storage
Lower
15.42
16.83
259.53
15'5 x 16'10
Family
Lower
18.08
10.07
182.08
18'1 x 10'1
Bedroom
Lower
13.58
9.91
134.58
13'7 x 9'11
Bedroom
Lower
13.48
9.91
133.60
13'6 x 9'11
Primary Bedroom
Main
13.75
10.93
150.19
13'9 x 10'11
Living
Main
13.42
12.66
169.93
13'5 x 12'8
Kitchen
Main
12.50
9.58
119.75
12'6 x 9'7
Entrance
Main
5.35
5.25
28.07
5'4 x 5'3
Dining
Main
11.52
11.42
131.48
11'6 x 11'5
Bedroom
Main
13.25
9.42
124.81
13'3 x 9'5
Bathroom
Main
NaN
3-Piece
Bathroom
Main
NaN
4-Piece
Workshop
Other
21.49
12.60
270.73
21'6 x 12'7




































