SoldCAD$x,xxx,xxx
CAD$1,050,000 Asking price
127 Yale LaneMarkham, Ontario, L6B1G4
Sold
3+142(2)
Listing information last updated on Fri Feb 09 2024 08:32:25 GMT-0500 (Eastern Standard Time)

Open Map
Summary
IDN7264388
StatusSold
Ownership TypeFreehold
PossessionTBA
Brokered ByRIGHT AT HOME REALTY
TypeResidential Townhouse,Attached
Age
Lot Size19.65 * 101.71 Feet
Land Size1998.6 ft²
RoomsBed:3+1,Kitchen:1,Bath:4
Parking2 (2) Detached
Detail
Building
Bathroom Total4
Bedrooms Total4
Bedrooms Above Ground3
Bedrooms Below Ground1
Basement DevelopmentFinished
Basement TypeN/A (Finished)
Construction Style AttachmentAttached
Cooling TypeCentral air conditioning
Exterior FinishStone,Vinyl siding
Fireplace PresentFalse
Heating FuelNatural gas
Heating TypeForced air
Size Interior
Stories Total2
TypeRow / Townhouse
Architectural Style2-Storey
Rooms Above Grade7
Heat SourceGas
Heat TypeForced Air
WaterMunicipal
Land
Size Total Text19.65 x 101.71 FT
Acreagefalse
Size Irregular19.65 x 101.71 FT
Parking
Parking FeaturesLane
Other
FeaturesLane
Den FamilyroomYes
Internet Entire Listing DisplayYes
SewerSewer
BasementFinished
PoolNone
FireplaceN
A/CCentral Air
HeatingForced Air
ExposureE
Remarks
Spacious Freehold Townhouse With 3 Bedrooms, Finished Basement And Detached Garage That Fits Two Cars. 9 Ft Ceilings On Main Level. Hardwood Floors. Finished Basement With 3 Piece Bathroom. Great Mature Neighborhood. Eat-In Breakfast Area. Family Room. Walk-in Closet In Main Bedroom. Don't Miss This Great Opportunity!
Open MapLocation
Community:
Cornell 09.03.0320
Crossroad:
Ninth Line/16th Ave
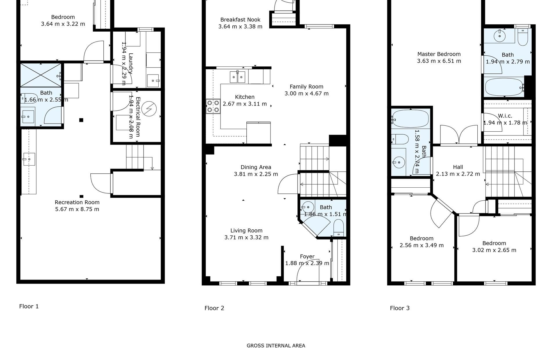
Room
Kitchen
Ground
2.02
2.03
4.10
6.63
6.66
44.14
Breakfast
Ground
3.36
2.76
9.27
11.02
9.06
99.82
Living Room
Ground
5.55
3.12
17.32
18.21
10.24
186.39
Dining Room
Ground
5.55
3.12
17.32
18.21
10.24
186.39
Family Room
Ground
4.63
3.11
14.40
15.19
10.20
154.99
Bedroom
Second
6.53
3.83
25.01
21.42
12.57
269.20
Bedroom 2
Second
3.56
2.58
9.18
11.68
8.46
98.86
Bedroom 3
Second
2.67
3.07
8.20
8.76
10.07
88.23
Recreation
Basement
6.22
5.47
34.02
20.41
17.95
366.22
Bedroom
Basement
3.11
3.46
10.76
10.20
11.35
115.83
School Info
Private SchoolsK-8 Grades Only
Little Rouge Public School
571 Country Glen Rd, Markham0.402 km
ElementaryMiddleEnglish
1639/2994 | 5.5
RM Ranking/G3
843/2819 | 6.5
RM Ranking/G6
9-12 Grades Only
Bill Hogarth Secondary School
100 Donald Sim Ave, Markham1.369 km
SecondaryEnglish
K-8 Grades Only
St. Kateri Tekakwitha Catholic Elementary School
230 Fincham Ave, Markham1.184 km
ElementaryMiddleEnglish
212/2994 | 8.1
RM Ranking/G3
430/2819 | 7.2
RM Ranking/G6
9-12 Grades Only
St. Brother Andre Catholic High School
6160 16th Ave E, Markham1.7 km
SecondaryEnglish
9-12 Grades Only
Milliken Mills High School
7522 Kennedy Rd, Markham8.525 km
Secondary
9-12 Grades Only
Unionville High School
201 Town Centre Blvd, Markham9.154 km
Secondary
1-2 Grades Only
Fred Varley Public School
81 Alexander Lawrie Ave, Markham3.79 km
ElementaryFrench Immersion Program
707/2994 | 6.9
RM Ranking/G3
436/2819 | 7.2
RM Ranking/G6
3-8 Grades Only
Sam Chapman Public School
270 Alfred Paterson Dr, Markham1.413 km
ElementaryMiddleFrench Immersion Program
N/A/2994 | 2.7
RM Ranking/G3
146/2819 | 8.1
RM Ranking/G6
9-12 Grades Only
Bill Hogarth Secondary School
100 Donald Sim Ave, Markham1.369 km
SecondaryFrench Immersion Program
5-8 Grades Only
St. Justin Martyr Catholic Elementary School
140 Hollingham Rd, Markham9.035 km
ElementaryMiddle
20/2994 | 9.4
RM Ranking/G3
9/2819 | 9.4
RM Ranking/G6
9-12 Grades Only
St. Brother Andre Catholic High School
6160 16th Ave E, Markham1.7 km
Secondary
1-8 Grades Only
St. Edward Catholic Elementary School
33 Cairns Dr, Markham3.739 km
ElementaryMiddleFrench Immersion Program
N/A/2994 | 3.4
RM Ranking/G3
597/2819 | 6.9
RM Ranking/G6
9-12 Grades Only
St. Brother Andre Catholic High School
6160 16th Ave E, Markham1.7 km
SecondaryFrench Immersion Program
%7B%22isCip%22%3Afalse%2C%22isLoggedIn%22%3Afalse%2C%22lang%22%3A%22en%22%2C%22isVipUser%22%3Afalse%2C%22webBackEnd%22%3Afalse%2C%22reqHost%22%3A%22www.realmaster.com%22%2C%22isNoteAdmin%22%3Afalse%2C%22noVerifyRobot%22%3Afalse%2C%22no3rdPartyLogin%22%3Afalse%7D
https://www.facebook.com/v4.0/dialog/oauth?client_id=357776481094717&redirect_uri=https://www.realmaster.com/oauth/facebook&scope=email&response_type=code&auth_type=rerequest&state=%2Fen%2Fmarkham-on%2F127-yale-lane%2Fcornell-TRBN7264388%3Fd%3Dhttps%253A%252F%252Fwww.realmaster.com%252Fen%252Ffor-sale%252FMarkham-ON%252FCornell
https://accounts.google.com/o/oauth2/v2/auth?access_type=offline&scope=https%3A%2F%2Fwww.googleapis.com%2Fauth%2Fuserinfo.profile%20https%3A%2F%2Fwww.googleapis.com%2Fauth%2Fuserinfo.email&response_type=code&client_id=344011320921-vh4gmos4t6rej56k2oa3brharpio1nfn.apps.googleusercontent.com&redirect_uri=https%3A%2F%2Fwww.realmaster.com%2Foauth%2Fgoogle&state=%2Fen%2Fmarkham-on%2F127-yale-lane%2Fcornell-TRBN7264388%3Fd%3Dhttps%253A%252F%252Fwww.realmaster.com%252Fen%252Ffor-sale%252FMarkham-ON%252FCornell