- British Columbia
- Lumby
1976 Mountainview Ave
CAD$724,900
CAD$724,900 Asking price
1976 Mountainview AvenueLumby, British Columbia, V0E2G0
Delisted
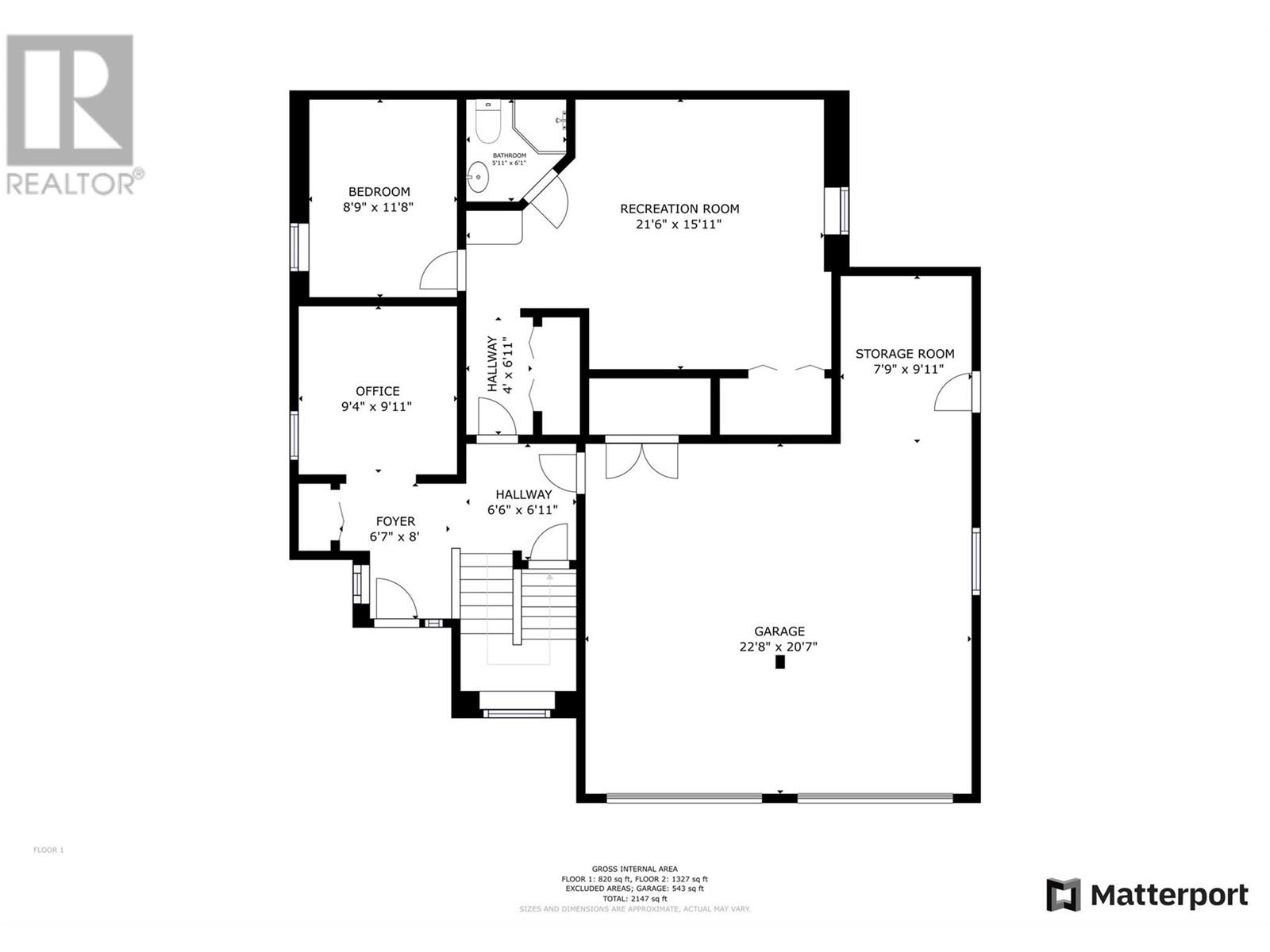
336| 2147 sqft
Listing information last updated on Sat Apr 20 2024 09:58:45 GMT-0400 (Eastern Daylight Time)

Open Map
Log in to view more information
Go To LoginSummary
ID10302554
StatusDelisted
Ownership TypeFreehold
Brokered ByCanada Flex Realty Group
TypeResidential House,Detached
AgeConstructed Date: 2003
Land Size0.15 ac|under 1 acre
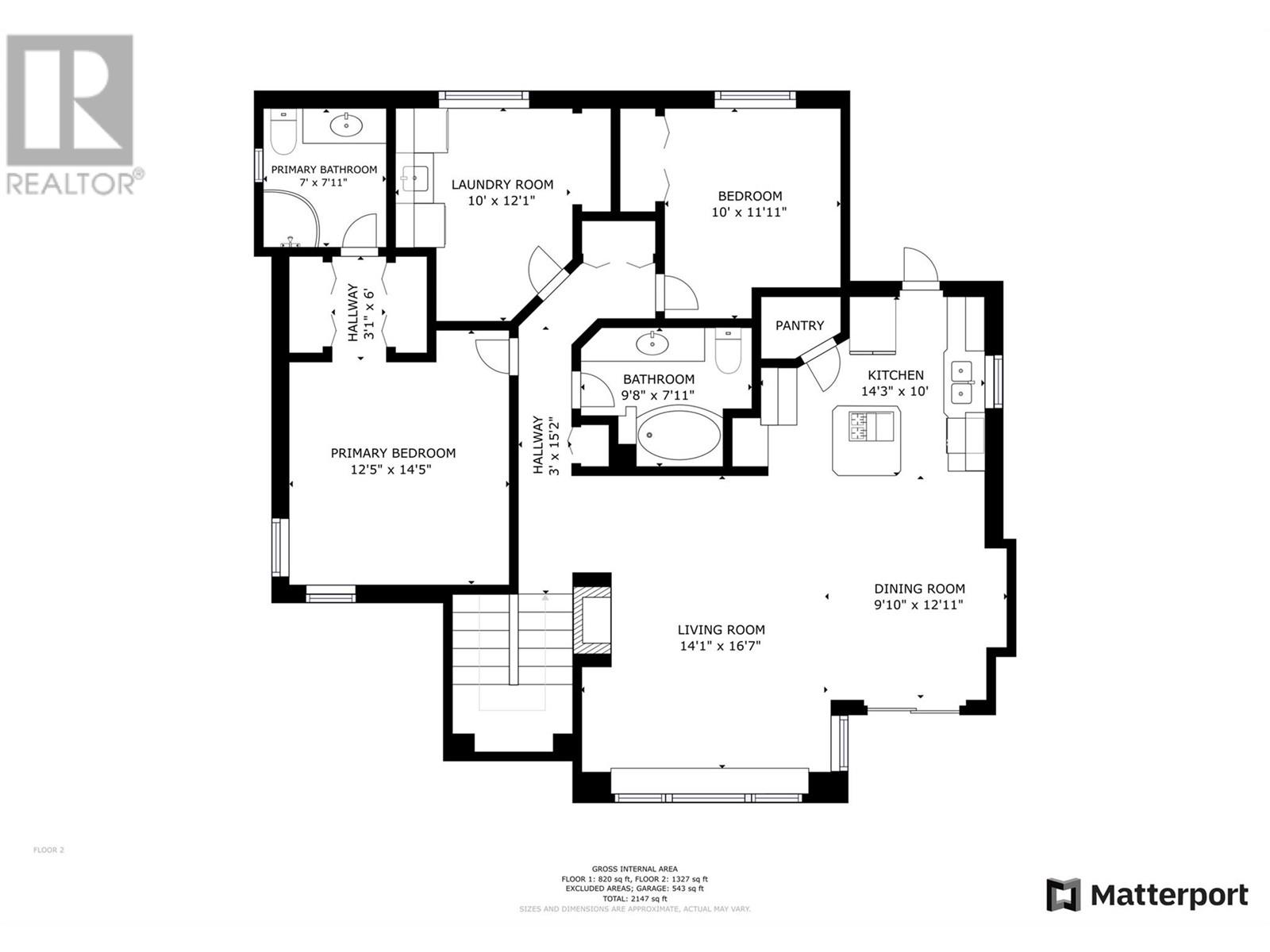
Square Footage2147 sqft
RoomsBed:3,Bath:3
Virtual Tour
Detail
Building
Bathroom Total3
Bedrooms Total3
Constructed Date2003
Construction Style AttachmentDetached
Cooling TypeCentral air conditioning
Fireplace PresentFalse
Half Bath Total0
Heating TypeForced air,See remarks
Size Interior2147 sqft
Stories Total2
TypeHouse
Utility WaterMunicipal water
Land
Size Total0.15 ac|under 1 acre
Size Total Text0.15 ac|under 1 acre
Acreagefalse
SewerMunicipal sewage system
Size Irregular0.15
Attached Garage
RV
Utilities
CableNot Available
ElectricityAvailable
Natural GasAt Lot Line
TelephoneAt Lot Line
WaterAt Lot Line
Surrounding
Zoning TypeUnknown
FireplaceFalse
HeatingForced air,See remarks
Remarks
Welcome home! Here’s your chance to own a custom-crafted home in a family-oriented subdivision in Lumby! This fabulous home, built-in 2003, is a two-story level-entry home. You’ll love the private backyard, and it's just a short walk to town! Two bedrooms and den on main level, open concept island kitchen with breakast bar, Jenn-Aire stove/barbecue, wall oven, stainless appliances & pantry. Doors lead to the large back deck and tiered backyard. There’s a beautiful storage shed out back too! The living room is bright, and takes full advantage of the beautiful views down the Lumby valley towards Camel's Hump and Kooteney's Mountains. The Master suite is large and features a beautiful ensuite bathroom, walk-in closet. There’s another bedroom for family or guests on this level, as well as a large laundry room with sewing/hobby area, perfect for your hobbies! Downstairs, you’ll love the giant Rec room, another bedroom, full bathroom, and a fabulous office that’s right off the front door/hallway, perfect for professionals working from home, complete with built-in bookshelves and a desk area! Bring all your Okanagan toys, there’s plenty of parking at this house, including an RV spot big enough for the biggest RVs, with hook ups including power & water, plus a large driveway and a big double garage with workshop area. Central A/C & Vacuum. Don’t miss out on your chance to own this beautiful, unique home, book your showing today! March 22- April 22 possession prefered. (id:22211)
The listing data above is provided under copyright by the Canada Real Estate Association.
The listing data is deemed reliable but is not guaranteed accurate by Canada Real Estate Association nor RealMaster.
MLS®, REALTOR® & associated logos are trademarks of The Canadian Real Estate Association.
Location
Province:
British Columbia
City:
Lumby
Community:
Lumby Valley
Room
Room
Level
Length
Width
Area
Full bathroom
Lower
6.00
6.00
36.05
6' x 6'
Other
Lower
22.67
20.57
466.35
22'8'' x 20'7''
Office
Lower
9.91
9.32
92.32
9'11'' x 9'4''
Bedroom
Lower
11.68
8.76
102.31
11'8'' x 8'9''
Recreation
Lower
21.49
15.91
341.94
21'6'' x 15'11''
4pc Bathroom
Main
9.68
7.91
76.53
9'8'' x 7'11''
Laundry
Main
12.07
10.01
120.81
12'1'' x 10'0''
Bedroom
Main
11.91
10.01
119.17
11'11'' x 10'0''
Full ensuite bathroom
Main
7.91
6.99
55.25
7'11'' x 7'0''
Primary Bedroom
Main
14.40
12.40
178.62
14'5'' x 12'5''
Kitchen
Main
14.24
10.01
142.48
14'3'' x 10'0''
Dining
Main
12.93
9.84
127.23
12'11'' x 9'10''
Living
Main
14.07
16.57
233.19
14'1'' x 16'7''
























































