- Ontario
- London
80 Princeton Terr
CAD$1,499,000
CAD$1,499,000 Asking price
80 PRINCETON TerraceLondon, Ontario, N6K0L4
Delisted · Delisted ·
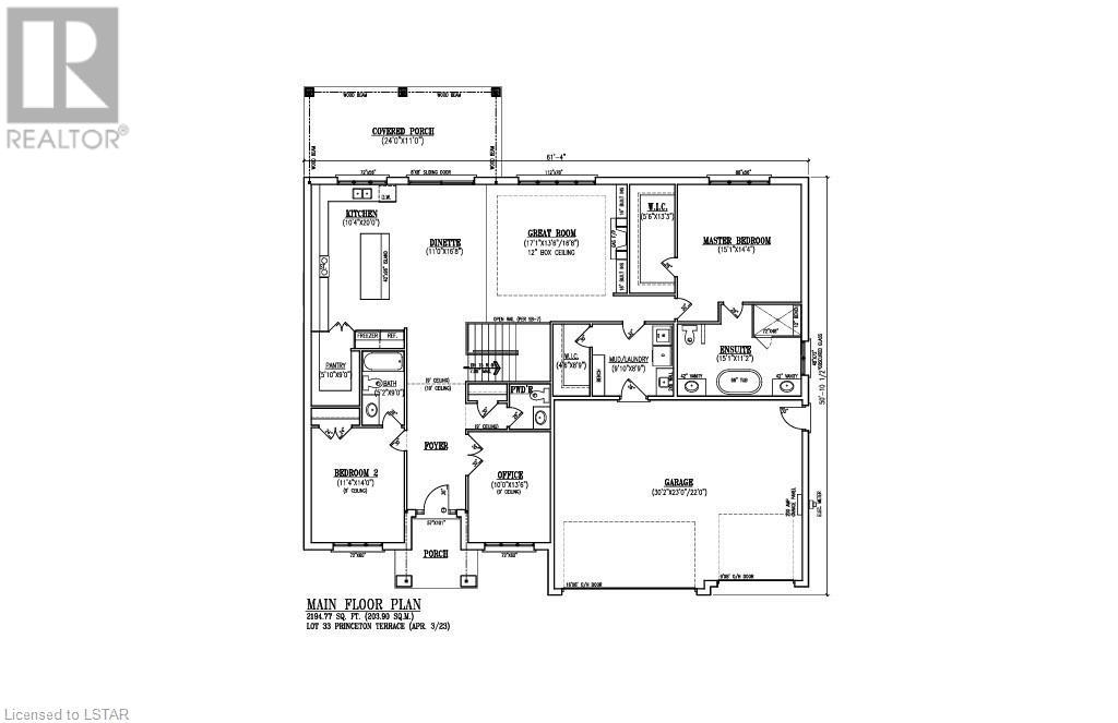
23| 2194.77 sqft
Listing information last updated on Thu Oct 26 2023 22:29:37 GMT-0400 (Eastern Daylight Time)

Open Map
Log in to view more information
Go To LoginSummary
ID40424443
StatusDelisted
Ownership TypeFreehold
Brokered ByCENTURY 21 FIRST CANADIAN CORP., BROKERAGE
TypeResidential House,Detached,Bungalow
Age
Land Sizeunder 1/2 acre
Square Footage2194.77 sqft
RoomsBed:2,Bath:3
Detail
Building
Bathroom Total3
Bedrooms Total2
Bedrooms Above Ground2
AppliancesCentral Vacuum - Roughed In,Hood Fan
Architectural StyleBungalow
Basement DevelopmentUnfinished
Basement TypeFull (Unfinished)
Construction Style AttachmentDetached
Cooling TypeCentral air conditioning
Exterior FinishStone,Stucco
Fireplace PresentTrue
Fireplace Total1
Fire ProtectionSmoke Detectors
Foundation TypePoured Concrete
Half Bath Total1
Heating FuelNatural gas
Heating TypeForced air
Size Interior2194.7700
Stories Total1
TypeHouse
Utility WaterMunicipal water
Land
Size Total Textunder 1/2 acre
Access TypeRoad access
Acreagefalse
AmenitiesGolf Nearby,Park,Schools,Shopping,Ski area
SewerMunicipal sewage system
Utilities
CableAvailable
ElectricityAvailable
Natural GasAvailable
TelephoneAvailable
Surrounding
Ammenities Near ByGolf Nearby,Park,Schools,Shopping,Ski area
Community FeaturesCommunity Centre
Location DescriptionFrom Boler Road (just North of Southdale Rd W),turn East on Manhattan Drive,turn North on Apricot Drive then turn West on Princeton Terrace.
Zoning DescriptionR1-9(8)
Other
Communication TypeFiber
FeaturesGolf course/parkland,Sump Pump,Automatic Garage Door Opener
BasementUnfinished,Full (Unfinished)
FireplaceTrue
HeatingForced air
Remarks
Welcome to Boler Heights by Castell Homes. Nestled in a unique Byron Subdivision at one of the highest elevations in London, this custom Bungalow offers a triple car garage, 2 bedrooms and 2+1 bathrooms. The open concept main floor includes a dining area, Home Office and a spacious Great Room with a fireplace and access to the back covered porch and yard. The gourmet kitchen is every home chef's dream with large center island, Walk in Pantry and Quartz counter tops. The Primary Bedroom retreat has an expansive 5 pc ensuite with soaker tub and walk in shower and a huge walk-in closet. The second Bedroom also has a convenient 4 pc ensuite. Also located on the main floor is a 2 pc powder room and a large mud/laundry room with walk-in closet and access to the garage. Boler Heights has over 3 acres of wooded area with natural ponds providing a setting that rivals the most exquisite subdivisions in London. This property is zoned for excellent schools, close to shopping, restaurants, Optimist Park and all amenities. Easy access to the 401 highway. Castell homes is a trusted Home Builder in London and area, building quality custom homes since 2009. With their excellent communication and organization, along with strong relationships with vendors, it's easy to create your dream home with Castell Homes. (id:22211)
The listing data above is provided under copyright by the Canada Real Estate Association.
The listing data is deemed reliable but is not guaranteed accurate by Canada Real Estate Association nor RealMaster.
MLS®, REALTOR® & associated logos are trademarks of The Canadian Real Estate Association.
Location
Province:
Ontario
City:
London
Community:
South K
Room
Room
Level
Length
Width
Area
2pc Bathroom
Main
NaN
Measurements not available
Full bathroom
Main
NaN
Measurements not available
4pc Bathroom
Main
NaN
Measurements not available
Pantry
Main
5.84
8.99
52.50
5'10'' x 9'0''
Mud
Main
9.84
8.76
86.22
9'10'' x 8'9''
Bedroom
Main
11.32
14.01
158.57
11'4'' x 14'0''
Primary Bedroom
Main
15.09
14.34
216.38
15'1'' x 14'4''
Great
Main
17.09
13.48
230.49
17'1'' x 13'6''
Dinette
Main
10.99
16.67
183.18
11'0'' x 16'8''
Kitchen
Main
10.33
20.01
206.83
10'4'' x 20'0''
Office
Main
10.01
13.48
134.93
10'0'' x 13'6''


