- British Columbia
- Kitimat
111 Baxter Ave
CAD$335,000
CAD$335,000 Asking price
111 BAXTER AVENUEKitimat, British Columbia, V8C2P2
Delisted
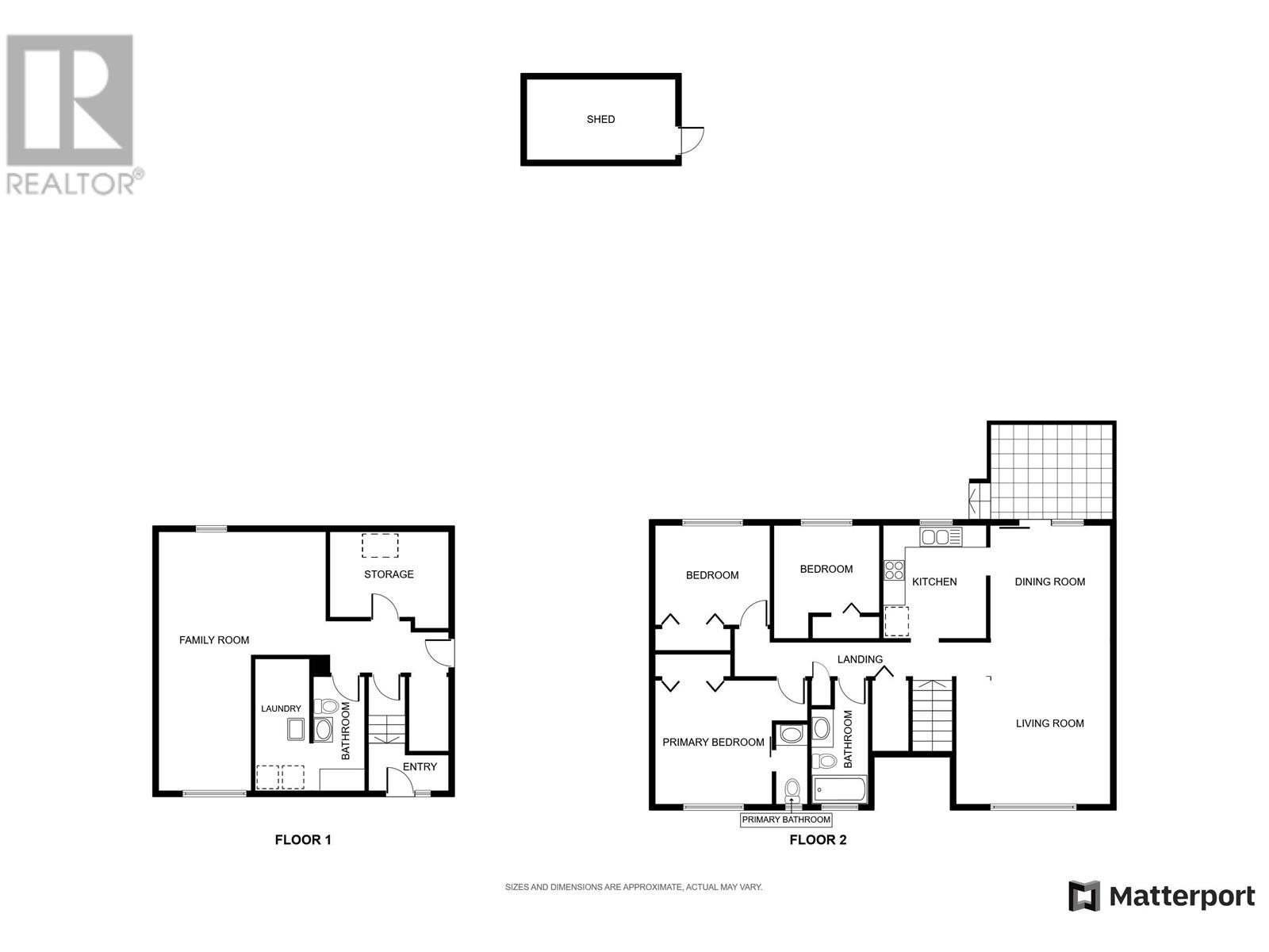
33| 1693 sqft
Listing information last updated on Fri Aug 04 2023 08:52:56 GMT-0400 (Eastern Daylight Time)

Open Map
Log in to view more information
Go To LoginSummary
IDR2779787
StatusDelisted
Ownership TypeFreehold
Brokered ByCentury 21 Northwest Realty Ltd.
TypeResidential House,Detached
AgeConstructed Date: 1980
Land Size6973 sqft
Square Footage1693 sqft
RoomsBed:3,Bath:3
Virtual Tour
Detail
Building
Bathroom Total3
Bedrooms Total3
AppliancesWasher,Dryer,Refrigerator,Stove,Dishwasher
Architectural StyleSplit level entry
Basement DevelopmentFinished
Basement TypeUnknown (Finished)
Constructed Date1980
Construction Style AttachmentDetached
Fireplace PresentTrue
Fireplace Total2
Foundation TypeConcrete Perimeter
Heating FuelNatural gas
Heating TypeForced air
Roof MaterialAsphalt shingle
Roof StyleConventional
Size Interior1693 sqft
Stories Total2
TypeHouse
Utility WaterMunicipal water
Land
Size Total6973 sqft
Size Total Text6973 sqft
Acreagefalse
Size Irregular6973
Surrounding
View TypeMountain view
BasementFinished,Unknown (Finished)
FireplaceTrue
HeatingForced air
Remarks
* PREC - Personal Real Estate Corporation. Immaculate condition, 1 owner home where pride of ownership shines through! Nestled quietly on Baxter Ave this home is close to hiking trails and the golf course. On the main level there is big windows allowing a ton of light into the living, dining, and kitchen area. The living room features a unique gas fireplace to build your room around! There is 3 good sized bedrooms including the primary on the main level with a 4pc bathroom and a 2pc ensuite. Downstairs you will find access to the garage, laundry, a 2pc bathroom, a rec room that could be sectioned off into a 4th bedroom if needed. Another has fireplace in downstairs to build around! Outback you have a fully closed in yard with tons of privacy and you can't forget about all the sun you get back here. Ideal for making summer memories! (id:22211)
The listing data above is provided under copyright by the Canada Real Estate Association.
The listing data is deemed reliable but is not guaranteed accurate by Canada Real Estate Association nor RealMaster.
MLS®, REALTOR® & associated logos are trademarks of The Canadian Real Estate Association.
Location
Province:
British Columbia
City:
Kitimat
Room
Room
Level
Length
Width
Area
Storage
Lower
7.09
10.07
71.38
7 ft ,1 in x 10 ft ,1 in
Recreational, Games
Lower
15.32
11.25
172.42
15 ft ,4 in x 11 ft ,3 in
Flex Space
Lower
12.24
8.50
103.99
12 ft ,3 in x 8 ft ,6 in
Living
Main
14.17
14.01
198.56
14 ft ,2 in x 14 ft
Dining
Main
10.50
14.01
147.08
10 ft ,6 in x 14 ft
Kitchen
Main
9.58
10.24
98.06
9 ft ,7 in x 10 ft ,3 in
Primary Bedroom
Main
10.40
11.25
117.04
10 ft ,5 in x 11 ft ,3 in
Bedroom 2
Main
10.24
9.58
98.06
10 ft ,3 in x 9 ft ,7 in
Bedroom 3
Main
10.24
8.07
82.62
10 ft ,3 in x 8 ft ,1 in






















