- Ontario
- Kingston
3175 Creekford Rd
CAD$1,999,000
CAD$1,999,000 Asking price
3175 Creekford RDKingston, Ontario, K7P2Z7
Delisted
53
Listing information last updated on Sat Feb 20 2021 00:05:56 GMT-0500 (Eastern Standard Time)

Open Map
Log in to view more information
Go To LoginSummary
IDK20006128
StatusDelisted
Ownership TypeFreehold
Brokered ByRE/MAX RISE EXECUTIVES, BROKERAGE
TypeResidential House,Detached
Age -1
Lot Size220 * 469 undefined 220x469
Land Size220x469|3 - 10 acres
RoomsBed:5,Bath:3
Detail
Building
Bathroom Total3
Bedrooms Total5
Bedrooms Above Ground5
AgeUnder construction
AppliancesNone
Architectural Style2 Level
Basement DevelopmentUnfinished
Basement TypeFull (Unfinished)
Construction Style AttachmentDetached
Cooling TypeCentral air conditioning
Exterior FinishBrick,Stone,Stucco
Fireplace FuelGas
Fireplace PresentTrue
Fireplace TypeInsert
Flooring TypeHardwood,Ceramic
Foundation TypePoured Concrete
Half Bath Total1
Heating FuelGeo Thermal
Heating TypeForced air
Stories Total2
TypeHouse
Utility WaterDug Well
Land
Size Total Text220x469|3 - 10 acres
Access TypeRoad access
Acreagetrue
SewerSeptic System
Size Irregular220x469
Garage
Attached Garage
Inside Entry
Surrounding
Location DescriptionGardiners Rd to Creekford Rd
Zoning DescriptionRes
Other
FeaturesRolling,Balcony/Deck/Patio
Listing Price Unitsquare feet
BasementUnfinished
FireplaceTrue
HeatingForced air
Remarks
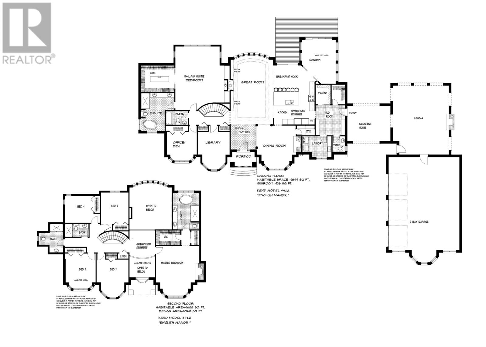
Rare opportunity to build a custom dream home in the City of Kingston on 3 acres of rolling hills, minutes to all amenities. Many custom homes to choose from. Survey and Well record available. Privacy, location, size and exclusivity are the true benefits of this extremely rare offering. (id:22211)
The listing data above is provided under copyright by the Canada Real Estate Association.
The listing data is deemed reliable but is not guaranteed accurate by Canada Real Estate Association nor RealMaster.
MLS®, REALTOR® & associated logos are trademarks of The Canadian Real Estate Association.
Location
Province:
Ontario
City:
Kingston
Community:
City Northwest
Room
Room
Level
Length
Width
Area
Primary Bedroom
Second
20.00
18.00
360.00
5pc Ensuite bath
Second
14.00
10.00
140.00
Bedroom
Second
14.00
13.00
182.00
4pc Bathroom
Second
10.00
10.00
100.00
Bedroom
Second
17.00
14.00
238.00
Bedroom
Second
15.00
14.00
210.00
Living
Main
40.00
25.00
1000.00
Kitchen
Main
25.00
20.00
500.00
Dining
Main
15.00
12.00
180.00
2pc Bathroom
Main
NaN





