- British Columbia
- Kelowna
3103 Shetland Rd
CAD$1,070,000
CAD$1,070,000 Asking price
3103 Shetland RoadKelowna, British Columbia, V1V3A7
Delisted
636| 2667 sqft
Listing information last updated on Fri Dec 22 2023 08:32:10 GMT-0500 (Eastern Standard Time)

Open Map
Log in to view more information
Go To LoginSummary
ID10286007
StatusDelisted
Ownership TypeFreehold
Brokered ByCentury 21 Assurance Realty Ltd
TypeResidential House,Detached
AgeConstructed Date: 2014
Land Size0.14 ac|under 1 acre
Square Footage2667 sqft
RoomsBed:6,Bath:3
Virtual Tour
Detail
Building
Bathroom Total3
Bedrooms Total6
AppliancesRefrigerator,Dishwasher,Dryer,Range - Electric,Microwave,Washer,Oven - Built-In
Constructed Date2014
Construction Style AttachmentDetached
Cooling TypeCentral air conditioning
Exterior FinishStone,Vinyl siding
Fireplace PresentTrue
Fireplace TypeDecorative
Fire ProtectionSmoke Detector Only
Flooring TypeCarpeted,Laminate,Tile
Half Bath Total0
Heating FuelElectric
Heating TypeBaseboard heaters,Forced air,See remarks
Roof MaterialAsphalt shingle
Roof StyleUnknown
Size Interior2667 sqft
TypeHouse
Utility WaterMunicipal water
Land
Size Total0.14 ac|under 1 acre
Size Total Text0.14 ac|under 1 acre
Acreagefalse
Fence TypeFence
SewerMunicipal sewage system
Size Irregular0.14
See Remarks
Attached Garage
Heated Garage
Surrounding
Community FeaturesPets Allowed,Rentals Allowed
View TypeMountain view,Valley view,View (panoramic)
Zoning TypeResidential
Other
FeaturesCentral island,Two Balconies
Listing Price Unitsquare feet
BasementFinished,Separate entrance,Full (Finished)
FireplaceTrue
HeatingBaseboard heaters,Forced air,See remarks
Remarks
This large, Single Family Home with a 2 BED LEGAL SUITE is situated within walking distance to UBCO and perfect for students and faculty alike. Escape the hustle and bustle of everyday life in your very own private backyard, it's the perfect place for the kids to play and for you to unwind after a long day. The 2 bed legal suite is an excellent income opportunity or ideal for accommodating extended family members. There is tons of room for parking, including your RV, and you'll fall in love with the TWO EXTRA LARGE decks that are perfect for outdoor entertaining and soaking up the Okanagan sunshine. Don't miss out on this incredible opportunity to own a slice of paradise in North Glenmore. Call now to book a viewing! (id:22211)
The listing data above is provided under copyright by the Canada Real Estate Association.
The listing data is deemed reliable but is not guaranteed accurate by Canada Real Estate Association nor RealMaster.
MLS®, REALTOR® & associated logos are trademarks of The Canadian Real Estate Association.
Location
Province:
British Columbia
City:
Kelowna
Community:
North Glenmore
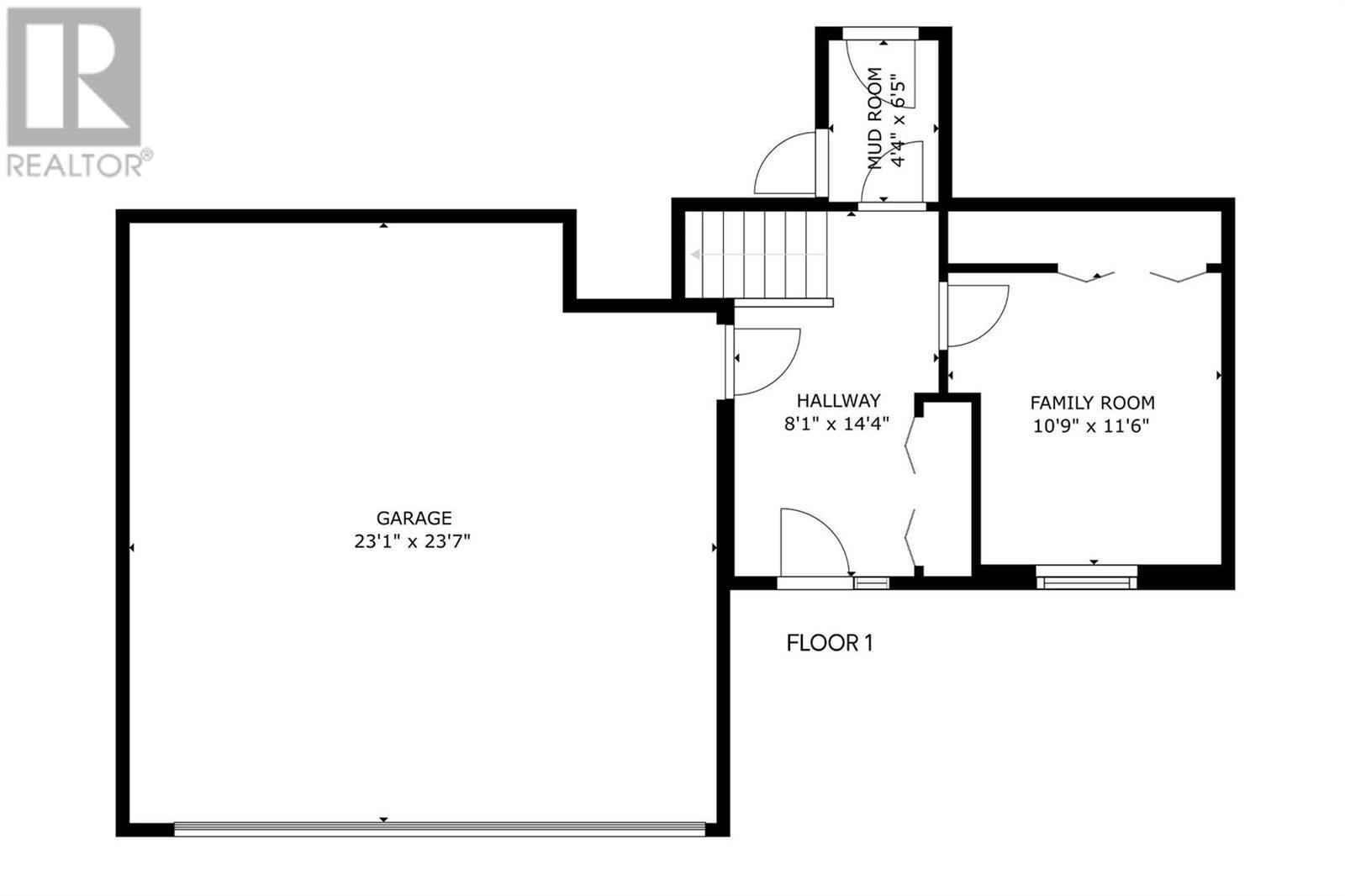
Room
Room
Level
Length
Width
Area
Living
Bsmt
21.82
15.26
332.85
21'10'' x 15'3''
Bedroom
Bsmt
10.76
11.52
123.92
10'9'' x 11'6''
Foyer
Bsmt
3.51
14.76
51.83
3'6'' x 14'9''
Laundry
Bsmt
6.50
3.90
25.36
6'6'' x 3'11''
Full bathroom
Bsmt
11.09
4.92
54.57
11'1'' x 4'11''
Bedroom
Bsmt
10.40
11.68
121.47
10'5'' x 11'8''
Bedroom
Bsmt
11.09
15.68
173.91
11'1'' x 15'8''
Kitchen
Bsmt
11.42
5.09
58.06
11'5'' x 5'1''
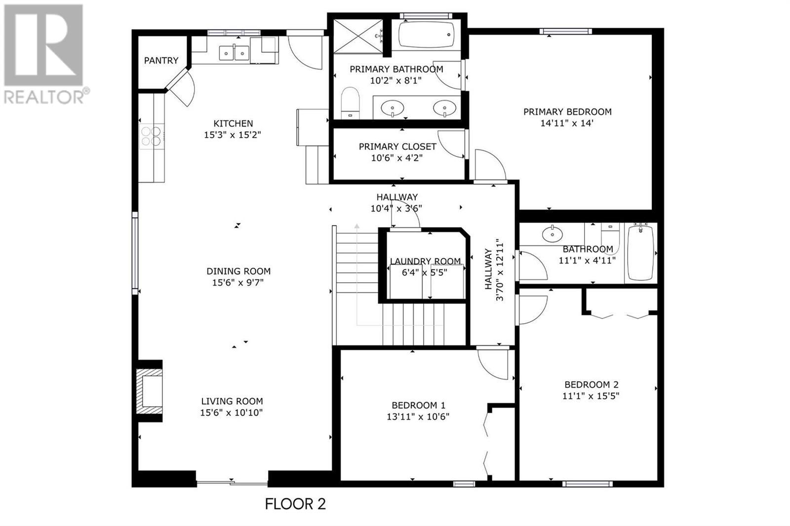
Full bathroom
Ground
11.09
4.92
54.57
11'1'' x 4'11''
Bedroom
Ground
11.09
15.42
171.00
11'1'' x 15'5''
Bedroom
Ground
13.91
10.50
146.04
13'11'' x 10'6''
Primary Bedroom
Ground
14.93
14.01
209.13
14'11'' x 14'
5pc Ensuite bath
Ground
10.17
8.07
82.09
10'2'' x 8'1''
Kitchen
Ground
15.26
15.16
231.24
15'3'' x 15'2''
Dining
Ground
15.49
9.58
148.35
15'6'' x 9'7''
Living
Ground
15.49
10.83
167.66
15'6'' x 10'10''
















































