- British Columbia
- Kelowna
1795 Country Club Dr
CAD$582,500
CAD$582,500 Asking price
119 1795 Country Club DriveKelowna, British Columbia, V1V2V9
Delisted · Delisted ·
232| 1356 sqft
Listing information last updated on Fri May 31 2024 00:53:16 GMT-0400 (Eastern Daylight Time)

Open Map
Log in to view more information
Go To LoginSummary
ID10313157
StatusDelisted
Ownership TypeStrata
Brokered ByCentury 21 Assurance Realty Ltd
TypeResidential Townhouse,Attached
AgeConstructed Date: 2005
Land Sizeunder 1 acre
Square Footage1356 sqft
RoomsBed:2,Bath:3
Maint Fee505.56 / Monthly
Virtual Tour
Detail
Building
Bathroom Total3
Bedrooms Total2
AmenitiesWhirlpool,Storage - Locker
AppliancesRefrigerator,Dishwasher,Dryer,Oven - Electric,Microwave,Washer
Constructed Date2005
Construction Style AttachmentAttached
Cooling TypeCentral air conditioning
Exterior FinishStucco
Fireplace FuelGas
Fireplace PresentTrue
Fireplace TypeUnknown
Flooring TypeCarpeted,Ceramic Tile,Laminate
Half Bath Total1
Heating TypeForced air,See remarks
Roof MaterialTile
Roof StyleUnknown
Size Interior1356 sqft
Stories Total2
TypeRow / Townhouse
Utility WaterMunicipal water
Land
Size Total Textunder 1 acre
Access TypeEasy access
Acreagefalse
AmenitiesGolf Nearby,Public Transit,Airport,Recreation,Shopping
Landscape FeaturesLandscaped,Rolling,Underground sprinkler
SewerMunicipal sewage system
Surrounding
Ammenities Near ByGolf Nearby,Public Transit,Airport,Recreation,Shopping
Community FeaturesPet Restrictions,Pets Allowed With Restrictions,Rentals Allowed
Road TypeCul de sac
View TypeCity view,Mountain view,Valley view,View (panoramic)
Zoning TypeUnknown
Other
FeaturesCul-de-sac,One Balcony
PoolOutdoor pool
FireplaceTrue
HeatingForced air,See remarks
Unit No.119
Remarks
OPEN HOUSE: Saturday May 11 from 1-3 PM. Ready to go, fully furnished beautiful townhome in the University/Quail Ridge area! This 2-storey townhome in a lovely Tuscan-inspired complex is aptly located, perfectly laid out for shared living space, and has scenic & tranquil Okanagan views! The main floor has tall ceilings, an open floor plan, a spacious kitchen with quartz countertops, a dining area with patio doors to the spectacular outdoors, and the living room features a gas fireplace and large view-capturing windows. Walkout patio with BBQ faces treed rolling hills and chirping birds! The main floor also has a half-bath. The two spacious bedrooms in the lower walkout level each have their own bath, and a door from each bedroom to the patio - such a great design! A large handy storage room rounds out the lower level. Bella Sera is a great place to live as it also sports a gym and an outdoor pool with lounging space. It's also located a hop and a skip from UBCO and the Airport, as well as many other amenities & restaurants, plus it's right by the Quail Ridge Golf Course! This unit is fully furnished, making for an easy transition for university students or other tenants. Live there this summer while you vacation or work from home in the Okanagan, and rent it out to students in the fall! (id:22211)
The listing data above is provided under copyright by the Canada Real Estate Association.
The listing data is deemed reliable but is not guaranteed accurate by Canada Real Estate Association nor RealMaster.
MLS®, REALTOR® & associated logos are trademarks of The Canadian Real Estate Association.
Location
Province:
British Columbia
City:
Kelowna
Community:
University District
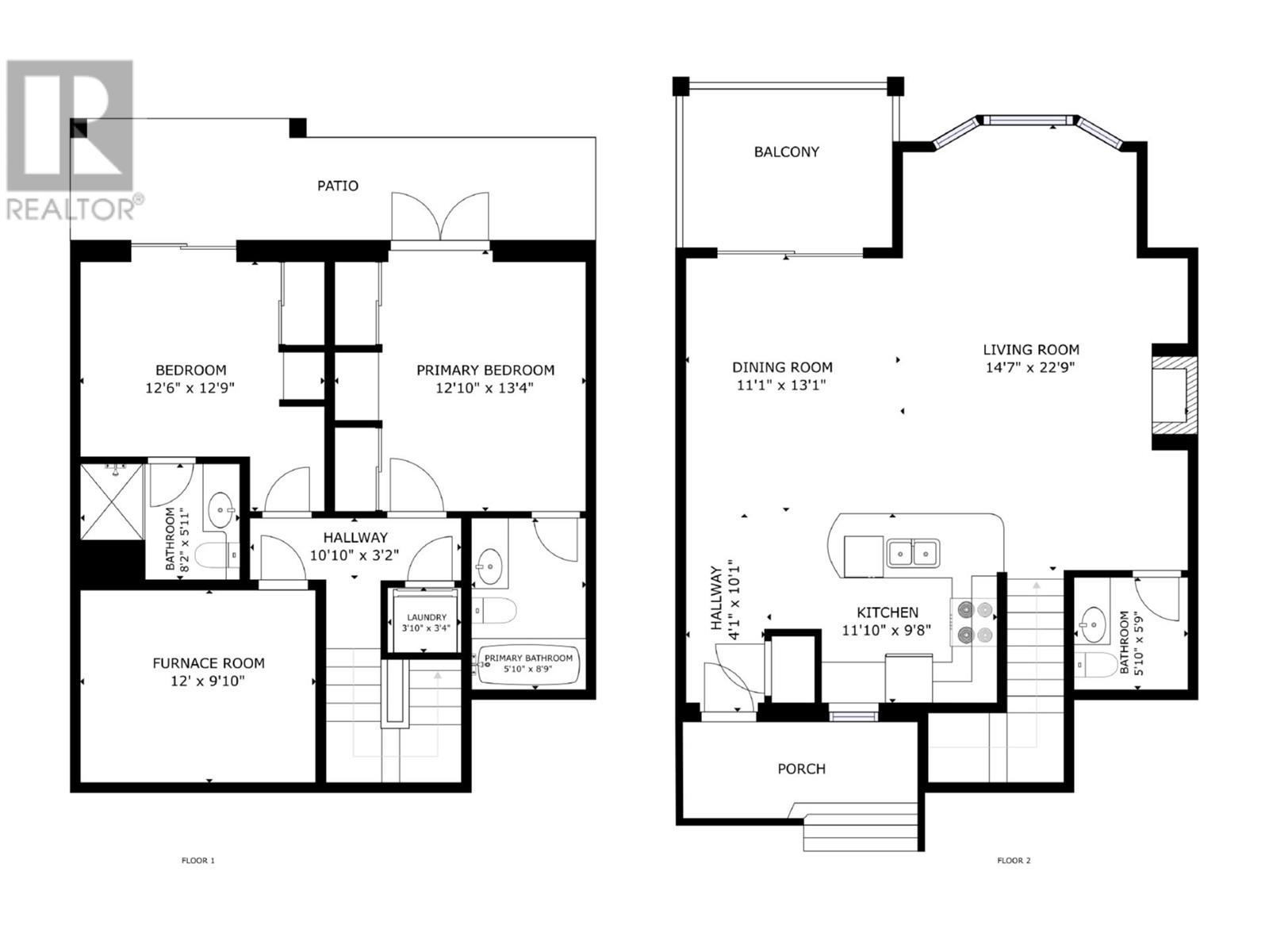
Room
Room
Level
Length
Width
Area
Laundry
Lower
3.84
3.35
12.85
3'10'' x 3'4''
Storage
Lower
12.01
9.84
118.19
12' x 9'10''
4pc Ensuite bath
Lower
8.17
6.00
49.05
8'2'' x 6'
4pc Ensuite bath
Lower
8.76
5.84
51.16
8'9'' x 5'10''
Bedroom
Lower
12.50
12.76
159.53
12'6'' x 12'9''
Primary Bedroom
Lower
12.83
13.32
170.87
12'10'' x 13'4''
Partial bathroom
Main
5.84
5.74
33.53
5'10'' x 5'9''
Dining
Main
10.99
12.99
142.79
11' x 13'
Kitchen
Main
9.68
11.84
114.63
9'8'' x 11'10''
Living
Main
22.74
14.60
331.94
22'9'' x 14'7''





































