- Ontario
- Kawartha Lakes
1942 Sturgeon Rd
SoldCAD$xxx,xxx
CAD$479,900 Asking price
1942 Sturgeon RoadKawartha Lakes, Ontario, K0M1L0
Sold
234(0+4)| 1100-1500 sqft
Listing information last updated on Tue Aug 08 2023 11:43:45 GMT-0400 (Eastern Daylight Time)

Open Map
Log in to view more information
Go To LoginSummary
IDX6128528
StatusSold
PossessionFlexible
Brokered ByBIRDHOUSE REALTY INC.
TypeResidential House,Detached
Age 100+
Lot Size55 * 205 Feet
Land Size11275 ft²
Square Footage1100-1500 sqft
RoomsBed:2,Kitchen:1,Bath:3
Virtual Tour
Detail
Building
Architectural Style2-Storey
FireplaceYes
Property FeaturesFenced Yard,Level
Rooms Above Grade9
Heat SourcePropane
Heat TypeForced Air
WaterWell
Laundry LevelMain Level
Land
Lot Size Range Acres< .50
Parking
Parking FeaturesAvailable
Utilities
Electric YNAYes
Other
Internet Entire Listing DisplayYes
SewerSeptic
BasementPartial Basement,Unfinished
PoolNone
FireplaceY
A/CNone
HeatingForced Air
ExposureE
Remarks
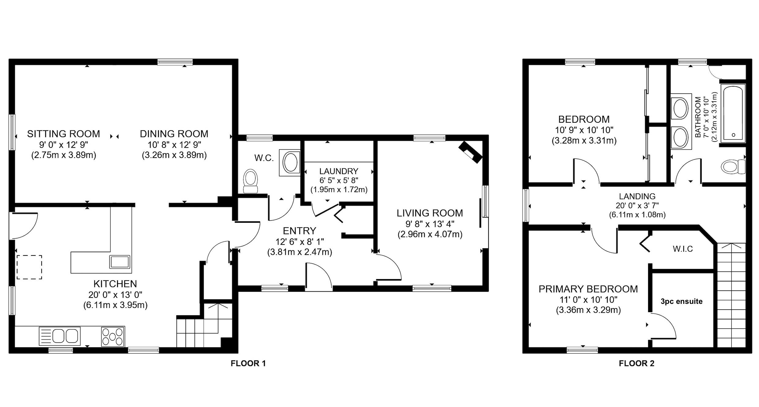
2 storey home situated on a nice country lot, with walking distance to Dunsford Nature Trail. This updated 2 bedroom, 3 bathroom home will appeal to any young couple, small family or a couple looking to retire. Kitchen features plenty of cabinets and large island with built-in dishwasher. Open dining and living room for entertaining guests. Beautiful primary bedroom with 3 pc ensuite. Main floor laundry, 2-pc bathroom, large mud room and sitting room with walkout to partially covered deck and gazebo overlooking the fully fenced backyard.Legal: PT LT 4 CON 3 VERULAM AS IN R430664; KAWARTHA LAKES
The listing data is provided under copyright by the Toronto Real Estate Board.
The listing data is deemed reliable but is not guaranteed accurate by the Toronto Real Estate Board nor RealMaster.
Location
Province:
Ontario
City:
Kawartha Lakes
Community:
Dunsford 11.01.0280
Crossroad:
HWY 36 & Sturgeon Rd




































